Facebook

Hangar Drive, Tangmere, PO20

2 Bed │ 2 Bath │ 1 Rec

In Excess of £280,000

Save
Chichester

Richard Longhurst

Partner

Key features

  • Vacant possession
  • Cul-de-sac location
  • Kitchen with integrated appliances
  • Sitting room
  • Cloakroom
  • Bedroom with wardrobes and en-suite shower room
  • Second double bedrooms
  • Bathroom/WC
  • South facing garden
  • Driveway

Full description

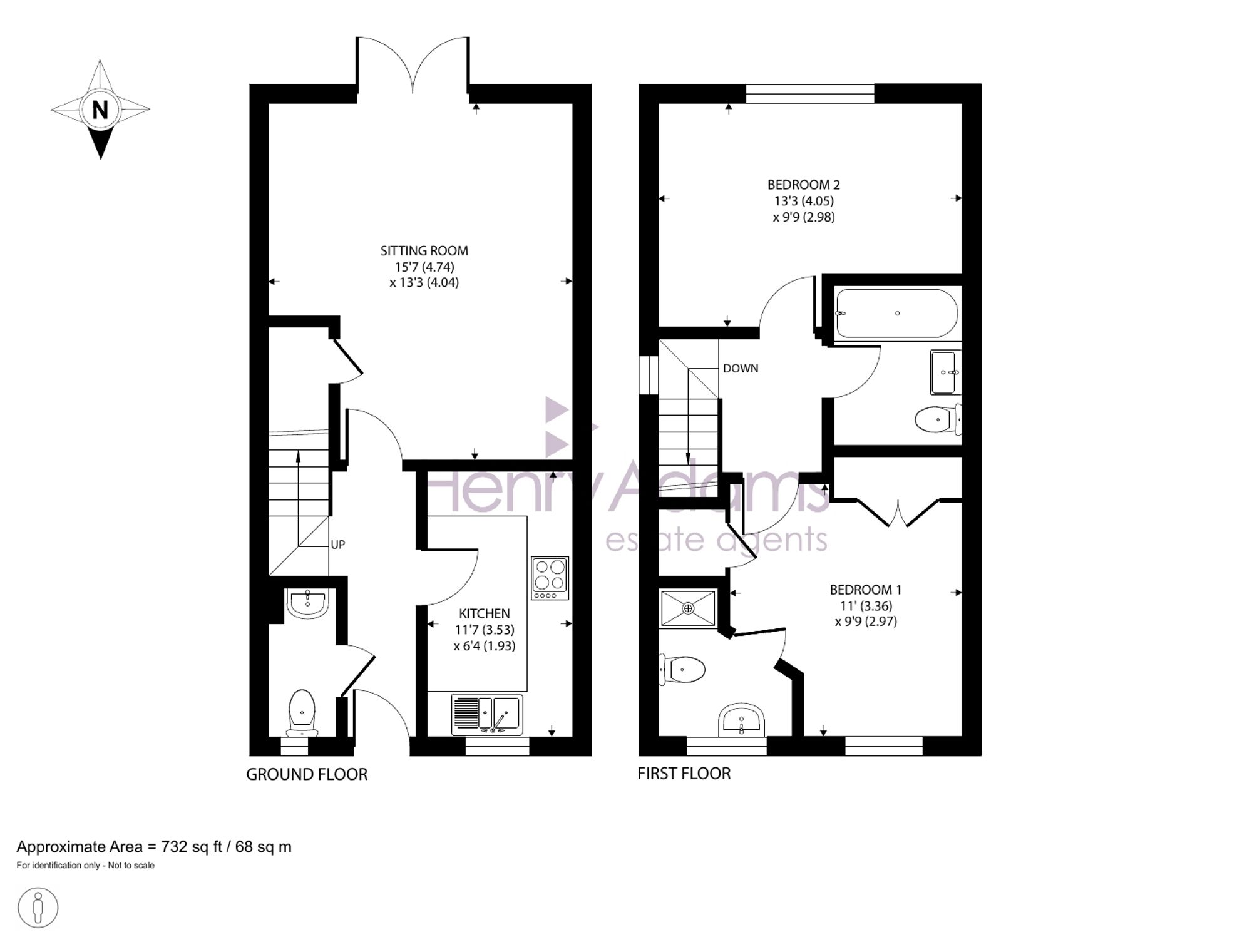
Chain free house with two double bedrooms

This attractive end-terrace house is offered with vacant possession and is ideally located in a quiet cul-de-sac, providing both privacy and a friendly neighbourhood feel. The property features a modern kitchen with integrated appliances, along with a bright south facing sitting room that creates a comfortable living space. There is also a convenient cloakroom on the ground floor.

Upstairs, the main bedroom benefits from fitted wardrobes and an en suite shower room, while a second spacious double bedroom and a well-appointed bathroom/WC complete the accommodation.

Outside, the home enjoys a delightful south-facing garden, ideal for relaxing or entertaining and a driveway provides off-road parking for convenience.

An early viewing is highly recommended.

Chichester District Council - 25/26 Tax Band C £2,097.91 EPC-B

Directions - From Chichester proceed east on the A27. At the Tangmere/Boxgrove roundabout take the third exit into Meadow Way (signposted Tangmere). Take the forth turning on the left into Hangar Drive. Proceeding into Hangar Drive with the greensward on your right, follow the road round to the right and continue straight on (again with the greensward on your right). The property is in the left hand corner. what3words - universally.ticked.scrubbing

Situation

Tangmere has a Co-op convenience store, village hall, medical centre, primary school and church. Three miles to the west lies the cathedral city of Chichester which offers excellent high street shopping, many fashionable restaurants, cafes and bars, the Festival Theatre and a mainline station to London Victoria. Nearby Goodwood is famous for its many event days including the world renowned Festival of Speed and Goodwood Revival for motor racing enthusiasts and a season of horse racing including the Qatar Goodwood Festival. There are superb sailing facilities around Chichester Harbour and water sports from the beaches at West Wittering. The area is a paradise for wildlife enthusiasts, with beautiful walks and cycle tracks over the South Downs and around the harbour.

Council Tax Band: C

Tenure: Freehold

EPC Rating: B

Why live in Chichester?

We consider ourselves very lucky to be working in a city that blends so many different architectural styles, from elegant Georgian buildings to contemporary new apartments and waterside properties that overlook the harbour.

In 2013, The Sunday Times listed Chichester as one of the top places to live in the UK with ‘something for everyone’ – and they weren’t wrong. Chichester is a cathedral city, a county town and home to some of the oldest churches and buildings in the country. There are many well-regarded public and state schools in the local area with further and higher education options available from Chichester College, West Dean College and the University of Chichester. Our great schools have always made Chichester very appealing for those looking for the perfect place to raise a family.

Our city centre is a shopper’s paradise and there are great places to eat and drink, from elegant restaurants to cosy cafés and pubs, all set along the city’s four main streets. Chichester Cathedral on West Street dominates the skyline and, on summer afternoons, its grounds are filled with local people enjoying picnics. In the evenings, the Cathedral plays a central part in the city’s nightlife by hosting classical music events.

Chichester has a number of public parks, the Chichester Tennis and Racquets Fitness Club and Westgate Leisure Centre, where you’ll find a large swimming pool and skate park and, if sailing is your thing, Chichester Harbour is a haven for you. There really is so much to do here you’ll be spoilt for choice; spend the day on one of the many local beaches, stretch your legs on the stunning South Downs or catch a show at the Festival Theatre before it moves to a permanent home in London’s West End.

If you’d like to buy, sell or let a property in Chichester, get in touch with your local team and discover the Henry Adams difference for yourself.

Read more