Facebook

Albion Road, Selsey, PO20

4 Bed │ 2 Bath │ 2 Rec

Guide Price £545,000

Save
Selsey

Kevin Daymond

Partner

Key features

  • Detached chalet style home located within 200m of the beach
  • Three/four double bedrooms (depending of usage of rooms)
  • Living room and dining room/bedroom 4
  • Flexible accommodation which allows for annexe capabilities
  • Ground Floor Bathroom And 1st Floor Shower Room
  • Gated driveway with ample parking for 4/5 cars
  • Detached double garage
  • Located on a nr 1/4 acre plot ( 0.22 )
  • 78ft x 48ft (approx) rear garden

Full description

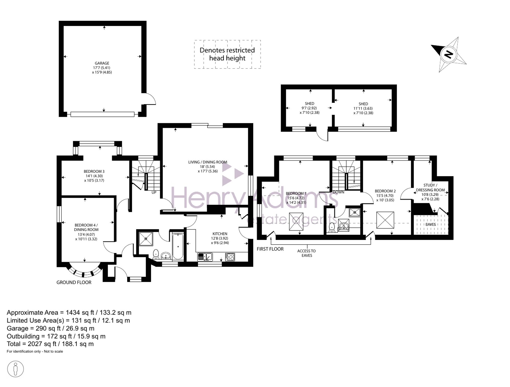
This detached chalet-style home presents the opportunity to acquire a spacious and versatile residence located just 200 metres from the beach. The property offers flexible accommodation, comprising three or four double bedrooms depending on your preferred layout, making it ideal for families, multi-generational living or those seeking a property with annexe potential. The ground floor features a welcoming living room with lob burner installed, a separate dining room (which could serve as the fourth bedroom), a kitchen and bathroom. Upstairs, you will find two double bedrooms and a shower room, providing ample space for family members or guests. One of the 1st floor bedrooms also benefits from an additional room which is currently used as a study but could also be utilised as a walk in wardrobe or en-suite (subject to the necessary plumbing works).

The property design can adapt to a variety of lifestyles. The gated driveway provides off-road parking for four to five cars, leading to a detached double garage offering further parking or excellent storage solutions. Set on a near quarter-acre plot (approximately 0.22 acres), the house enjoys a sense of privacy and space rarely found in this coastal location. The impressive rear garden measures approximately 78ft by 48ft, providing a tranquil retreat and a wonderful outlook from the main living room. With its combination of flexible living space, generous proportions and proximity to the beach, this property is perfectly suited to those seeking a comfortable and adaptable home in a desirable position. The nearby amenities, transport links and leisure opportunities further enhance the appeal, making this an outstanding choice for buyers looking to enjoy the best of coastal living while benefitting from practical features such as ample parking and a detached double garage.

N.B Please note this property has an electrical substation adjacent to the front right hand boundary

Situation

  • Entrance Porch
  • Entrance Hall
  • Living/Dining Room 18' 2" x 17' 7" (5.54m x 5.36m)
  • Kitchen 12' 10" x 9' 8" (3.92m x 2.94m)
  • Bedroom Four/Dining Room 13' 4" x 10' 11" (4.07m x 3.32m)
  • Bedroom Three 14' 1" x 10' 5" (4.30m x 3.17m)
  • Ground Floor Bathroom
  • Landing
  • Bedroom One 15' 6" x 14' 2" (4.72m x 4.31m)
  • Bedroom Two 15' 5" x 10' 0" (4.70m x 3.05m)
  • Study/walk in wardrobe/dressing room 10' 10" x 7' 6" (3.29m x 2.28m)
  • Shower Room

Council Tax Band: D

Tenure: Freehold

EPC Rating: D

Why live in Selsey?

It may be classed as a town, but Selsey is still a seaside village at heart and, whether you’re looking for a dream home by the beach, a place to indulge your passion for watersports or a quiet retreat away from the hustle and bustle of life, Selsey has it all.

The old town in the south east quarter is known for its charming historic properties, including 17th century thatched houses while you’ll find many large and secluded homes offering stunning views of the water by the seafront. The north of Selsey has many 1970s style properties with more substantial, semi-rural homes set around them.

You’ll find a great selection of shops, pubs and restaurants right here on the High Street along with a strong sense of community, especially at Christmas when the Selsey Lights are a sight to behold. We have two local primary schools, Medmerry Primary and the Seal Primary Academy, and The Academy Selsey senior school in the town with more options in Chichester, including Chichester High School.

Selsey has a long-standing love of sport and is proud home to both Selsey Cricket Club and the Selsey Football and Social Club, as well as a bowls and tennis club, but you’ll find even more sporting activity by the water. If you like scuba diving or snorkelling we have some of the best water for diving in the UK, with more than 100 wrecks to explore just off the coast. If you’re keen to learn, the Mulberry Divers Centre on East Beach offers tuition to everyone from complete beginners to advanced divers. There’s swimming, sailing and windsurfing around the Selsey Bill headland or bike rides along the coastal cycle path or to the stunning beaches at Bracklesham Bay, East Wittering or West Wittering where you can feel the sand under your feet.

While Selsey offers the best of seaside living, it’s just less than 10 miles from the cultural heartland of Chichester and everything that the famous cathedral city has to offer, from the plentiful shops to the Festival Theatre. So you see, Selsey really does have it all.

If you’d like to buy, sell or let a property in Selsey, get in touch with your local team and discover the Henry Adams difference for yourself.

Read more