Facebook

Westgate, Chichester, PO19

4 Bed │ 2 Bath │ 2 Rec

Guide Price £795,000

Save
Chichester

Richard Longhurst

Partner

Key features

  • Grade II listed town house
  • Attractive period features
  • Popular Westgate area
  • Versatile accommodation
  • Garden
  • Viewing recommended

Full description

A charming period home close to the heart of the city.

This charming Grade II listed town house beautifully combines historic character with flexible modern living. Rich in attractive period features, the property is ideally situated in the highly sought-after Westgate area, just moments from the heart of the city centre.

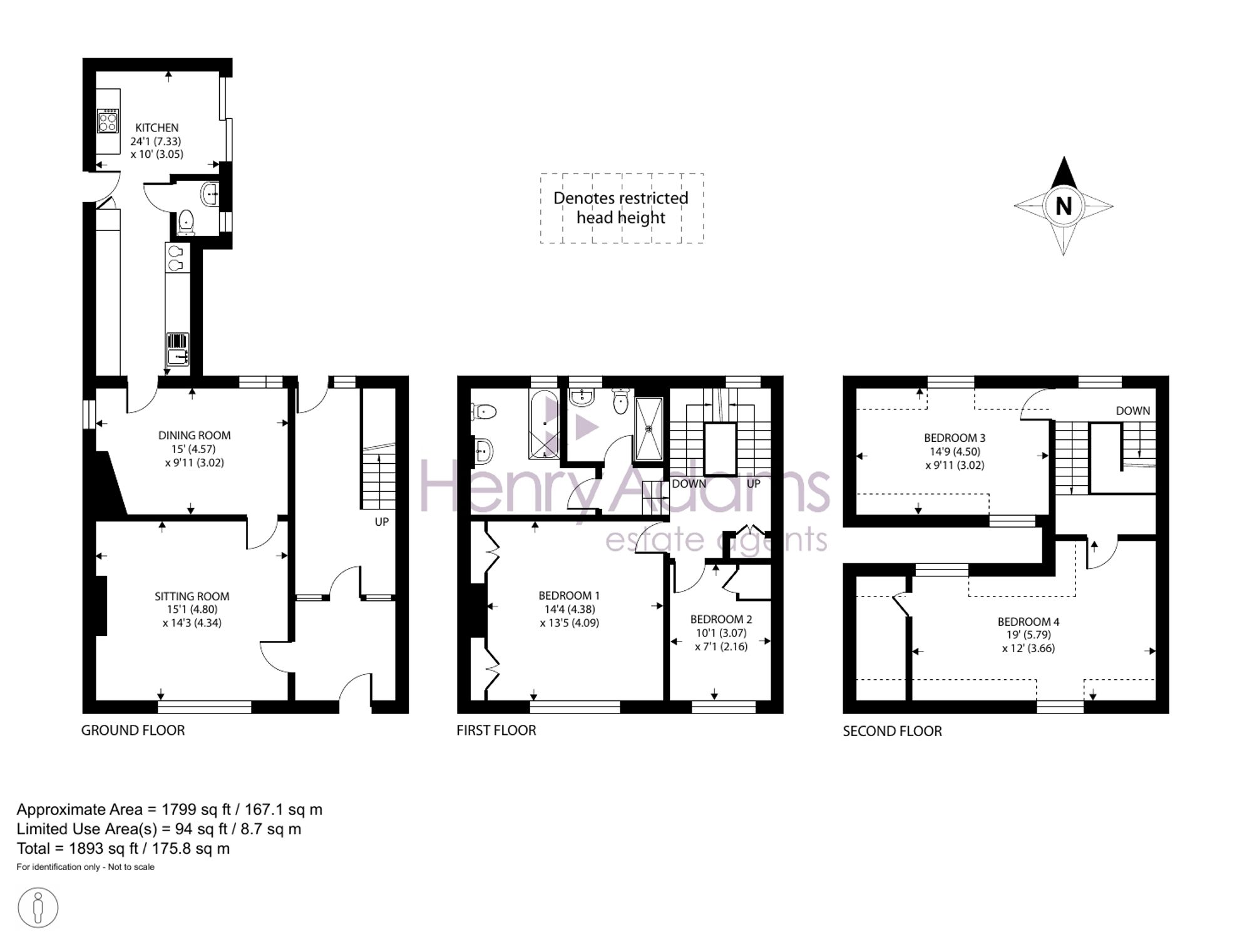
The versatile accommodation is arranged over three floors and includes a welcoming sitting room, an elegant dining room and a kitchen/breakfast room on the ground floor. The first floor offers two bedrooms together with a family bathroom/WC and an additional shower room/WC, while the second floor provides two further bedrooms, ideal for guests, family, or home working.

Outside, the property benefits from a delightful garden, creating a rare and peaceful retreat so close to the city.

Early viewing is highly recommended to fully appreciate the character, space and location this unique home has to offer.

Chichester District Council - 25/26 Tax Band F £3,375.76 Grade II Listed (EPC-D)

Directions - From the end of West Street proceed straight over the roundabout into Westgate. No 44 is on the right hand side before Henty Gardens. What3words - resist.vines.beam

Situation

A beautiful cathedral city with a great heritage, Chichester offers a wealth of historical landmarks, buildings and places of interest. Set within its impressive Roman Wall the city's four main streets intersect at the Tudor Market Cross which is truly the heart of the city and where one can meet and enjoy wonderful examples of Georgian architecture. Well known as a cultural hub, Chichester has a 100 seater art-house cinema, the award-winning Chichester Festival Theatre, Pallant House Gallery. The nearby Goodwood Estate hosts an exciting flat racing calendar including the prestigious 'Qatar Goodwood Festival', as well as International motor racing events such as the 'Festival of Speed' and 'Goodwood Revival'. The Chichester Harbour is on the doorstep and is a popular hub for sailing and other water sports with its direct access to the Solent and events such as the world famous Cowes Week sailing Regatta on the Isle of Wight.

Council Tax Band: F

Tenure: Freehold

EPC Rating: D

Why live in Chichester?

We consider ourselves very lucky to be working in a city that blends so many different architectural styles, from elegant Georgian buildings to contemporary new apartments and waterside properties that overlook the harbour.

In 2013, The Sunday Times listed Chichester as one of the top places to live in the UK with ‘something for everyone’ – and they weren’t wrong. Chichester is a cathedral city, a county town and home to some of the oldest churches and buildings in the country. There are many well-regarded public and state schools in the local area with further and higher education options available from Chichester College, West Dean College and the University of Chichester. Our great schools have always made Chichester very appealing for those looking for the perfect place to raise a family.

Our city centre is a shopper’s paradise and there are great places to eat and drink, from elegant restaurants to cosy cafés and pubs, all set along the city’s four main streets. Chichester Cathedral on West Street dominates the skyline and, on summer afternoons, its grounds are filled with local people enjoying picnics. In the evenings, the Cathedral plays a central part in the city’s nightlife by hosting classical music events.

Chichester has a number of public parks, the Chichester Tennis and Racquets Fitness Club and Westgate Leisure Centre, where you’ll find a large swimming pool and skate park and, if sailing is your thing, Chichester Harbour is a haven for you. There really is so much to do here you’ll be spoilt for choice; spend the day on one of the many local beaches, stretch your legs on the stunning South Downs or catch a show at the Festival Theatre before it moves to a permanent home in London’s West End.

If you’d like to buy, sell or let a property in Chichester, get in touch with your local team and discover the Henry Adams difference for yourself.

Read more