Facebook

Pretoria Avenue, Midhurst, GU29

4 Bed │ 1 Bath │ 2 Rec

Offers in Region of £650,000

Save
Midhurst

Matt Shepherd

Partner

Key features

  • Beautifully Renovated and Thoughtfully Extended
  • Four Bedrooms / One Bathroom
  • Single Garage and Private Driveway
  • Redecorated Throughout
  • Light and Spacious Family Home
  • Walking Distance to Local Schools and Shops
  • Low Maintenance Rear Garden
  • Modern Interior With a High Specification Finish

Full description

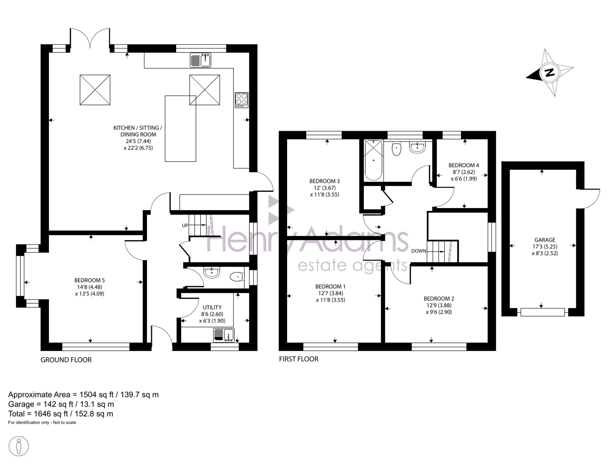
34 Pretoria Avenue is a superbly presented four-bedroom detached family home that has been thoughtfully extended and comprehensively renovated to an exceptional standard throughout. The result is a bright, spacious and stylish home, offering well-balanced accommodation arranged over two floors and perfectly suited to modern family living.

The heart of the home now spans the rear of the property, where an impressive vaulted extension creates a striking open-plan kitchen, dining and living space. Beautifully designed, the kitchen boasts an excellent range of fitted storage, a Rangemaster cooker, central island and underfloor heating, providing an ideal setting for both everyday living and entertaining. This light-filled room offers a wonderful sense of space and connection to the garden, making it a true focal point of the house.

To the front of the property, a generous reception room offers a quieter retreat, perfect for relaxing, watching films or alternatively serving as a playroom or versatile family space, depending on individual requirements. The ground floor accommodation is completed by a practical boot room/utility room and a separate cloakroom.

Upstairs, the property offers four well-proportioned bedrooms, comprising three generous doubles and a further single bedroom, which would also lend itself well to use as a home office. All bedrooms are served by a stylish and contemporary family bathroom.

Notable improvements include a new pressurised heating system with boiler and tank, alongside full redecoration throughout, complemented by new carpets and flooring, ensuring the property is presented in excellent condition.

Externally, the gardens have been designed for ease of maintenance, with lawns to both the front and rear, enclosed by an attractive brick wall and mature beech hedging, providing a good degree of privacy. Further benefits include a single garage and a private driveway.

A viewing is highly recommended to fully appreciate the quality, space and meticulous attention to detail this outstanding home has to offer.

Situation

  • Kitchen / Dining / Family room 24' 5" x 22' 2" (7.44m x 6.75m)
  • Sitting Room 14' 8" x 13' 5" (4.48m x 4.09m)
  • Utility Room
  • Bedroom 1 12' 7" x 11' 8" (3.84m x 3.55m)
  • Bedroom 2 12' 9" x 9' 6" (3.88m x 2.90m)
  • Bathroom
  • Bedroom 3 12' 0" x 11' 8" (3.67m x 3.55m)
  • Bedroom 4 8' 7" x 6' 6" (2.62m x 1.99m)

Council Tax Band: E

Tenure: Freehold

EPC Rating: C

Why live in Midhurst?

Midhurst lies on the River Rother, just 12 miles north of Chichester, and has the remarkable claim to fame of being the home of British polo thanks to the Cowdray Park Polo Club on the local Cowdray Estate, but there’s so much more to this pretty market town. It’s centuries old, boasting more than 100 listed buildings with a charming mix of medieval, Georgian, Victorian and Edwardian architecture that sits comfortably alongside more contemporary new homes.

The narrow lanes of Midhurst’s old town offer a fantastic variety of places to shop with an abundance of small independent boutiques all housed in ancient buildings. There are plenty of places to dine in and around the town centre, too, with options ranging from up-market restaurants specialising in local produce to high street favourites and charming tearooms where you can enjoy your favourite afternoon treat.

You’ll also find plenty to do here – when you’re not engaged in polo, fly-fishing or clay pigeon shooting on the Cowdray Estate, you could head over to the Cowdray Golf Club to enjoy some of the most scenic views in West Sussex and get involved with one of the many other clubs and societies that use it as a base. You’ll find a local camera club, the Midhurst Players, the Gardening Club and in August you could join in with the ten days of fun at the Midhurst Music, Arts and Dramatic Festival, ‘MADhurst’. There’s never a dull moment here!

As far as family life goes, we have many well-regarded schools in and around the area, all with strong Ofsted reports and excellent reputations, including Midhurst C of E Primary and Midhurst Rother College, which, between them, cater for pupils from age four to 18.

If you’d like to buy, sell or let a property in Midhurst, get in touch with your local team and discover the Henry Adams difference for yourself.

Read more