Facebook

Ely Close, West Wittering, PO20

2 Bed │ 1 Bath │ 1 Rec

Guide Price £350,000

Save
East Wittering

Rachel Treagust

Branch Manager

Key features

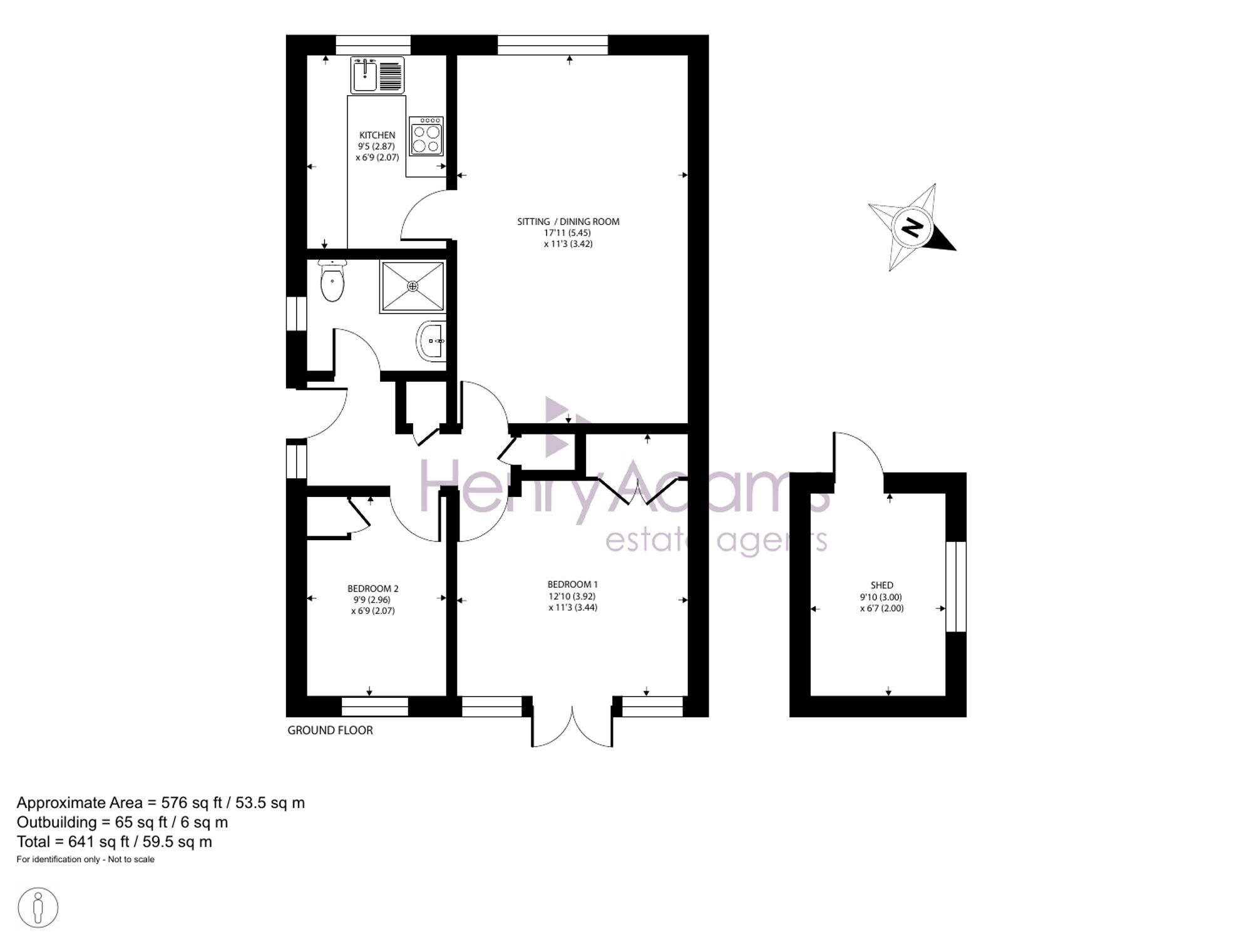
  • Two bedroom bungalow
  • Sitting/dining room
  • Modern kitchen
  • Shower room
  • Driveway & parking
  • Sought-after location
  • Close to east wittering village centre and the beach
  • No forward chain
  • Garage en bloc

Full description

Situated on the sought-after Sea Estate, this well-proportioned bungalow offers a practical and comfortable layout. Upon entering, you are welcomed into a central hallway that provides access to all main rooms. To the rear, a bright and spacious sitting/dining room serves as the heart of the home, offering ample space for both relaxation and entertaining.

The modern kitchen is compact yet functional, fitted with essential appliances and positioned conveniently next to the living area. The property features two bedrooms; a generously sized main bedroom and a second bedroom that could also serve as a guest room, home office, or nursery.

A shower room is centrally located and includes a washbasin, and WC. Additional storage space is accessible from the hallway, enhancing the home’s practicality.

Externally, the property benefits from a detached shed, providing useful extra storage or potential for a workshop space plus garage en bloc. Overall, this home combines efficient use of space with a simple, versatile layout suitable for a range of buyers.

Offered chain free.

Situation

East Wittering is a sought-after coastal village located on the West Sussex shoreline, offering a relaxed seaside lifestyle with a strong sense of community. The village benefits from a range of local amenities including independent shops, cafés, restaurants, a doctor’s surgery, and primary school, all within walking distance.
The village is well positioned for access to the surrounding area, with Chichester approximately 8 miles to the north providing a mainline railway station, historic city centre, and extensive cultural and shopping facilities. Excellent road links connect East Wittering to the A27, while nearby sailing clubs, nature reserves, and the South Downs National Park offer an abundance of leisure and outdoor pursuits.

Council Tax Band: D

Tenure: Freehold

EPC Rating: D

Why live in the Witterings?

People flock to East Wittering during the holiday season thanks to our world-famous beaches that are so beautiful and a way of life that’s relaxed and warm.

It’s little wonder we experienced significant building development during the 1960s and ‘80s when our rich mix of character house styles in the Witterings made it hard for people to leave. Many of the properties in the area enjoy wonderful views across the English Channel and the sound of distant waves provides a soothing backing track to everyday life here.

There’s no shortage of things to do in the area, especially if you enjoy spending time on the beach, playing water sports and experiencing the countryside and wildlife.  Both East and West Wittering are well known for sailing and surfing and there are local sailing clubs at West Wittering, Itchenor and Dell Quay and mooring facilities at Chichester Marina. West Wittering beach is postcard-perfect with its vast expanses of fine golden sand while East Wittering is more typically English with a shingle shelf that’s exposed when the tide goes out leaving behind stunning areas of wet sand where you can make sandcastles to your heart’s content. The nearby Bracklesham Bay is especially popular with surfers, divers, windsurfers and paddle boarders as well as being a treasure trove for fossil hunters.

We have everything here you need to enjoy this idyllic lifestyle here. In the village you’ll find a good selection of shops, including mini supermarkets, greengrocers, butchers, banks, bakers and a fishmonger and everything is close by in Chichester and Portsmouth.  We have two local schools for children up to 11 years of age at East Wittering Community Primary School and West Wittering Parochial C of E School and a choice of secondary schools and further education options in Chichester.

If you’d like to buy, sell or let a property in East Wittering, get in touch with your local team and discover the Henry Adams difference for yourself.

Read more