Facebook

Riverside, Storrington, RH20

3 Bed │ 1 Bath │ 1 Rec

Guide Price £375,000

Projected Gross Yield: 4.81% Estimated rent: £1,600.00PCM
Save
Storrington

Christina Bearryman

Sales Associate

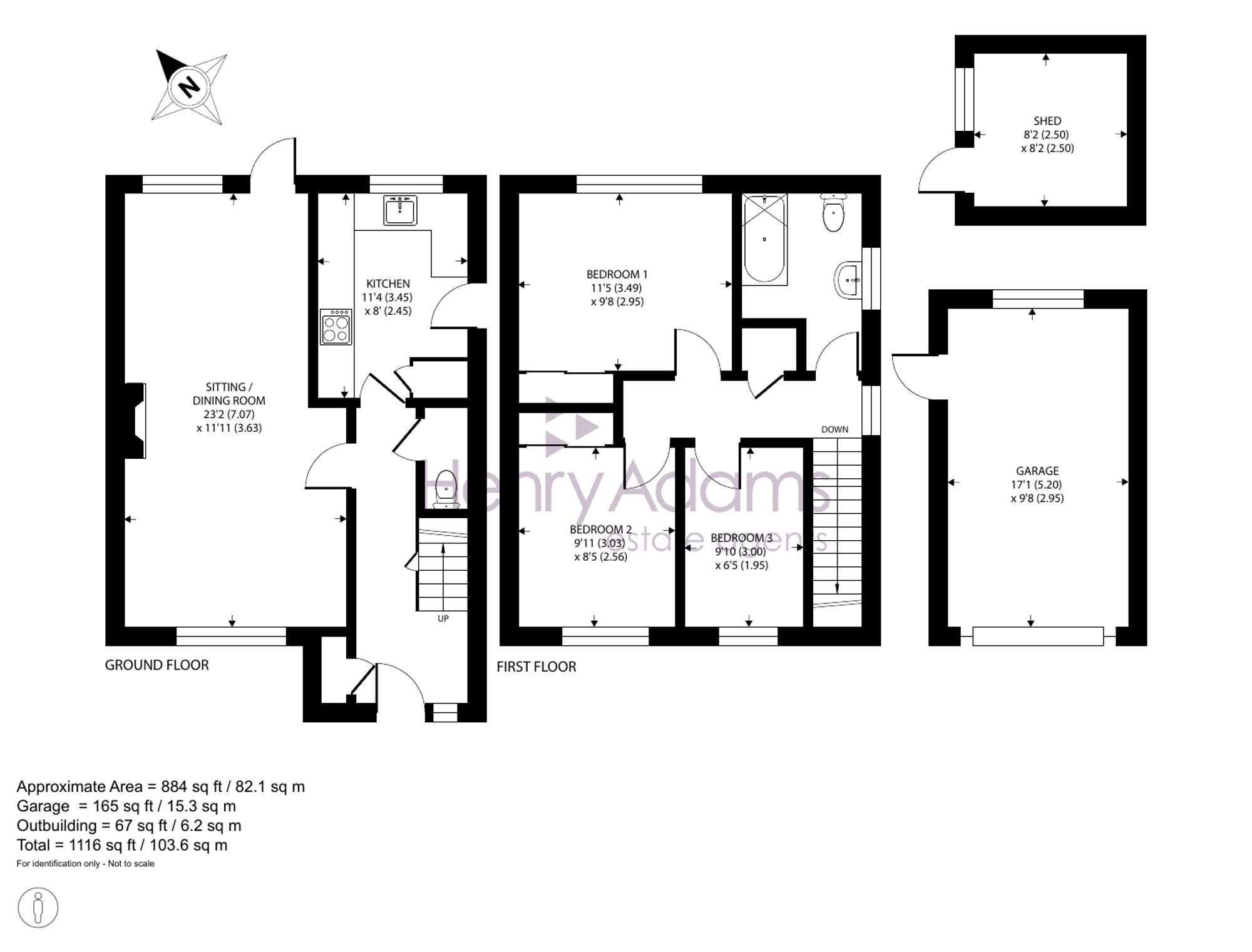
Key features

  • Well appointed property in quiet cul de sac location and within close proximity to the village centre and all amenities on offer
  • Large sitting room with parquet flooring, access to garden and serving hatch to kitchen
  • Ground floor cloakroom
  • Kitchen with access to the side, with gas hob and electric oven, space for additional appliances
  • Three bedrooms to first floor and bathroom
  • Single garage and driveway parking
  • Raised garden to the rear
  • New boiler
  • No forward chain
  • Property re-roofed and new solar panels installed in 2025 with 10 year guarantee

Full description

This well appointed three bedroom semi detached house is ideally situated within close proximity to the village centre, offering easy access to a range of local amenities including shops, schools and public transport links. The property features a spacious sitting room with attractive parquet flooring, a serving hatch to the kitchen and direct access to the rear garden, creating a welcoming space for both relaxation and entertaining. The kitchen, which benefits from a gas hob, electric oven and space for additional appliances, also provides convenient access to the side of the property. A ground floor cloakroom adds further practicality.

Upstairs, there are three well proportioned bedrooms and a family bathroom, making the home suitable for families or those seeking extra space for guests or a home office. Additional benefits include solar panels and a recently installed boiler, offering improved energy efficiency and lower running costs. The property is offered with no forward chain, providing an excellent opportunity for a swift and straightforward purchase.

Externally, the property enjoys a single garage and driveway parking, ensuring ample space for vehicles. The rear garden is raised, providing a pleasant setting for outdoor dining or gardening. The garden is accessible directly from the sitting room, making it ideal for entertaining or enjoying quiet moments in the sunshine. Mature planting and fencing offer a degree of privacy, while the layout provides scope for further landscaping to suit individual tastes. The side access from the kitchen is particularly useful for bringing in groceries or accessing the garden without passing through the main living areas. This property combines a convenient location with well planned outside space, making it an appealing choice for those seeking a comfortable home with practical features in a sought after village setting.

Situation

Storrington village lies in the lea of the South Downs National Park and has an established range of shops including Waitrose, Costa and a number of independent shops and HSBC bank. There is a health centre and various sporting activities including football club, Pulborough Rugby Club, tennis club and not forgetting the South Downs for walking or cycling or the National Trust Sullington Warren or Sandgate Country Park. The towns of Horsham and Worthing are about 15 and 11 miles respectively with good access to the A24.

The area around provides a wider range of sporting and recreational facilities with West Sussex Golf Club and other golf clubs further afield at Cowdray Park and Goodwood. Of special note is the RSPB nature reserve at Wiggonholt Brooks. The area also has bowls and cricket clubs. There is gliding at nearby Parham, theatres at Chichester, Horsham and Worthing and sailing centres all along the coast.
  • Entrance Hall
  • Cloakroom
  • Kitchen
  • Sitting Room
  • Bedroom 1
  • Bedroom 2
  • Bedroom 3
  • Bathroom

Council Tax Band: D

Tenure: Freehold

EPC Rating: B

Why live in Storrington?

This picture-perfect village lies at the foot of the South Downs National Park, halfway along the South Downs Way. Properties here include bungalows, family homes and the famous Wells cottages that were individually designed by the architect Reginald Fairfax Wells in the 1920s to look and feel like 17th century buildings with thatched roofs, small windows and whitewashed exteriors.

Many of the homes in Storrington have wonderful views across rolling countryside and a conservation area just off the bustling high street ensures Storrington will remain as beautiful as it is today for generations to come.

There are lots of specialist shops in the town and convenient amenities such as the large recreational ground with its football and cricket pitches, the Chanctonbury Leisure Centre and an abundance of community groups offering classes in all sorts of interesting activities from ballroom dancing to photography. For a spot of culture, visit the Parham House and Gardens or the local Storrington and District Museum and for outdoor pursuits, take time to explore the natural beauty of the South Downs on foot, bike or horseback or, for a truly spectacular experience, take to the air in a glider.

Our local schools belong to a cluster group called STARS (Storrington Area Rural Schools) and, between them, offer a choice of paths from Reception through to Year 13. Steyning Grammar School is included in the list of STARS and is a popular choice as it’s non-selective and has its own Sixth Form.

Storrington is well connected too; the nearest train station is in the neighbouring village of Pulborough. The five-mile journey only takes 10 minutes by car or you can take a bus; the bus timetable is synced with the train timetable to make life even easier for local commuters.

If you’d like to buy, sell or let a property in Storrington, get in touch with your local team and discover the Henry Adams difference for yourself.

Read more