Facebook

West Lavington, Midhurst, GU29

2 Bed │ 1 Bath │ 1 Rec

Offers in Region of £850,000

Save
Midhurst

Matt Shepherd

Partner

Key features

  • No Onward Chain
  • Sought After Location in West Lavington
  • Walking Distance to Midhurst
  • Large, West Facing Mature Garden
  • Single Garage and Private Drive
  • Ample Room to Extend (STPP)
  • Bright and Spacious Accommodation
  • In Need of Updating Throughout
  • Two Bedroom Bungalow
  • Mains Gas, Drainage and Electricity

Full description

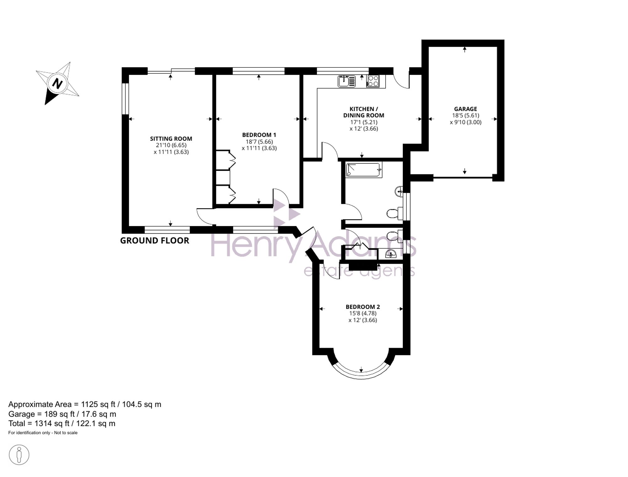
Puffins is a charming two-bedroom bungalow situated in the highly desirable area of West Lavington, just a short stroll from the centre of Midhurst and its wide range of amenities. Set back from the road behind a mature front garden with vibrant planting, the property is accessed via a five-bar gate leading to a private tarmac driveway and single garage.

The bungalow occupies a generous plot, with the west-facing rear garden offering an exceptional space for keen gardeners, featuring a variety of well-established beds, borders, and terraces, all enclosed with fencing for privacy. With ample outdoor space, the property offers excellent potential for extension (subject to necessary consents) without compromising the garden.

Internally, Puffins would benefit from modernisation throughout, providing a fantastic opportunity for new owners to update and personalise. The accommodation includes a spacious kitchen/dining room overlooking the garden with direct access outside, and a bright, triple-aspect sitting room with sliding doors opening onto the terrace. There are two double bedrooms, each with built-in storage, a family bathroom, and a separate WC. Additional features include a large, fully boarded loft with a dormer window, offering scope for further development.

Connected to mains gas, drainage, and electricity, this delightful bungalow is offered with vacant possession and is ideal for those looking to create a forever home in a prime location. Early viewing is highly recommended to fully appreciate the potential and wonderful plot Puffins has to offer.

Situation

  • Sitting Room 21' 10" x 11' 11" (6.65m x 3.63m)
  • Kitchen / Dining Room 17' 1" x 12' 0" (5.21m x 3.66m)
  • Hallway
  • Bedroom 1 18' 7" x 11' 11" (5.66m x 3.63m)
  • Bedroom 2 15' 8" x 12' 0" (4.78m x 3.66m)
  • Bathroom
  • WC

Tenure: Freehold

EPC Rating: D

Why live in Midhurst?

Midhurst lies on the River Rother, just 12 miles north of Chichester, and has the remarkable claim to fame of being the home of British polo thanks to the Cowdray Park Polo Club on the local Cowdray Estate, but there’s so much more to this pretty market town. It’s centuries old, boasting more than 100 listed buildings with a charming mix of medieval, Georgian, Victorian and Edwardian architecture that sits comfortably alongside more contemporary new homes.

The narrow lanes of Midhurst’s old town offer a fantastic variety of places to shop with an abundance of small independent boutiques all housed in ancient buildings. There are plenty of places to dine in and around the town centre, too, with options ranging from up-market restaurants specialising in local produce to high street favourites and charming tearooms where you can enjoy your favourite afternoon treat.

You’ll also find plenty to do here – when you’re not engaged in polo, fly-fishing or clay pigeon shooting on the Cowdray Estate, you could head over to the Cowdray Golf Club to enjoy some of the most scenic views in West Sussex and get involved with one of the many other clubs and societies that use it as a base. You’ll find a local camera club, the Midhurst Players, the Gardening Club and in August you could join in with the ten days of fun at the Midhurst Music, Arts and Dramatic Festival, ‘MADhurst’. There’s never a dull moment here!

As far as family life goes, we have many well-regarded schools in and around the area, all with strong Ofsted reports and excellent reputations, including Midhurst C of E Primary and Midhurst Rother College, which, between them, cater for pupils from age four to 18.

If you’d like to buy, sell or let a property in Midhurst, get in touch with your local team and discover the Henry Adams difference for yourself.

Read more