Facebook

Rogate, Petersfield, GU31

3 Bed │ 2 Bath │ 3 Rec

Guide Price £900,000

Save
Petersfield

Dean Kellaway

Branch Manager

Key features

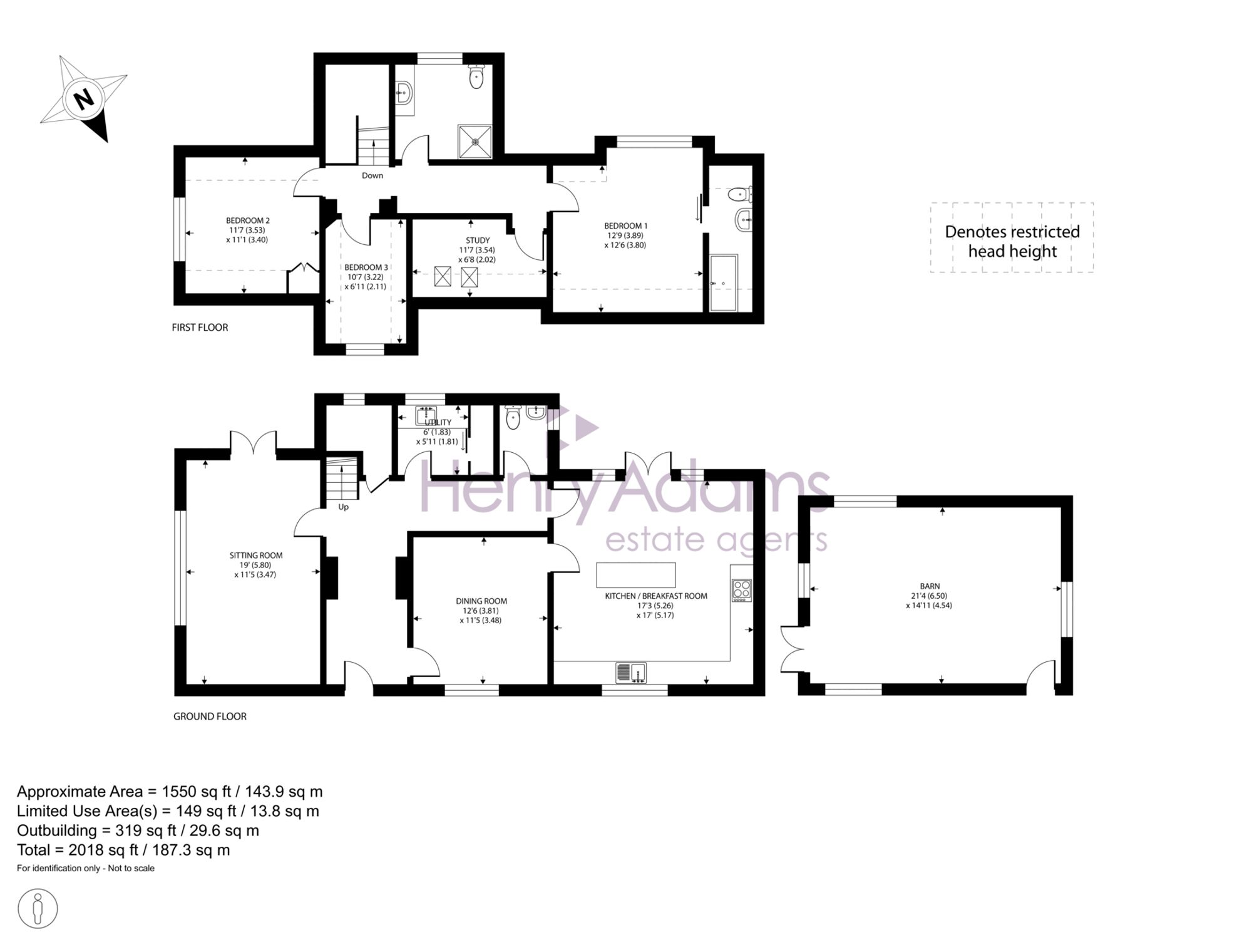
  • 1754 sq ft of accommodation across two floors
  • Extended and partially renovated by the current owners, with further scope to personalise
  • South-facing plot with attractive open countryside views
  • Gravel driveway with ample parking for several vehicles
  • Well-connected semi-rural position on the A272 between Midhurst and Petersfield
  • Possibility to lease an additional grazing paddock adjacent to the property - subject to consent

Full description

Wakeham Lodge is a character cottage set within the South Downs National Park with southerly rural views across open countryside. Measuring 1754 sq ft, the house has been substantially extended and partially renovated by its current owners, and there remains a genuine opportunity for the next purchaser to complete and personalise it to their own standard. Properties like this, with real bones and a solid start already made, are increasingly hard to find.

The accommodation is arranged over two floors and offers comfortable space for a house of this type. On the ground floor, two reception rooms give flexibility for sitting and dining, while the kitchen/dining room forms a natural social heart to the house overlooking the rear gardens and fields beyond. One of the reception rooms is currently used as a study allowing work from home.

Upstairs there are three bedrooms and two bathrooms. The principal bedroom benefits from an en suite and has the potential for a Master Suite with dressing room. Bedroom two is a double whilst bedroom three is a single. There is further opportunity to convert a fourth bedroom subject to planning permission. A family bathroom completes the first floor.

Outside, the south-facing plot catches the sun through the day and the rural outlook across the National Park is a genuine draw. The property is approached via a gravel driveway with parking, with garden space to both the front and rear.

Location

Wakeham Lodge sits within the South Downs National Park between the towns of Midhurst and Petersfield. Petersfield is the nearer of the two for commuters, with a direct mainline service to London Waterloo making the capital straightforwardly accessible. The town also offers a good range of everyday amenities including shops, restaurants and schools. Midhurst, roughly three miles to the west, provides further facilities alongside the independent character the town is known for. Petworth, Haslemere, the Cathedral City of Chichester and Goodwood are all within comfortable driving distance, and the A3 gives ready access to the motorway network and both Gatwick and Heathrow airports.

What 3 Words

///returns.confetti.foil

 

Situation

Council Tax Band: F

Tenure: Freehold

EPC Rating: E

Why live in Petersfield?

Petersfield often features on lists of the best places to live and work and was recently voted one of the top 10 most desirable market towns in England; The Guardian went so far as to describe Petersfield as ‘a commuter’s Nirvana, the urban equivalent of a foot rub and a G&T’.

We have a delightful choice of properties in the area, from beautiful character cottages, some dating back 500 years, to coach house style homes and large rural retreats to modern family homes. There’s also a thriving rental market here as the convenient location, attractive setting and abundant facilities make this an excellent base for those working in the wider area or simply wanting a perfect place to raise a family.

One of the major attractions for families is the choice of world-class schools – The Petersfield School is rated ‘outstanding’ by Ofsted and Bohunt School at nearby Liphook is one of the top performing state schools in the country. In the private sector, Churcher’s College and Bedales are located in the town, while Ditcham Park School is just to the southeast.

We have cosmopolitan range of shops, restaurants and cafés, with most major retailers represented. The Petersfield Market is held twice a week in The Square and a Hampshire Farmer’s Market is held on the first Sunday of every month. We also have many sports facilities, including two golf clubs, the Taro Leisure Centre and the Petersfield Open Air Swimming Pool, which, despite being open to the elements, is always heated to an average of 27 degrees.

But what really sets Petersfield apart is the beautiful countryside and its pretty villages. These include Selborne with its post office, primary school and choice of two pubs, Steep Village, which sits on wooded slopes known as The Hangers and was once home to Sir Alec Guinness, Buriton Village, which sits between Petersfield and the Queen Elizabeth Country Park and Rogate and Rake to the east within in the Rother Valley.

If you’d like to buy, sell or let a property in Petersfield, get in touch with your local team and discover the Henry Adams difference for yourself.

Read more