Facebook

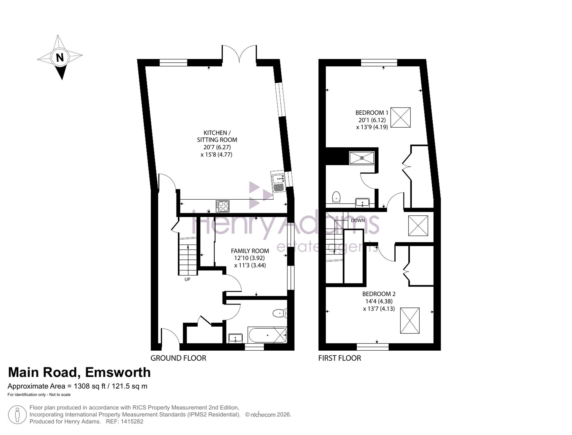
Main Road, Emsworth, PO10

3 Bed │ 2 Bath │ 1 Rec

Guide Price £475,000

Save
Emsworth

Joanna Coles

Branch Manager

Key features

  • Fully Renovated Detached House
  • No Onward Chain
  • Tastefully Appointed Interiors Throughout
  • Three well-proportioned bedrooms
  • South-Facing, Low-Maintenance Garden
  • Private Parking for Two Vehicles

Full description

An exceptional opportunity to acquire a newly completed, architect-designed barn conversion, discreetly situated in one of Emsworth’s most convenient and desirable positions, within easy walking distance of the High Street, Mill Pond and the harbour foreshore.

This carefully considered home successfully marries contemporary detailing with subtle nods to its agricultural heritage, offering well-balanced accommodation arranged over two floors. Extending to three bedrooms, the property further benefits from private parking for two vehicles and a south-facing garden.

The house is approached via a generous reception hall, creating an immediate sense of space and quality. A striking oak and glazed staircase provides an architectural focal point and sets the tone for the finish throughout. To the rear, the principal reception space is arranged in an open-plan format, ideally suited to modern living and entertaining. The kitchen is fitted with sleek cabinetry and a comprehensive range of integrated appliances, while French doors open directly onto the south-facing garden, ensuring an excellent connection between the internal and external spaces.

Also positioned on the ground floor is a well-proportioned double bedroom with fitted mirror-fronted wardrobes, offering flexibility as guest accommodation, a secondary reception room or a dedicated home office. A luxuriously appointed family bathroom sits adjacent, finished to an exacting specification.

The first floor provides two further double bedrooms, both with built-in storage. The principal suite benefits from a contemporary en-suite shower room, thoughtfully designed and well appointed.

In summary, this is a refined and versatile home of considerable quality, ideally suited to discerning buyers seeking a centrally positioned property within easy reach of Emsworth’s amenities and waterfront.

Situation

Emsworth is a highly regarded coastal town on the Hampshire/West Sussex border, renowned for its picturesque harbour, strong sailing community and vibrant high street. The property is conveniently positioned within walking distance of the town centre, where there is an excellent selection of independent shops, cafés, restaurants and public houses, together with everyday amenities including a medical centre and local supermarkets. The mill pond and harbour foreshore are also close at hand, offering attractive waterside walks and access to Chichester Harbour.

For commuters, Emsworth railway station provides direct services to London Victoria (via Havant), as well as regular connections to Portsmouth, Chichester and Brighton. The A27 lies just to the north, giving convenient road access to Chichester, Portsmouth and the wider motorway network via the A3(M), which links to London and the M25.

Tenure: Freehold

EPC Rating: C

Why live in Emsworth?

The perfect blend of town, country and coastal life is what draws people from all walks of life to Emsworth, Havant and Rowlands Castle.

Moving to Emsworth 

Emsworth itself was once a fishing village, known for boatbuilding, ropemaking and oyster farming. Although many of the old ways are long gone, the town has retained much of its old-fashioned charm and added a modern twist. 

As one of the most successful estate agents in Emsworth, we love working in this fabulous seafront setting. Emsworth has lots of independent shops, a butcher, fishmonger, florist, delicatessen, supermarkets and nearby farm shops. We’re also spoilt by the number of popular pubs, bars and restaurants here where you can enjoy a chilled drink with friends as the sun goes down or fine dining with a waterside view. 

With its coastal setting, Emsworth is a paradise for sailors. Wonderful waterside properties line the harbour and there’s a choice of local sailing clubs, whether you’re just finding your sea legs or you’re a seasoned sailor. Nearby Hayling Island is the spiritual home of windsurfing. On weekends, you’ll often see them racing and dancing across the waves as you stroll the long, golden beaches. 

Emsworth is a great place for families too. You’ll find a great selection of good schools, including St. James Primary School, Emsworth Primary School, Warblington Secondary School and Bourne Community College

The many artists who live and work here throw open their studio doors to show their work at the annual Emsworth Art Trail. The Emsworth Horticultural Society holds the annual Emworth Show over the August Bank Holiday, which includes demonstrations of ancient crafts such as glass-blowing, wood turning, falconry and beekeeping. It’s a buzzing community with local business networks firing on all cylinders and its own magazine, The Ems, keeping everyone updated on local events. 

Moving to Rowlands Castle 

Just inland is the pretty village of Rowlands Castle, bordered by the spectacular scenery of the South Downs National Park. The village lies a few miles north of Chichester and Portsmouth, so there’s great access to all the amenities of city life from a countryside setting. Closer to home, Rowlands Castle itself has all you need for everyday living, from a convenience store, pharmacy, vets and a post office just off the traditional village green.

Henry Adams has been the trusted choice for estate agents in Rowlands Castle for over 30 years. In 2022, we extended our reach in the village when Emsworth Sales Branch Manager, Katie Cummings, seamlessly took the helm at Henry Adams in Emsworth and she continues to specialise in selling homes in Rowlands Castle. With her guidance, based on extensive knowledge of the local property market, you can confidently navigate buying or selling in this lovely village. 

Rowlands Castle has three friendly pubs and a cafe, a railway station with a direct line to London Waterloo, and easy access to the A3(M) interchange which links to Portsmouth, Petersfield and London. There are plenty of local opportunities for taking time to enjoy life, including Rowlands Castle Golf Club nearby, Rowlands Castle Tennis Club, and the great Stansted Estate for scenic walks and a sense of grandeur. 

Moving to Havant 

Nestled in the southeast corner of Hampshire is the historic market town of Havant. Situated close to the coast, Havant is bordered by the South Downs and the Solent. Langstone Bridge connects the mainland to Hayling Island with its long stretches of beaches and waterside walks. 

This area has great connections. The A27 runs along the southern fringes of Havant, linking to Chichester & Brighton to the east and to Portsmouth & Southampton to the west. Travelling northwards the A3(M) provides easy access to Horndean, Petersfield, Haslemere, Guildford and central London. 

Havant’s rich history dates back to Roman times and is mentioned in the Doomsday Book in 1086 when its population was about 100 people. Over the years, it’s grown through trade and agriculture, as well as the thriving glove-making trade in the 1700s. The Victorian-era train station now connects passengers directly to London with some journey times taking less than an hour and a half to the capital. The architecture reflects the evolution of Havant, with Georgian buildings lending character from earlier years.Today there are specialist retailers, high street shops, a twice-weekly market, restaurants, pubs, and Horizon Leisure Centre which has a 25m indoor pool and caters to a range of sporting interests. 

Warblington, Langstone, Denvilles and more 

Each of the areas surrounding Emsworth and Havant, such as Denvilles, Langstone, Bedhampton and Warblington, has its own character. As your local estate agent specialising in these locations, we operate centrally from our Emsworth office and use our local insights to help you find the perfect setting for your next home, whether you’re buying, selling, renting or letting. 

Warblington lies on the eastern fringes of Havant and is a sought-after residential area. Its train station links directly to London Victoria while Warblington School caters for the younger generation.Families and individuals can make the most of active leisure locally, such as The Avenue, a popular sports & social club, and the expanses of open countryside and coastline. 

Langstone lies on the upper reaches of Chichester Harbour and Langstone Harbour, which are Sites of Special Scientific Interest (SSSIs), the village has renowned pubs and a historic mill. Langstone Bridge offers a scenic passage across the water to Hayling Island, with its breathtaking coastal scenery. Attracting new and growing businesses to the area is Langstone Park, which is undergoing significant investment and development. 

Neighbouring Denvilles is a popular residential location where you’ll find attractive Victorian & Edwardian homes alongside more modern family homes from the 1960s to the present day. There’s a real sense of community, making this an ideal setting for individuals, couples and families. 

At Henry Adams Emsworth, we take pride in being the specialist estate agent serving this picturesque area. Our coverage extends to selling homes in Havant, Denvilles, Warblington, Langstone and many other local hamlets and villages, such as Southbourne, Rowlands Castle and, of course, Emsworth itself. 

If you’d like to buy, sell or let a property in any of these locations, get in touch with your local team and discover the Henry Adams difference for yourself.

Read more