Facebook

King George Gardens, Chichester, PO19

3 Bed │ 3 Bath │ 1 Rec

Guide Price £725,000

Save
Chichester

Richard Longhurst

Partner

Key features

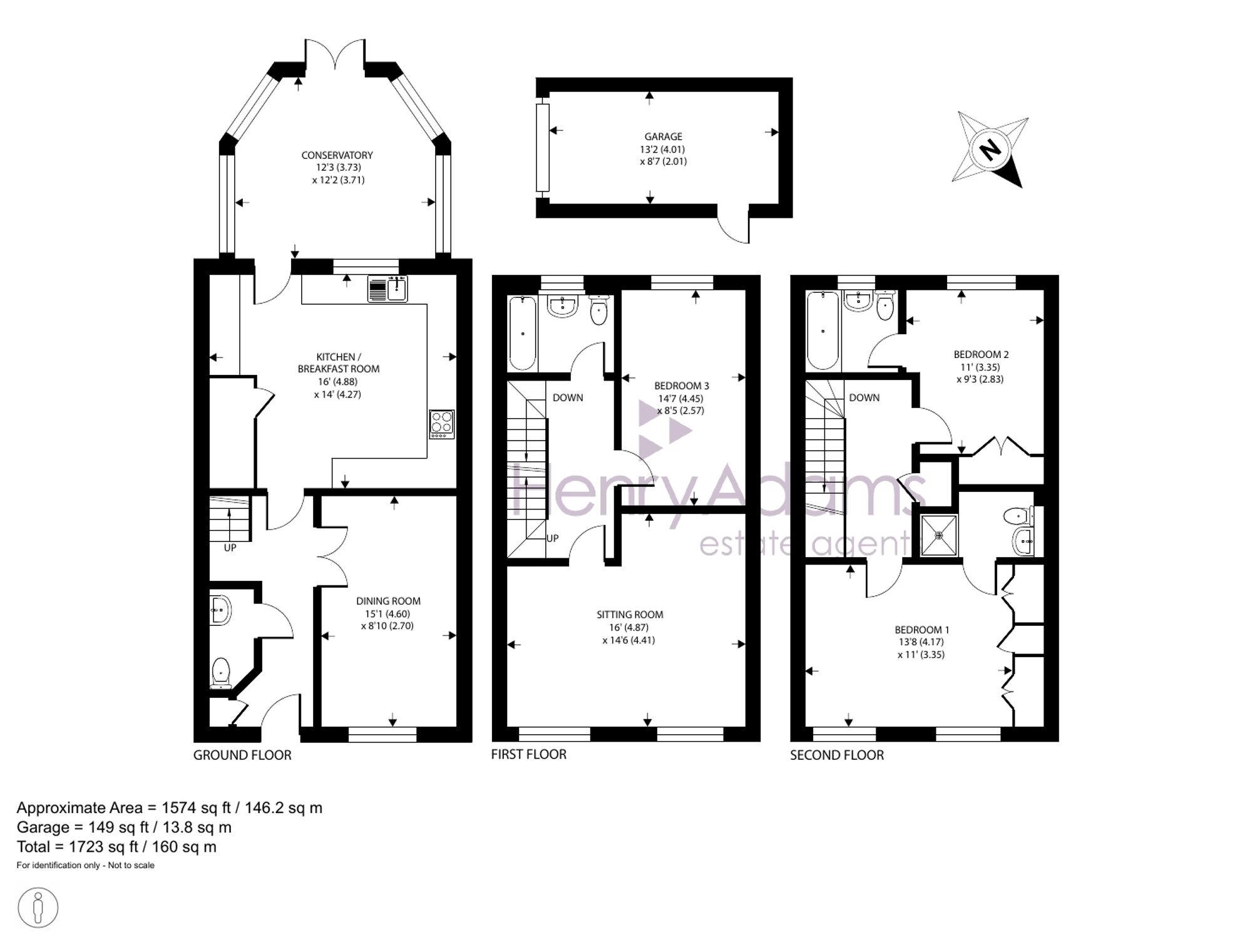
  • An elegant town house about half a mile from the city centre
  • Highly desirable location
  • Versatile accommodation
  • Three bedrooms (two with en-suite facilities)
  • South west facing conservatory
  • Ground floor dining room and kitchen/breakfast room
  • Low maintenance rear garden
  • Garage and allocated paring space

Full description

This elegant three-storey town house is set within a highly sought-after estate, benefiting from a south west facing private rear garden, a garage and an additional allocated parking space. The property is ideally positioned just a quarter of a mile from the renowned Chichester Festival Theatre and approximately half a mile from Chichester’s city centre shopping precinct.

The accommodation is well proportioned and arranged over three floors, offering three bedrooms and three bathrooms in a balanced and versatile layout.

The ground floor comprises a welcoming reception hall with access to a spacious kitchen/breakfast room, complemented by a conservatory that opens directly onto the rear garden. A dining room is positioned at the front of the property and offers excellent potential for reconfiguration into an open-plan kitchen/dining space, if desired. A cloakroom completes the ground floor.

On the first floor, a bright sitting room with twin windows enjoys attractive views across well-maintained communal gardens towards Oaklands Park. To the rear is an additional bedroom overlooking the garden, ideal for use as a study if preferred, along with a bathroom accessed from the landing.

The south west facing garden is mainly laid to patio for ease of maintenance. To the end of the garden is a personal door leading to the garage.

Chichester District Council - 25/26 Tax Band G £3,895.10 EPC-D

Directions - From the Northgate circulatory system, proceed north on the A286 Broyle Road signposted to Midhurst. Continue past the Festival Theatre on the right and then take the next turning on the left into King George Gardens. Take the first turning on the right and number 61 is on the left. What3words - tubes.limes.tolls

Situation

King George Gardens is a short walk to the Festival Theatre and onto the city centre of the cathedral city of Chichester. There is excellent high street shopping, many fashionable restaurants, cafes and bars and a mainline station to London Victoria. Goodwood to the north is famous for its many event days including the world renowned Festival of Speed and Goodwood Revival for motor racing enthusiasts and a season of horse racing including the Qatar Goodwood Festival. There are superb sailing facilities around Chichester Harbour and water sports from the beaches at West Wittering. The area is a paradise for wildlife enthusiasts, with beautiful walks and cycle tracks over the South Downs and around the harbour.

Council Tax Band: G

Tenure: Freehold

EPC Rating: D

Why live in Chichester?

We consider ourselves very lucky to be working in a city that blends so many different architectural styles, from elegant Georgian buildings to contemporary new apartments and waterside properties that overlook the harbour.

In 2013, The Sunday Times listed Chichester as one of the top places to live in the UK with ‘something for everyone’ – and they weren’t wrong. Chichester is a cathedral city, a county town and home to some of the oldest churches and buildings in the country. There are many well-regarded public and state schools in the local area with further and higher education options available from Chichester College, West Dean College and the University of Chichester. Our great schools have always made Chichester very appealing for those looking for the perfect place to raise a family.

Our city centre is a shopper’s paradise and there are great places to eat and drink, from elegant restaurants to cosy cafés and pubs, all set along the city’s four main streets. Chichester Cathedral on West Street dominates the skyline and, on summer afternoons, its grounds are filled with local people enjoying picnics. In the evenings, the Cathedral plays a central part in the city’s nightlife by hosting classical music events.

Chichester has a number of public parks, the Chichester Tennis and Racquets Fitness Club and Westgate Leisure Centre, where you’ll find a large swimming pool and skate park and, if sailing is your thing, Chichester Harbour is a haven for you. There really is so much to do here you’ll be spoilt for choice; spend the day on one of the many local beaches, stretch your legs on the stunning South Downs or catch a show at the Festival Theatre before it moves to a permanent home in London’s West End.

If you’d like to buy, sell or let a property in Chichester, get in touch with your local team and discover the Henry Adams difference for yourself.

Read more