Facebook

Lime Close, Chichester, PO19

3 Bed │ 1 Bath │ 2 Rec

Guide Price £375,000

Save
Chichester

Richard Longhurst

Partner

Key features

  • INVESTMENT PROPERTY (CURRENTLY TENANTED)
  • Mid terraced house
  • Enclosed low maintenance rear garden
  • Modern kitchen
  • Sitting/dining room
  • Three bedrooms
  • En-suite shower room
  • Family bathroom
  • Single garage in nearby compound

Full description

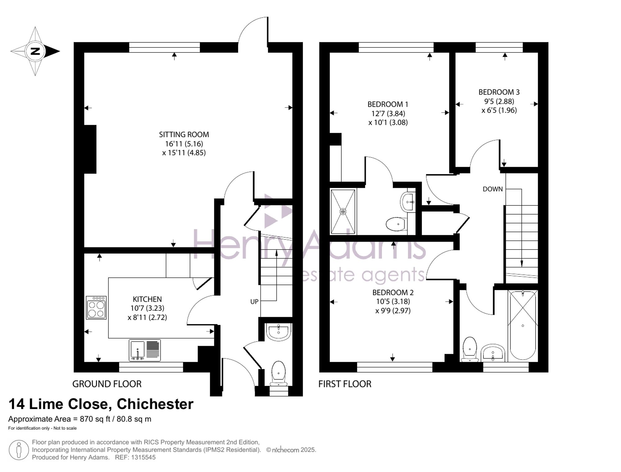
A modern and well-presented three-bedroom, two-bathroom terraced home, tucked away in a quiet private cul-de-sac just three-quarters of a mile from the city centre. Currently let but well maintained and now offered to the market chain free, this property presents a great opportunity for both homebuyers and investors.

The ground floor features a bright white kitchen fitted with a Lamona integrated electric oven, gas hob and chimney-style extractor, fridge/freezer and washing machine, along with a spacious west-facing sitting/dining room that overlooks the attractive rear garden and includes an open fireplace. A downstairs cloakroom completes the ground floor accommodation.

Upstairs, there are three light and spacious bedrooms, and en-suite to the main bedroom and family bathroom, ideal for modern family living.

Outside, The front garden has been converted to hardstanding, providing off-road parking for two cars. The rear garden is designed for low maintenance, with a full-width decked area, artificial lawn and raised sleeper borders. A single garage is located in a nearby compound. There is convenient pedestrian access onto St Pancras and on into Chichester, as well as being within easy walking distance of train station, supermarkets and the city centre shops/amenities. Location is one of the biggest assets of this property.

Chichester District Council - 25/26 Tax Band D £2,337.06 EPC-C

Proceed east out of Chichester on St Pancras (A285) and at the mini roundabout turn left into Spitalfield Lane. Take the first turning on the left into Lime Close and number 14 is towards the end on the right. what3words - bells.stream.aware

Situation

Nearby there is a modern local convenience store and St Richards hospital. The cathedral city of Chichester offers excellent high street shopping, many fashionable restaurants, cafes and bars, the Festival Theatre and a mainline station to London Victoria. Goodwood is famous for its many event days including the world renowned Festival of Speed and Goodwood Revival for motor racing enthusiasts and a season of horse racing including the Qatar Goodwood Festival. There are superb facilities around Chichester Harbour and the beaches at West Wittering. The area is a paradise for wildlife enthusiasts, with beautiful walks and cycle tracks over the South Downs and around the harbour.

Council Tax Band: D

Tenure: Freehold

EPC Rating: C

Why live in Chichester?

We consider ourselves very lucky to be working in a city that blends so many different architectural styles, from elegant Georgian buildings to contemporary new apartments and waterside properties that overlook the harbour.

In 2013, The Sunday Times listed Chichester as one of the top places to live in the UK with ‘something for everyone’ – and they weren’t wrong. Chichester is a cathedral city, a county town and home to some of the oldest churches and buildings in the country. There are many well-regarded public and state schools in the local area with further and higher education options available from Chichester College, West Dean College and the University of Chichester. Our great schools have always made Chichester very appealing for those looking for the perfect place to raise a family.

Our city centre is a shopper’s paradise and there are great places to eat and drink, from elegant restaurants to cosy cafés and pubs, all set along the city’s four main streets. Chichester Cathedral on West Street dominates the skyline and, on summer afternoons, its grounds are filled with local people enjoying picnics. In the evenings, the Cathedral plays a central part in the city’s nightlife by hosting classical music events.

Chichester has a number of public parks, the Chichester Tennis and Racquets Fitness Club and Westgate Leisure Centre, where you’ll find a large swimming pool and skate park and, if sailing is your thing, Chichester Harbour is a haven for you. There really is so much to do here you’ll be spoilt for choice; spend the day on one of the many local beaches, stretch your legs on the stunning South Downs or catch a show at the Festival Theatre before it moves to a permanent home in London’s West End.

If you’d like to buy, sell or let a property in Chichester, get in touch with your local team and discover the Henry Adams difference for yourself.

Read more