Facebook

Bonnar Road, Selsey, PO20

3 Bed │ 3 Bath │ 4 Rec

Guide Price £595,000

Save
Selsey

Kevin Daymond

Partner

Key features

  • Spacious detached chalet style home
  • Flexible accommodation with multiple options for use of rooms
  • Three bedrooms
  • 4 reception rooms ( 2 of which could be utilised as bedrooms if required )
  • Two bedrooms with en-suites and additional shower room
  • Located in a desirable road on the west side of Selsey
  • Driveway with parking for multiple cars
  • NO onward chain
  • Garage with electrically operated door
  • Private gardens wrap around 2 sides

Full description

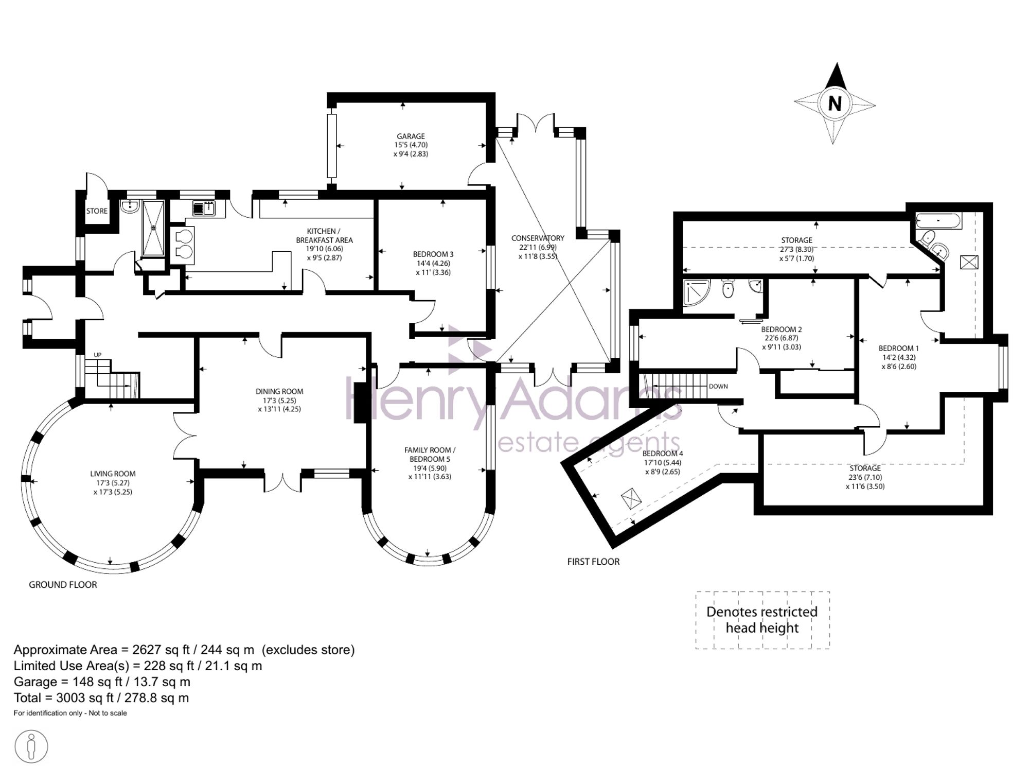
Nestled in an idyllic location on the west side of Selsey, this spacious detached chalet style home offers a haven of comfort and possibility. Boasting flexible accommodation that caters to diverse lifestyles, the property features 4 reception rooms ( 2 of which could be utilised as additional bedrooms if required ) and 3 1st floor bedrooms, with two bedrooms enjoying the benefit of en-suites and an additional shower room on the ground floor perfectly catering to family needs. In addition to the reception rooms the home features a near 20ft kitchen breakfast room with AGA and an L-shaped conservatory overlooking the rear garden. Situated on a desirable road, the home exudes charm and convenience, with a driveway providing ample parking for multiple cars. The absence of an onward chain simplifies the buying process, while the garage, equipped with an electrically operated door, adds both security and ease to daily living. The private gardens embrace the property on two sides, offering a serene escape from the bustle of every-day life.

Wrapping around the home on 2 sides, the lush gardens, predominantly laid to lawn, showcase mature planting that not only enhances the visual appeal but also creates a serene outdoor sanctuary. The carefully designed exteriors include paved areas that beckon for al fresco dining or simply unwinding. The outdoor spaces seamlessly merge with the interiors, offering convenient access to the front driveway and enhancing the overall living experience. The property's generous outdoor parking space reflects a commitment to practicality, while the convenience of an electric up & over door, light, power, and a personal door leading into the conservatory enhances the functionality of the garage.

Situation

  • Entrance Porch 6' 8" x 4' 6" (2.04m x 1.38m)
  • Entrance Hall
  • Ground Floor Shower Room
  • Dining Room 17' 2" x 17' 3" (5.24m x 5.27m)
  • Living Room 17' 3" x 17' 3" (5.25m x 5.27m)
  • Kitchen Breakfast Room 19' 11" x 9' 5" (6.06m x 2.87m)
  • Sitting room/bedroom four 19' 4" x 11' 11" (5.90m x 3.63m)
  • Family room/home office/bedroom five 14' 0" x 11' 0" (4.26m x 3.36m)
  • Conservatory 22' 11" x 11' 8" (6.99m x 3.55m)
  • Landing
  • Bedroom One 14' 2" x 8' 6" (4.32m x 2.60m)
  • En-Suite Bathroom
  • Bedroom Two 22' 6" x 9' 11" (6.87m x 3.03m)
  • En-Suite Shower Room
  • Bedroom Three 17' 9" x 8' 8" (5.40m x 2.65m)

Council Tax Band: E

Tenure: Freehold

EPC Rating: D

Why live in Selsey?

It may be classed as a town, but Selsey is still a seaside village at heart and, whether you’re looking for a dream home by the beach, a place to indulge your passion for watersports or a quiet retreat away from the hustle and bustle of life, Selsey has it all.

The old town in the south east quarter is known for its charming historic properties, including 17th century thatched houses while you’ll find many large and secluded homes offering stunning views of the water by the seafront. The north of Selsey has many 1970s style properties with more substantial, semi-rural homes set around them.

You’ll find a great selection of shops, pubs and restaurants right here on the High Street along with a strong sense of community, especially at Christmas when the Selsey Lights are a sight to behold. We have two local primary schools, Medmerry Primary and the Seal Primary Academy, and The Academy Selsey senior school in the town with more options in Chichester, including Chichester High School.

Selsey has a long-standing love of sport and is proud home to both Selsey Cricket Club and the Selsey Football and Social Club, as well as a bowls and tennis club, but you’ll find even more sporting activity by the water. If you like scuba diving or snorkelling we have some of the best water for diving in the UK, with more than 100 wrecks to explore just off the coast. If you’re keen to learn, the Mulberry Divers Centre on East Beach offers tuition to everyone from complete beginners to advanced divers. There’s swimming, sailing and windsurfing around the Selsey Bill headland or bike rides along the coastal cycle path or to the stunning beaches at Bracklesham Bay, East Wittering or West Wittering where you can feel the sand under your feet.

While Selsey offers the best of seaside living, it’s just less than 10 miles from the cultural heartland of Chichester and everything that the famous cathedral city has to offer, from the plentiful shops to the Festival Theatre. So you see, Selsey really does have it all.

If you’d like to buy, sell or let a property in Selsey, get in touch with your local team and discover the Henry Adams difference for yourself.

Read more