Facebook

Barham Road, Petersfield, GU32

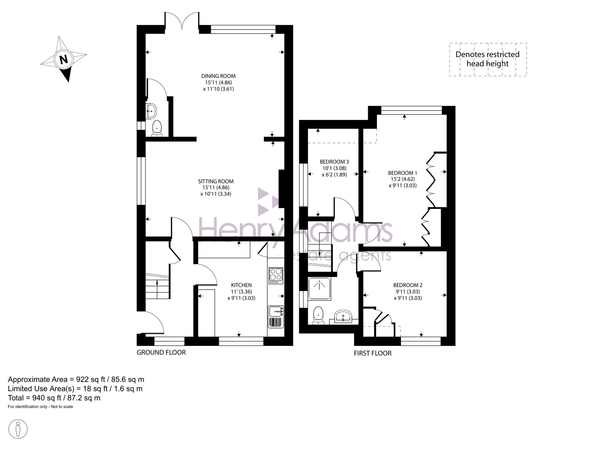
3 Bed │ 1 Bath │ 2 Rec

Guide Price £550,000

Save
Petersfield

Dean Kellaway

Branch Manager

Key features

  • Town Centre Location
  • Moments From Shops and Main Line Station
  • Semi Detached House
  • Three Bedrooms
  • Spacious Open Plan Sitting Room & Dining Room
  • Downstairs W.C.
  • No Onward Chain
  • Detached Garage & Driveway
  • Would Benefit From Modernisation

Full description

A Well‑Presented Three Bedroom Semi‑Detached Home in a Prime Town Centre Location
Ideally situated just moments from local shops and the main line station, this attractive three‑bedroom semi‑detached house offers convenience, comfort, and excellent living space. Benefiting from no onward chain, the property is perfectly suited to those looking for a smooth and speedy move.

The ground floor features a spacious open‑plan sitting and dining room, creating a bright and welcoming environment ideal for both everyday living and entertaining. A downstairs W.C. adds further practicality.

Upstairs, there are three well‑proportioned bedrooms, offering ample space for a growing family, guests, or home working.

Outside, the property continues to impress with a detached garage and private driveway, providing secure parking and useful storage.

With its superb central location and generous accommodation, this property presents an excellent opportunity for buyers seeking convenience without compromising on space or comfort.

Situation

Council Tax Band: D

Tenure: Freehold

EPC Rating: D

Why live in Petersfield?

Petersfield often features on lists of the best places to live and work and was recently voted one of the top 10 most desirable market towns in England; The Guardian went so far as to describe Petersfield as ‘a commuter’s Nirvana, the urban equivalent of a foot rub and a G&T’.

We have a delightful choice of properties in the area, from beautiful character cottages, some dating back 500 years, to coach house style homes and large rural retreats to modern family homes. There’s also a thriving rental market here as the convenient location, attractive setting and abundant facilities make this an excellent base for those working in the wider area or simply wanting a perfect place to raise a family.

One of the major attractions for families is the choice of world-class schools – The Petersfield School is rated ‘outstanding’ by Ofsted and Bohunt School at nearby Liphook is one of the top performing state schools in the country. In the private sector, Churcher’s College and Bedales are located in the town, while Ditcham Park School is just to the southeast.

We have cosmopolitan range of shops, restaurants and cafés, with most major retailers represented. The Petersfield Market is held twice a week in The Square and a Hampshire Farmer’s Market is held on the first Sunday of every month. We also have many sports facilities, including two golf clubs, the Taro Leisure Centre and the Petersfield Open Air Swimming Pool, which, despite being open to the elements, is always heated to an average of 27 degrees.

But what really sets Petersfield apart is the beautiful countryside and its pretty villages. These include Selborne with its post office, primary school and choice of two pubs, Steep Village, which sits on wooded slopes known as The Hangers and was once home to Sir Alec Guinness, Buriton Village, which sits between Petersfield and the Queen Elizabeth Country Park and Rogate and Rake to the east within in the Rother Valley.

If you’d like to buy, sell or let a property in Petersfield, get in touch with your local team and discover the Henry Adams difference for yourself.

Read more