Facebook

Lordings Lane, West Chiltington, RH20

5 Bed │ 2 Bath │ 3 Rec

Offers Over £950,000

Save
Storrington

Christina Bearryman

Sales Associate

Key features

  • Truly versatile living space for a couple, families or home workers
  • Beautiful well-stocked gardens
  • Integral double garage with access to both the deck and driveway
  • Ground floor guest bedroom near bathroom
  • Quiet and secluded patio area with modern insulated workspace
  • Principal bedroom with en-suite, three further first floor bedrooms or two bedrooms and additional bathroom
  • Superb hardwood deck and terrace spanning the rear garden
  • Light and airy sitting room with large window and open fire
  • Dining room with French doors to terrace and decking area
  • Front garden with further possible driveway access or parking area

Full description

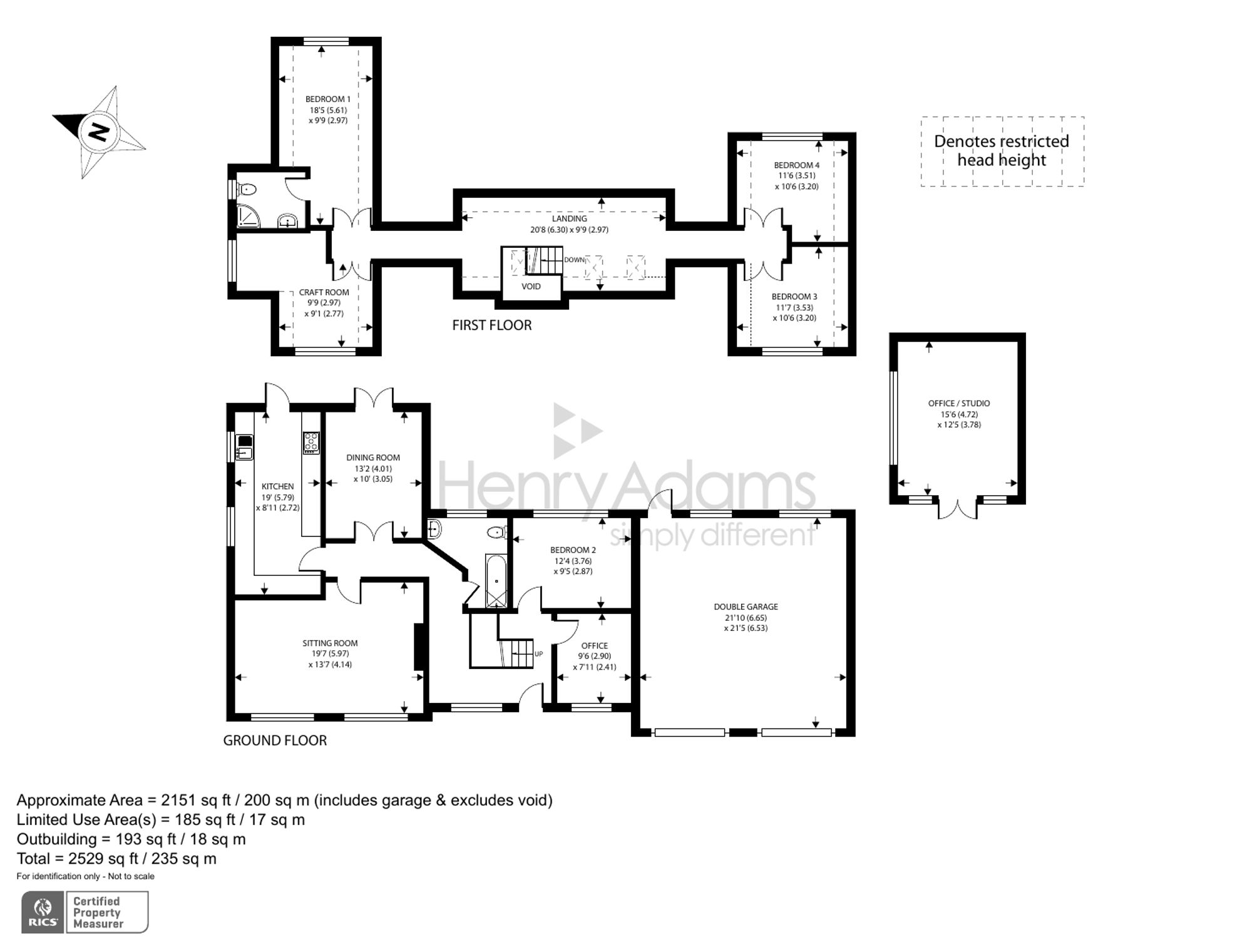
Spring Cottage sits in a gem of a location, one of the quietest, most secluded, and sought after lanes in the village. A beautifully presented modernised home and gardens offering anyone truly flexible living and home working accommodation. Spring Cottage has been renovated over the years to a high standard with a light and bright feel throughout.

Entry to Spring Cottage is over a block paved driveway with parking for several vehicles. The entrance hall leads to the living accommodation which comprises, a bright and airy sitting room with a Stovax modern woodburner and large windows giving views over the front garden, a dining room with French doors to the entertaining terrace and large solid hardwood decking, a solid oak-wood kitchen with a range of high and low level cupboards, breakfast area, solid walnut work surfaces, with integrated slimline dishwasher, washing machine, stainless steel Belling cooker, fridge freezer space and access to the garden entertaining areas.

The ground floor provides a good-sized homeworking/study room facing the front garden and drive, a bright good sized double bedroom with views over the decking / rear garden, and bright modern full bathroom nearby.

Access to the first floor is via a bespoke modern beech hardwood staircase made locally, leading immediately to a spacious upper landing area spanning the entire property. Light in feeling the landing with its conservation Velux windows provides ample space for a snug area, study or just a lovely space to relax. One wing of the landing houses two double bedrooms over the garage, there is plumbing in situ in bedroom four to change the bedroom into an additional bathroom, with the opposite wing providing a further double bedroom and the principal bedroom with an en-suite shower room.

The outside of Spring Cottage is a superb feature of the property, its large well stocked and secluded rear garden comprises Indian stone terraces, impressive curved stepped access leading to a lower sunny garden lawn area that includes a perfect modern feeling and insulated craft, homeworking, or art studio. A wonderful feature of the garden is a large hardwood & stainless steel decked area that encompasses the rear of the property providing access from the patio area, garage, and side access points. Front garden comprises of a lawn with borders and seclusion from the very quiet lane. Also in the front garden is an upper unmade area that would be suitable for addition parking or a potential patio.

Situation

West Chilitington is an attractive and thriving village and has so much on offer, a busy village hall, tennis club, croquet club, cricket club, a post office and local shop in the old village along with the historic St Mary's Church which dates back to the 12th Century and also the village junior school, along with another parade of shops offering a village store and post office, butchers, hairdressers and beauty salon. The surrounding villages of Pulborough and Storrington offer various supermarkets and a range of independent shops. There are numerous walks near the local vineyards and onto various watering holes or an abundance of public footpaths. Rail links to London Victoria and London Bridge and the South Coast are in the neighbouring village of Pulborough.

The area around provides a wide range of sporting and recreational facilities with West Sussex Golf Club and other golf clubs further afield at Cowdray Park and Goodwood. Of special note is the RSPB nature reserve at Wiggonholt Brooks. The area has rugby, bowls and cricket clubs, and there are leisure centres at Storrington and Billingshurst. There is gliding at nearby Parham, theatres at Chichester, Horsham and Worthing and sailing centres all along the coast.
  • Entrance Hall
  • Sitting Room
  • Dining Room
  • Kitchen
  • Office
  • Bedroom 2
  • Bathroom
  • Landing
  • Bedroom 1
  • En-Suite Shower Room
  • Bedroom 3
  • Bedroom 4
  • Craft Room / Bedroom 5
  • Office / Studio

Council Tax Band: G

Tenure: Freehold

EPC Rating: D

Why live in Storrington?

This picture-perfect village lies at the foot of the South Downs National Park, halfway along the South Downs Way. Properties here include bungalows, family homes and the famous Wells cottages that were individually designed by the architect Reginald Fairfax Wells in the 1920s to look and feel like 17th century buildings with thatched roofs, small windows and whitewashed exteriors.

Many of the homes in Storrington have wonderful views across rolling countryside and a conservation area just off the bustling high street ensures Storrington will remain as beautiful as it is today for generations to come.

There are lots of specialist shops in the town and convenient amenities such as the large recreational ground with its football and cricket pitches, the Chanctonbury Leisure Centre and an abundance of community groups offering classes in all sorts of interesting activities from ballroom dancing to photography. For a spot of culture, visit the Parham House and Gardens or the local Storrington and District Museum and for outdoor pursuits, take time to explore the natural beauty of the South Downs on foot, bike or horseback or, for a truly spectacular experience, take to the air in a glider.

Our local schools belong to a cluster group called STARS (Storrington Area Rural Schools) and, between them, offer a choice of paths from Reception through to Year 13. Steyning Grammar School is included in the list of STARS and is a popular choice as it’s non-selective and has its own Sixth Form.

Storrington is well connected too; the nearest train station is in the neighbouring village of Pulborough. The five-mile journey only takes 10 minutes by car or you can take a bus; the bus timetable is synced with the train timetable to make life even easier for local commuters.

If you’d like to buy, sell or let a property in Storrington, get in touch with your local team and discover the Henry Adams difference for yourself.

Read more