Facebook

Cardew Road, Liss, GU33

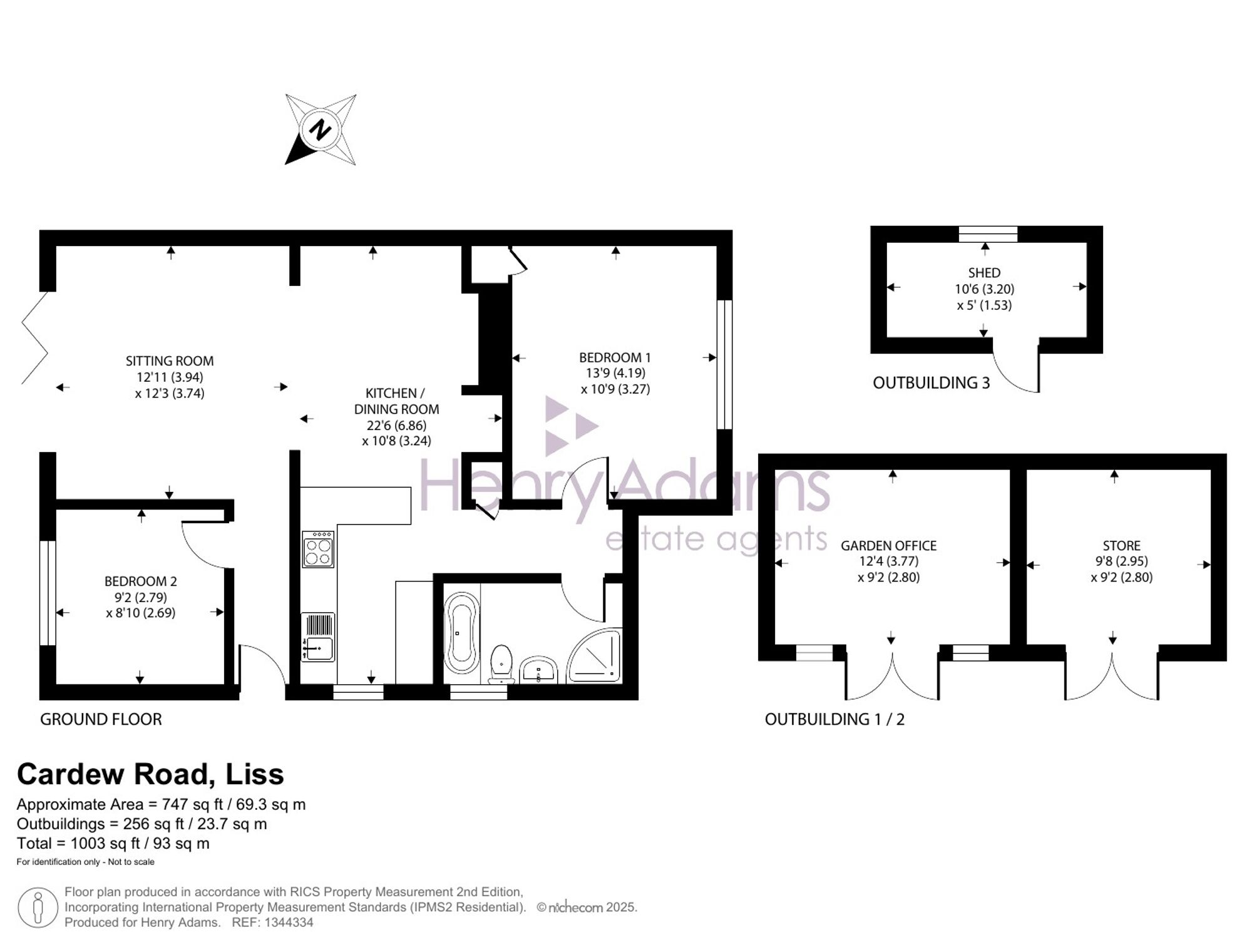
2 Bed │ 1 Bath │ 1 Rec

Guide Price £275,000

Projected Gross Yield: 5.05% Estimated rent: £1,200.00PCM
Save
Petersfield

Dean Kellaway

Branch Manager

Key features

  • ***Lease Extension in Progress***
  • Private Enclosed Garden.
  • Open Plan Living Space.
  • Close to Local Amenities.
  • Driveway Parking.
  • Home Garden Office.
  • Walkable to village centre.
  • Great Location for Transport Links.
  • Double Glazed Windows & Gas Central Heating.

Full description

This spacious two-bedroom ground floor maisonette in Liss offers light-filled rooms, comfortable living, and the bonus of a private garden. The generous layout includes a well-proportioned living area, a practical kitchen, and two good-sized bedrooms, making it an ideal choice for first-time buyers, those looking to downsize and investors alike.

With its private entrance, allocated parking, and easy access to the garden, the property provides both convenience and a sense of independence. The home is bright and welcoming throughout, with plenty of space to make your own.

Perfectly located in the popular village of Liss, you’ll have local shops, cafés, and amenities close by, as well as excellent transport links via Liss station and the nearby A3. The surrounding South Downs National Park offers miles of countryside walks and outdoor activities right on your doorstep.

This is a well-presented, home in a sought-after location — ready to move into and enjoy.

***Our vendor informs us they are in the process of extending the lease in readiness for the new owner***

Situation

  • Bedroom 1
  • Bedroom 2
  • Kitchen
  • Living area
  • Bathroom
  • Garden

Council Tax Band: B

Tenure: Leasehold

Lease remaining: 0 years

EPC Rating: C

Why live in Petersfield?

Petersfield often features on lists of the best places to live and work and was recently voted one of the top 10 most desirable market towns in England; The Guardian went so far as to describe Petersfield as ‘a commuter’s Nirvana, the urban equivalent of a foot rub and a G&T’.

We have a delightful choice of properties in the area, from beautiful character cottages, some dating back 500 years, to coach house style homes and large rural retreats to modern family homes. There’s also a thriving rental market here as the convenient location, attractive setting and abundant facilities make this an excellent base for those working in the wider area or simply wanting a perfect place to raise a family.

One of the major attractions for families is the choice of world-class schools – The Petersfield School is rated ‘outstanding’ by Ofsted and Bohunt School at nearby Liphook is one of the top performing state schools in the country. In the private sector, Churcher’s College and Bedales are located in the town, while Ditcham Park School is just to the southeast.

We have cosmopolitan range of shops, restaurants and cafés, with most major retailers represented. The Petersfield Market is held twice a week in The Square and a Hampshire Farmer’s Market is held on the first Sunday of every month. We also have many sports facilities, including two golf clubs, the Taro Leisure Centre and the Petersfield Open Air Swimming Pool, which, despite being open to the elements, is always heated to an average of 27 degrees.

But what really sets Petersfield apart is the beautiful countryside and its pretty villages. These include Selborne with its post office, primary school and choice of two pubs, Steep Village, which sits on wooded slopes known as The Hangers and was once home to Sir Alec Guinness, Buriton Village, which sits between Petersfield and the Queen Elizabeth Country Park and Rogate and Rake to the east within in the Rother Valley.

If you’d like to buy, sell or let a property in Petersfield, get in touch with your local team and discover the Henry Adams difference for yourself.

Read more