Facebook

Queens Street, Stedham, GU29

2 Bed │ 2 Bath │ 1 Rec

Offers in Region of £500,000

Save
Midhurst

Matt Shepherd

Partner

Key features

  • No Onward Chain
  • Two Bedrooms / Two Bathrooms (One Ensuite)
  • Low Maintenance Courtyard Garden
  • Private Driveway
  • Charming Character Cottage
  • Positioned in the Heart of a Sought After Village
  • Access to Local Countryside Walks

Full description

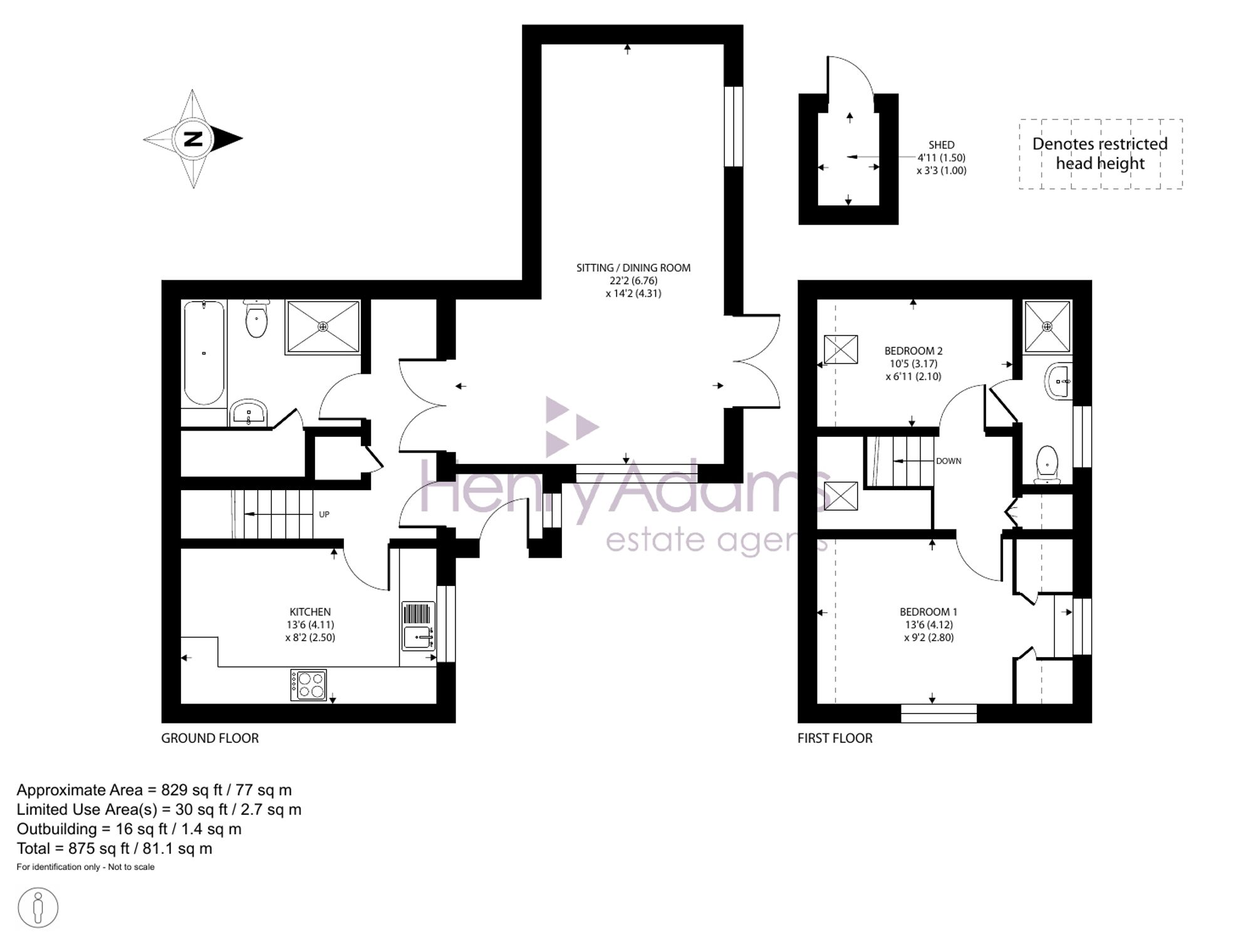
Nestled in the heart of the ever-popular rural village of Stedham, The Old Coach House is a charming detached character cottage offering a peaceful setting and a wonderfully private feel. Tucked away in a quiet position, the property is approached via a five-bar gate leading to off-street parking for one vehicle, with a further gate opening into an enclosed and secluded courtyard garden.

Beautifully presented throughout, the accommodation combines character features with practical modern living. The well-appointed fitted kitchen comes complete with white goods and flows through to an inviting ‘L’ shaped living/dining room. This spacious reception area enjoys a cosy log burner and French doors opening directly onto the paved courtyard garden, creating an ideal space for both everyday living and entertaining. A useful study area and a family bathroom with separate bath and shower complete the ground floor.

Upstairs, the first floor offers two double bedrooms, both with built-in wardrobes. The principal bedroom further benefits from its own ensuite shower room, providing additional comfort and convenience.

With its charming setting, private outside space, and well-balanced accommodation, The Old Coach House presents an excellent opportunity to acquire a delightful home in one of the area’s most sought-after village locations.

Situation

  • Sitting / Dining Room 22' 2" x 14' 2" (6.76m x 4.31m)
  • Kitchen 13' 6" x 8' 2" (4.11m x 2.50m)
  • Study Area
  • Bathroom
  • Bedroom 1
  • Bedroom 2 10' 5" x 6' 11" (3.17m x 2.10m)
  • Ensuite

Council Tax Band: E

Tenure: Freehold

EPC Rating: E

Why live in Midhurst?

Midhurst lies on the River Rother, just 12 miles north of Chichester, and has the remarkable claim to fame of being the home of British polo thanks to the Cowdray Park Polo Club on the local Cowdray Estate, but there’s so much more to this pretty market town. It’s centuries old, boasting more than 100 listed buildings with a charming mix of medieval, Georgian, Victorian and Edwardian architecture that sits comfortably alongside more contemporary new homes.

The narrow lanes of Midhurst’s old town offer a fantastic variety of places to shop with an abundance of small independent boutiques all housed in ancient buildings. There are plenty of places to dine in and around the town centre, too, with options ranging from up-market restaurants specialising in local produce to high street favourites and charming tearooms where you can enjoy your favourite afternoon treat.

You’ll also find plenty to do here – when you’re not engaged in polo, fly-fishing or clay pigeon shooting on the Cowdray Estate, you could head over to the Cowdray Golf Club to enjoy some of the most scenic views in West Sussex and get involved with one of the many other clubs and societies that use it as a base. You’ll find a local camera club, the Midhurst Players, the Gardening Club and in August you could join in with the ten days of fun at the Midhurst Music, Arts and Dramatic Festival, ‘MADhurst’. There’s never a dull moment here!

As far as family life goes, we have many well-regarded schools in and around the area, all with strong Ofsted reports and excellent reputations, including Midhurst C of E Primary and Midhurst Rother College, which, between them, cater for pupils from age four to 18.

If you’d like to buy, sell or let a property in Midhurst, get in touch with your local team and discover the Henry Adams difference for yourself.

Read more