Facebook

Seal Square, Seal House Seal Square, PO20

9 Bed │ 9 Bath │ 9 Rec

Guide Price £700,000

Save
Selsey

Kevin Daymond

Partner

Key features

  • Investment opportunity
  • Freehold property with 7 flats ( one of which is a detached bungalow )
  • Building and flats will require updating to maximise rental income
  • We're advised the current annual income £53,580 ( this excludes 2 flats which are currently unlet )
  • Close proximity to the beach
  • Off road parking for 5/6 cars with space to create an additional space
  • Top floor flat with sea views
  • Communal outside space and storage shed for each flat

Full description

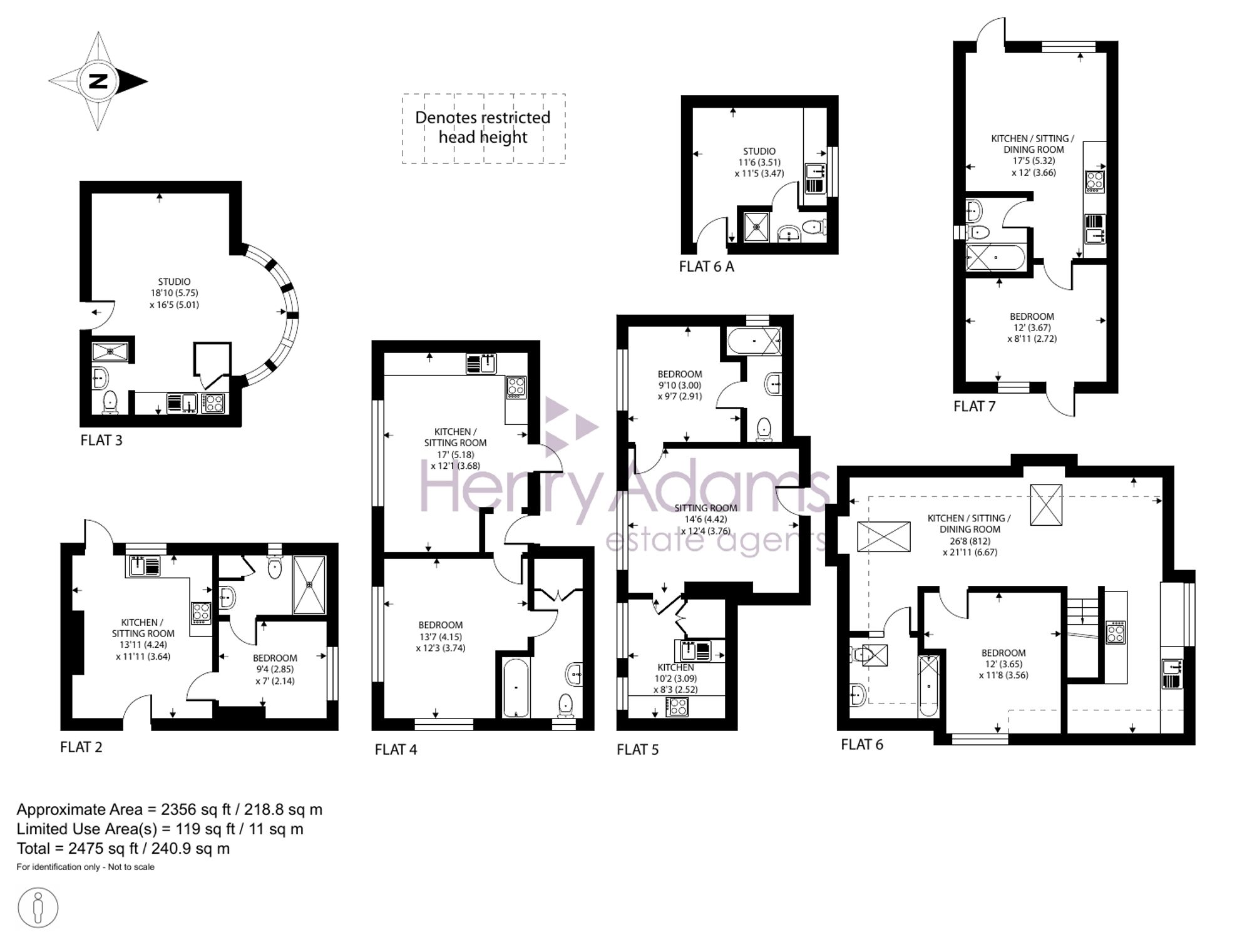
This freehold investment opportunity presents a substantial building comprising seven flats, one of which is a detached bungalow to the side of the building, situated in close proximity to the beach. The property offers significant potential for improvement, as both the building and individual flats would benefit from updating in order to maximise rental income. We are advised that the current annual income is circa £53,580, which does not include two flats that are presently unlet, highlighting further scope for increased returns. The layout includes a top floor flat that boasts attractive sea views, and all residents benefit from communal outside space and a private storage shed. This property is well suited to investors seeking a project with excellent long-term prospects in a sought-after coastal location.

Externally, the property offers a communal garden to the rear, mainly laid to stone, providing a low-maintenance space for residents to enjoy. A circular raised area adds interest to the garden, while a hard-standing and decked area offer further versatility for outdoor activities. Each flat is allocated its own shed for storage space, ideal for bicycles or garden equipment. To the front of the building, there are parking spaces, and a brick-built flower bed could be removed to create a another parking space if desired. The arrangement of the outside space ensures practicality and convenience for residents, while the proximity to the seafront enhances the overall appeal of this investment property.

Situation

  • Flat 1
  • Open plan living area & bedroom 17' 5" x 9' 7" (5.32m x 2.91m)
  • Flat 2
  • En-Suite Shower Room
  • Flat 3
  • Living room & bedroom 15' 11" x 12' 2" (4.84m x 3.70m)
  • Kitchen space 8' 0" x 6' 8" (2.45m x 2.04m)
  • Flat 4
  • Open plan living room & kitchen 17' 0" x 12' 2" (5.17m x 3.72m)
  • Flat 5
  • Living room 14' 6" x 12' 3" (4.42m x 3.74m)
  • Kitchen 10' 1" x 8' 4" (3.08m x 2.53m)
  • En-suite bathroom
  • Flat 6
  • living area 26' 7" x 9' 4" (8.11m x 2.84m)
  • Galley style kitchen 13' 9" x 6' 9" (4.20m x 2.06m)
  • Flat 7
  • Open plan living room/kitchen 17' 7" x 12' 0" (5.35m x 3.66m)
  • bathroom
  • Owners residence
  • Open plan living space & kitchen 11' 11" x 11' 7" (3.62m x 3.52m)
  • Bedroom 7' 8" x 6' 4" (2.33m x 1.92m)
  • Shower room

Council Tax Band: A

Tenure: Freehold

EPC Rating: D

Why live in Selsey?

It may be classed as a town, but Selsey is still a seaside village at heart and, whether you’re looking for a dream home by the beach, a place to indulge your passion for watersports or a quiet retreat away from the hustle and bustle of life, Selsey has it all.

The old town in the south east quarter is known for its charming historic properties, including 17th century thatched houses while you’ll find many large and secluded homes offering stunning views of the water by the seafront. The north of Selsey has many 1970s style properties with more substantial, semi-rural homes set around them.

You’ll find a great selection of shops, pubs and restaurants right here on the High Street along with a strong sense of community, especially at Christmas when the Selsey Lights are a sight to behold. We have two local primary schools, Medmerry Primary and the Seal Primary Academy, and The Academy Selsey senior school in the town with more options in Chichester, including Chichester High School.

Selsey has a long-standing love of sport and is proud home to both Selsey Cricket Club and the Selsey Football and Social Club, as well as a bowls and tennis club, but you’ll find even more sporting activity by the water. If you like scuba diving or snorkelling we have some of the best water for diving in the UK, with more than 100 wrecks to explore just off the coast. If you’re keen to learn, the Mulberry Divers Centre on East Beach offers tuition to everyone from complete beginners to advanced divers. There’s swimming, sailing and windsurfing around the Selsey Bill headland or bike rides along the coastal cycle path or to the stunning beaches at Bracklesham Bay, East Wittering or West Wittering where you can feel the sand under your feet.

While Selsey offers the best of seaside living, it’s just less than 10 miles from the cultural heartland of Chichester and everything that the famous cathedral city has to offer, from the plentiful shops to the Festival Theatre. So you see, Selsey really does have it all.

If you’d like to buy, sell or let a property in Selsey, get in touch with your local team and discover the Henry Adams difference for yourself.

Read more