Facebook

Longmead, Liss, GU33

2 Bed │ 1 Bath │ 1 Rec

Guide Price £240,000

Projected Gross Yield: 5.76% Estimated rent: £1,200.00PCM
Save
Petersfield

Dean Kellaway

Branch Manager

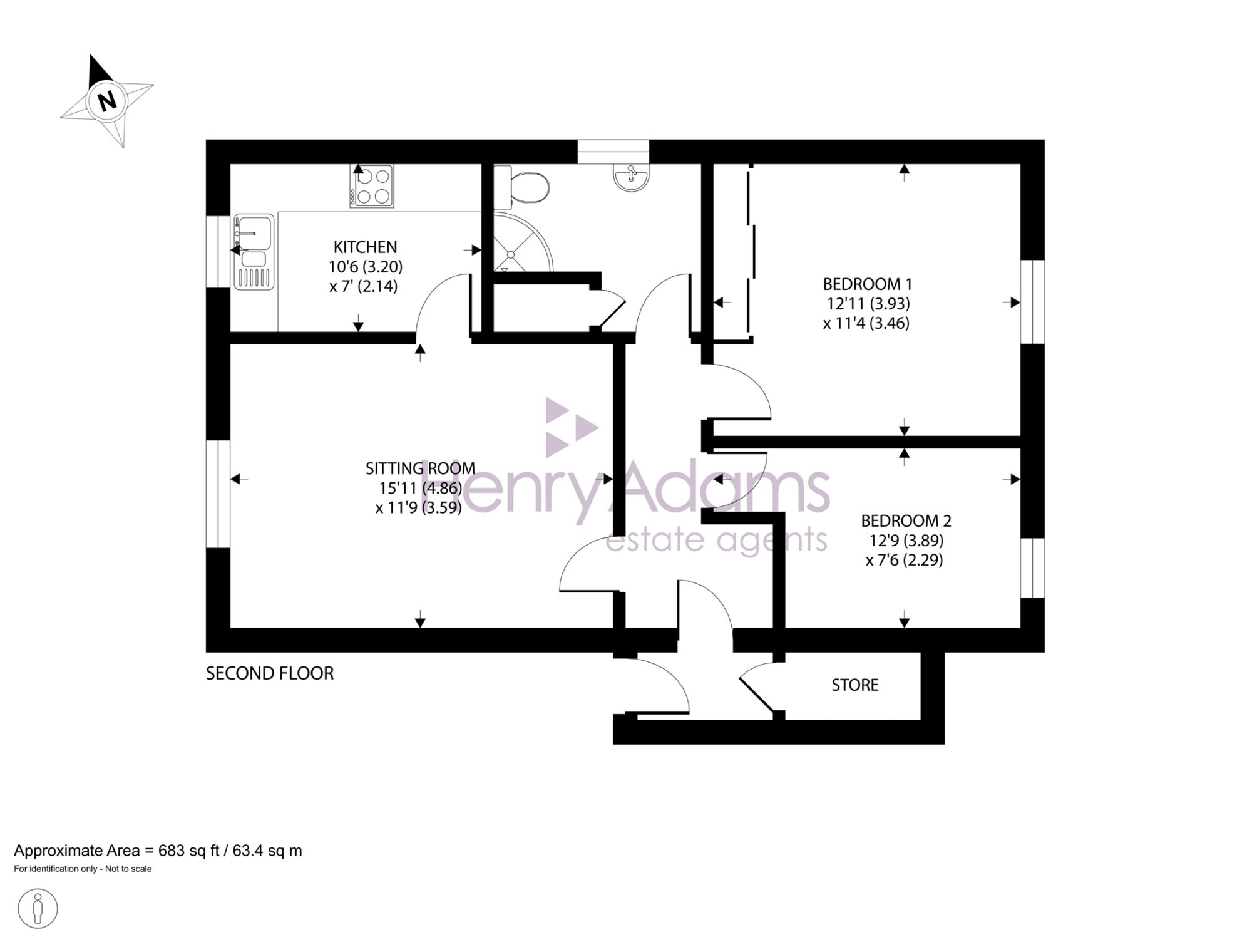
Key features

  • Two Bedroom Top Floor Flat
  • Far Reaching Views
  • Walkable to Liss Train Station
  • Ideal First Time Buyer or Investment Purchase
  • Spacious Living Room.
  • Allocated Parking Space.
  • Well-Equipped Kitchen.
  • No Forward Chain.

Full description

A superb opportunity to purchase a well-presented two-bedroom top floor flat boasting far-reaching views and a highly convenient location within walking distance of Liss Train Station.

This appealing home offers a spacious living room, perfect for relaxing or entertaining, along with a well‑equipped kitchen providing ample storage and worktop space. Both bedrooms are well proportioned, making the property ideal for a first-time buyer or those seeking a reliable 'ready to let' investment purchase.

Additional benefits include an allocated parking space and the significant advantage of no forward chain, ensuring a smooth and swift transaction. The property will also be sold with the benefit of an extended lease term.

Situation

Council Tax Band: B

Tenure: Leasehold

EPC Rating: D

Why live in Petersfield?

Petersfield often features on lists of the best places to live and work and was recently voted one of the top 10 most desirable market towns in England; The Guardian went so far as to describe Petersfield as ‘a commuter’s Nirvana, the urban equivalent of a foot rub and a G&T’.

We have a delightful choice of properties in the area, from beautiful character cottages, some dating back 500 years, to coach house style homes and large rural retreats to modern family homes. There’s also a thriving rental market here as the convenient location, attractive setting and abundant facilities make this an excellent base for those working in the wider area or simply wanting a perfect place to raise a family.

One of the major attractions for families is the choice of world-class schools – The Petersfield School is rated ‘outstanding’ by Ofsted and Bohunt School at nearby Liphook is one of the top performing state schools in the country. In the private sector, Churcher’s College and Bedales are located in the town, while Ditcham Park School is just to the southeast.

We have cosmopolitan range of shops, restaurants and cafés, with most major retailers represented. The Petersfield Market is held twice a week in The Square and a Hampshire Farmer’s Market is held on the first Sunday of every month. We also have many sports facilities, including two golf clubs, the Taro Leisure Centre and the Petersfield Open Air Swimming Pool, which, despite being open to the elements, is always heated to an average of 27 degrees.

But what really sets Petersfield apart is the beautiful countryside and its pretty villages. These include Selborne with its post office, primary school and choice of two pubs, Steep Village, which sits on wooded slopes known as The Hangers and was once home to Sir Alec Guinness, Buriton Village, which sits between Petersfield and the Queen Elizabeth Country Park and Rogate and Rake to the east within in the Rother Valley.

If you’d like to buy, sell or let a property in Petersfield, get in touch with your local team and discover the Henry Adams difference for yourself.

Read more