Facebook

Needlemakers, City Chase Needlemakers, PO19

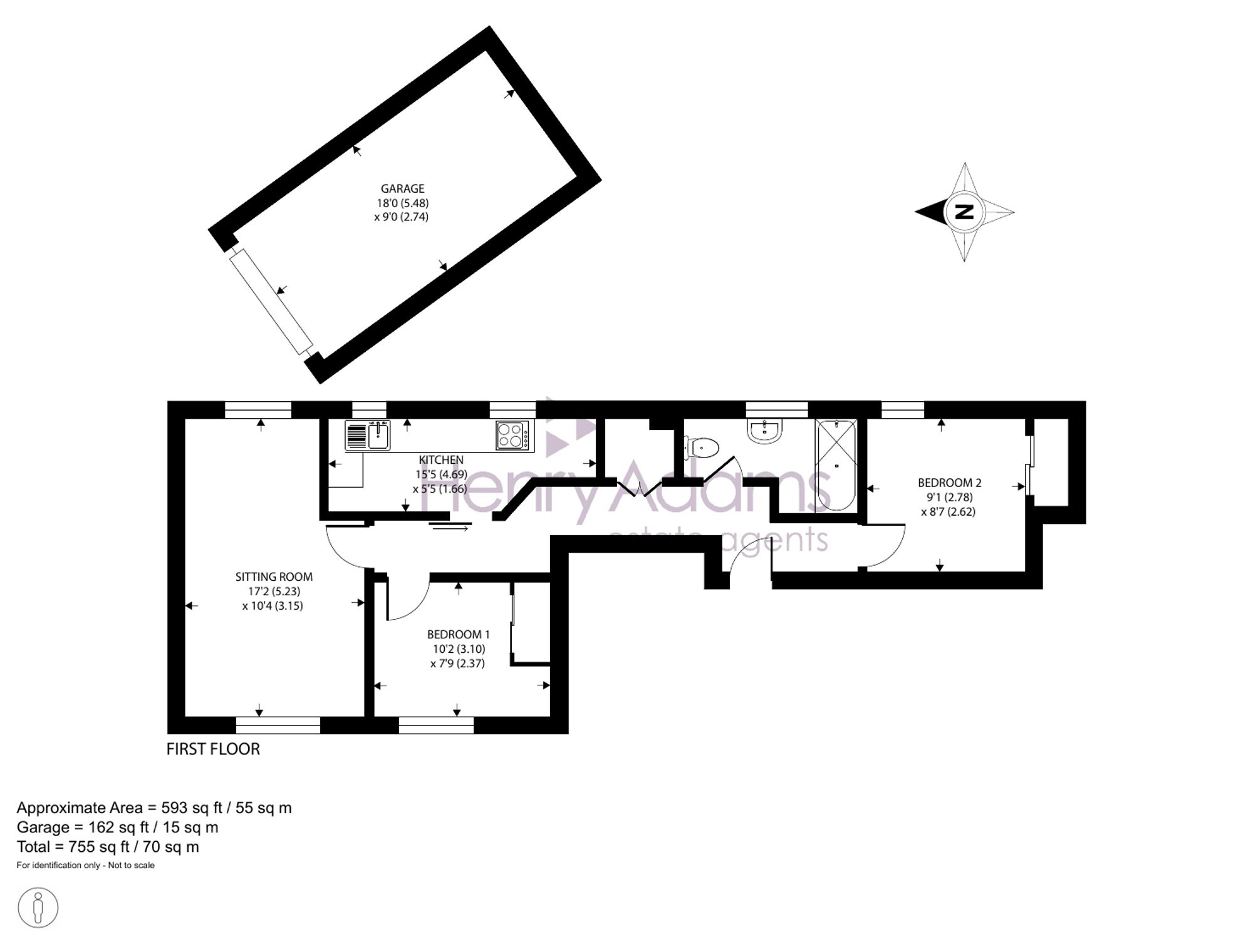
2 Bed │ 1 Bath │ 1 Rec

Guide Price £227,500

Save
Chichester

Richard Longhurst

Partner

Key features

  • No onward chain
  • Ideal 'buy-to-let' or main home
  • First floor apartment
  • Bright dual aspect sitting room
  • Bathroom with shower
  • Garage in central courtyard
  • New windows 2023

Full description

An excellent opportunity for a main residence or buy-to-let investment.

Rarely available, this bright and well-presented purpose-built first-floor apartment is ideally located just a level 1/3-mile walk from the city centre shopping precinct. The property further benefits from a private garage within the central courtyard and a communal entrance shared with only one other apartment.

The accommodation comprises an entrance hallway, a sunny dual-aspect sitting room with east and west facing windows, a fitted kitchen, two well-proportioned bedrooms, and a bathroom with an electric shower over the bath. The apartment is heated by gas central heating via radiators.

Both the windows and gas boiler have been replaced, offering improved efficiency and peace of mind.

Lease: 999 year lease granted 2025

Service Charge: 7 City Chase has a share of the freehold and the service charge is currently £2850.61 pa

Ground Rent: N/A

Chichester District Council - 25/26 Tax Band C £2,077.38 EPC-C

Directions - From the end of East Street proceed east along St Pancras on the one way system bearing right toward The Hornet into The Needlemakers. City Chase will be found immediately on the left. What3words - square.enable.tube

Situation

The property can be found within quarter of a mile level walk of the pedestrianized city centre and occupies a wonderful position adjacent to Litten Gardens recreational ground. The city of Chichester provides a comprehensive selection of shops, with many of the major multiple retailers being represented, as well as high quality independent traders and a number of public houses, wine bars and bistros. The internationally acclaimed Festival Theatre, Priory Park with its historic cricket ground and Pallant House gallery are just a few examples of the nearby facilities of this thriving city. The mainline station provides a service to London Victoria. Goodwood is famous for its many event days. There are superb sailing facilities around Chichester Harbour and water sports from the beaches at West Wittering. The area has beautiful walks and cycle tracks over the South Downs and around the harbour.

Council Tax Band: C

Tenure: Share of Freehold

EPC Rating: C

Why live in Chichester?

We consider ourselves very lucky to be working in a city that blends so many different architectural styles, from elegant Georgian buildings to contemporary new apartments and waterside properties that overlook the harbour.

In 2013, The Sunday Times listed Chichester as one of the top places to live in the UK with ‘something for everyone’ – and they weren’t wrong. Chichester is a cathedral city, a county town and home to some of the oldest churches and buildings in the country. There are many well-regarded public and state schools in the local area with further and higher education options available from Chichester College, West Dean College and the University of Chichester. Our great schools have always made Chichester very appealing for those looking for the perfect place to raise a family.

Our city centre is a shopper’s paradise and there are great places to eat and drink, from elegant restaurants to cosy cafés and pubs, all set along the city’s four main streets. Chichester Cathedral on West Street dominates the skyline and, on summer afternoons, its grounds are filled with local people enjoying picnics. In the evenings, the Cathedral plays a central part in the city’s nightlife by hosting classical music events.

Chichester has a number of public parks, the Chichester Tennis and Racquets Fitness Club and Westgate Leisure Centre, where you’ll find a large swimming pool and skate park and, if sailing is your thing, Chichester Harbour is a haven for you. There really is so much to do here you’ll be spoilt for choice; spend the day on one of the many local beaches, stretch your legs on the stunning South Downs or catch a show at the Festival Theatre before it moves to a permanent home in London’s West End.

If you’d like to buy, sell or let a property in Chichester, get in touch with your local team and discover the Henry Adams difference for yourself.

Read more