Facebook

Montalan Crescent, Selsey, PO20

2 Bed │ 1 Bath │ 1 Rec

Guide Price £134,950

Save
Selsey

Kevin Daymond

Partner

Key features

  • Freehold plot with caravan in situ
  • Family owned for 50yrs
  • Plot measures 48ft x 29ft
  • Open plan living/dining & kitchen
  • Two bedrooms
  • Offered for sale with an 8 month license
  • Garden to the side with lawn and raised, paved seating area
  • Two wooden sheds for storage
  • NO onward chain

Full description

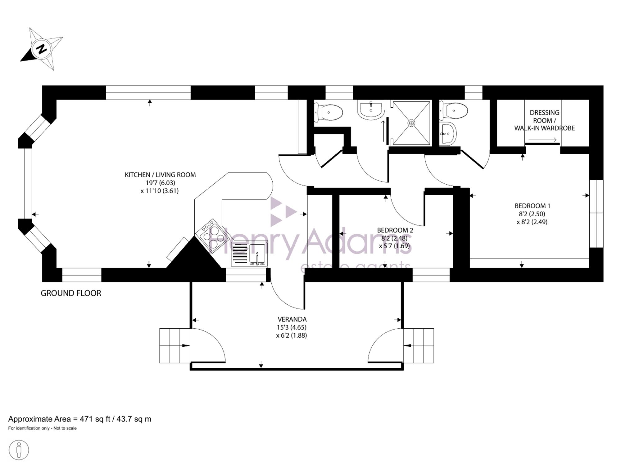
This opportunity presents a freehold plot with a caravan in situ, offered for sale with no onward chain and an 8 month licence. Family owned for 50 years, the plot measures approximately 48ft x 29ft, providing space for a peaceful retreat or a holiday base. The accommodation comprises an open plan living, dining, and kitchen area, creating a sociable and versatile environment for relaxing or entertaining. There are two bedrooms, ideal for family use or visiting guests, and the interior benefits from plenty of natural light throughout.

The outside space is located to the side of the caravan and and is mainly laid to lawn offering an enclosed space for children to play or for outdoor relaxation. A raised, paved seating area provides the perfect spot for al fresco dining or enjoying the sun. Two wooden sheds are included for valuable storage, accommodating garden tools, bicycles, leisure equipment, one containing a washing machine and tumble dryer (both included in the sale). This property is ideally suited for buyers seeking a manageable plot with scope for enjoyment and flexibility, all within a well-established location.

Situation

  • Veranda 15' 3" x 6' 2" (4.65m x 1.88m)
  • Open plan living, dining & kitchen area 19' 9" x 11' 10" (6.03m x 3.61m)
  • Kitchen
  • Inner hallway
  • Bedroom One 8' 2" x 8' 2" (2.50m x 2.49m)
  • Walk in wardrobe/dressing room
  • Bedroom Two 8' 2" x 5' 7" (2.48m x 1.69m)
  • Shower Room

Council Tax Band: A

Tenure: Freehold

Why live in Selsey?

It may be classed as a town, but Selsey is still a seaside village at heart and, whether you’re looking for a dream home by the beach, a place to indulge your passion for watersports or a quiet retreat away from the hustle and bustle of life, Selsey has it all.

The old town in the south east quarter is known for its charming historic properties, including 17th century thatched houses while you’ll find many large and secluded homes offering stunning views of the water by the seafront. The north of Selsey has many 1970s style properties with more substantial, semi-rural homes set around them.

You’ll find a great selection of shops, pubs and restaurants right here on the High Street along with a strong sense of community, especially at Christmas when the Selsey Lights are a sight to behold. We have two local primary schools, Medmerry Primary and the Seal Primary Academy, and The Academy Selsey senior school in the town with more options in Chichester, including Chichester High School.

Selsey has a long-standing love of sport and is proud home to both Selsey Cricket Club and the Selsey Football and Social Club, as well as a bowls and tennis club, but you’ll find even more sporting activity by the water. If you like scuba diving or snorkelling we have some of the best water for diving in the UK, with more than 100 wrecks to explore just off the coast. If you’re keen to learn, the Mulberry Divers Centre on East Beach offers tuition to everyone from complete beginners to advanced divers. There’s swimming, sailing and windsurfing around the Selsey Bill headland or bike rides along the coastal cycle path or to the stunning beaches at Bracklesham Bay, East Wittering or West Wittering where you can feel the sand under your feet.

While Selsey offers the best of seaside living, it’s just less than 10 miles from the cultural heartland of Chichester and everything that the famous cathedral city has to offer, from the plentiful shops to the Festival Theatre. So you see, Selsey really does have it all.

If you’d like to buy, sell or let a property in Selsey, get in touch with your local team and discover the Henry Adams difference for yourself.

Read more