Facebook

Church Road, Selsey, PO20

3 Bed │ 2 Bath │ 1 Rec

Guide Price £475,000

Save
Selsey

Kevin Daymond

Partner

Key features

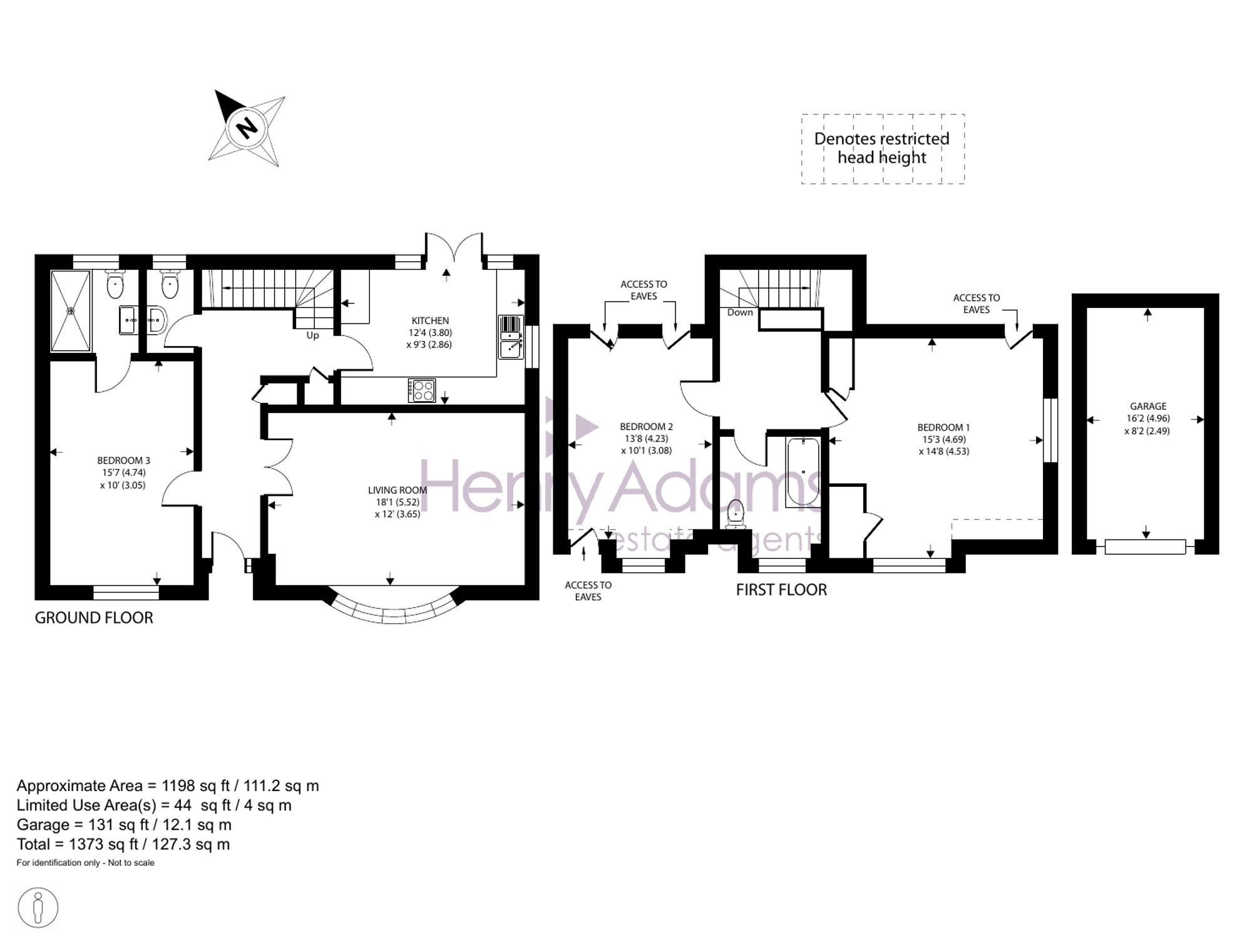
  • Detached chalet style home
  • Three double bedrooms ( 1 ground floor & 2 1st floor )
  • Living room room with log burner & wooden flooring
  • Kitchen with integrated appliances
  • En-suite wet room to ground floor bedroom
  • Ground floor cloakroom & 1st floor bathroom
  • Driveway for several cars & garage with additional car port infront
  • Located to the North of Selsey & on a bus route
  • NO onward chain

Full description

Offered to the market is this detached chalet style home, located to the north of Selsey and conveniently located on a bus route, offering a flexible layout ideal for modern family living. The property features three double bedrooms, with one located on the ground floor and two on the first floor, providing versatility for guests or multi-generational living. The ground floor bedroom benefits from its own en-suite wet room, while a separate cloakroom is also available on this level for added convenience. Upstairs, a bathroom serves the remaining bedrooms. The living room exudes warmth and character, featuring a log burner and attractive wooden flooring, creating a welcoming space for relaxation or entertaining. The kitchen is fitted with integrated appliances, offering functionality for the keen home cook. Further enhancing the appeal, the property is offered with no onward chain, making it an excellent opportunity for those seeking a smooth move.

Externally, the front garden is set behind a charming picket style fence, with mature hedges to the front and side providing privacy. The front garden is mainly laid to lawn, with side access leading to the rear garden. The rear garden is thoughtfully landscaped, featuring a patio seating area and matching pathways arranged in a horseshoe shape, with flower beds and a central lawned area. Part of the patio is covered by a pergola, offering a sheltered spot for outdoor dining or relaxation. There is convenient side access to the front and additional access to the driveway. The driveway itself is laid to grey stone and provides off-road parking for several cars, with a section at the front also suitable for use as a turning area or extra parking. A car port directly in front of the garage offers further covered parking. The garage is fitted with an up and over door, as well as light and power, making it suitable for storage or workshop use.

Situation

  • Covered entrance
  • Entrance Hall
  • Cloakroom
  • Living room 18' 0" x 12' 1" (5.49m x 3.68m)
  • Kitchen 12' 6" x 9' 5" (3.80m x 2.86m)
  • Ground floor bedroom 15' 7" x 10' 0" (4.75m x 3.04m)
  • En-Suite wet room
  • Landing
  • Bedroom One 15' 5" x 14' 10" (4.69m x 4.53m)
  • Bedroom Two 13' 11" x 10' 1" (4.23m x 3.08m)
  • Bathroom

Council Tax Band: E

Tenure: Freehold

EPC Rating: D

Why live in Selsey?

It may be classed as a town, but Selsey is still a seaside village at heart and, whether you’re looking for a dream home by the beach, a place to indulge your passion for watersports or a quiet retreat away from the hustle and bustle of life, Selsey has it all.

The old town in the south east quarter is known for its charming historic properties, including 17th century thatched houses while you’ll find many large and secluded homes offering stunning views of the water by the seafront. The north of Selsey has many 1970s style properties with more substantial, semi-rural homes set around them.

You’ll find a great selection of shops, pubs and restaurants right here on the High Street along with a strong sense of community, especially at Christmas when the Selsey Lights are a sight to behold. We have two local primary schools, Medmerry Primary and the Seal Primary Academy, and The Academy Selsey senior school in the town with more options in Chichester, including Chichester High School.

Selsey has a long-standing love of sport and is proud home to both Selsey Cricket Club and the Selsey Football and Social Club, as well as a bowls and tennis club, but you’ll find even more sporting activity by the water. If you like scuba diving or snorkelling we have some of the best water for diving in the UK, with more than 100 wrecks to explore just off the coast. If you’re keen to learn, the Mulberry Divers Centre on East Beach offers tuition to everyone from complete beginners to advanced divers. There’s swimming, sailing and windsurfing around the Selsey Bill headland or bike rides along the coastal cycle path or to the stunning beaches at Bracklesham Bay, East Wittering or West Wittering where you can feel the sand under your feet.

While Selsey offers the best of seaside living, it’s just less than 10 miles from the cultural heartland of Chichester and everything that the famous cathedral city has to offer, from the plentiful shops to the Festival Theatre. So you see, Selsey really does have it all.

If you’d like to buy, sell or let a property in Selsey, get in touch with your local team and discover the Henry Adams difference for yourself.

Read more