Facebook

Blackberry Lane, Selsey, PO20

2 Bed │ 1 Bath │ 1 Rec

Guide Price £360,000

Save
Selsey

Kevin Daymond

Partner

Key features

  • Well presented detached bungalow in cul-de-sac location
  • Two double bedrooms both with built in wardrobes
  • Living room and conservatory
  • Modern kitchen with integrated appliances
  • Modern shower room
  • Gas heating & double glazing throughout
  • Driveway & garage
  • Low maintenance gardens to both front & rear

Full description

Nestled in a peaceful cul-de-sac, this well presented detached bungalow offers a superb opportunity for those seeking comfortable and modern single-level living.

The property features two double bedrooms, each benefiting from built in wardrobes that provide ample storage space. The inviting living room is filled with natural light and leads seamlessly into a bright conservatory, itself stretching along the rear of the home and creating an ideal setting for relaxation or entertaining guests. The modern kitchen is equipped with integrated appliances, offering both functionality and style for every-day cooking. A sleek and modern shower room adds to the property’s appeal, ensuring convenience and comfort.

Throughout the bungalow, gas central heating and double glazing contribute to a warm and energy efficient environment. Practicality is further enhanced by the presence of a driveway and garage, providing secure parking and additional storage options. The property’s low maintenance gardens to both the front and rear are designed for ease of care, allowing residents to enjoy attractive outdoor spaces without the need for extensive upkeep.

Situation

  • Covered entrance
  • Entrance Hall
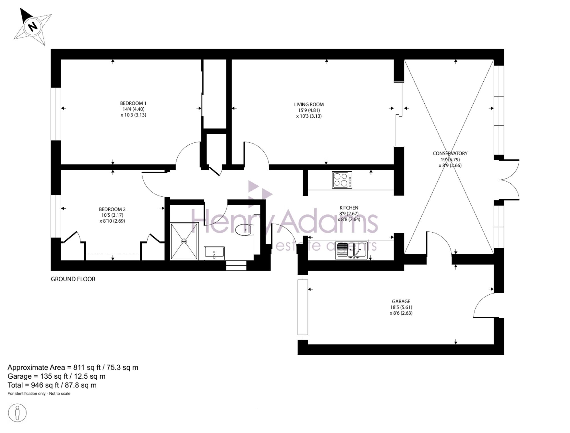
  • Living room 15' 9" x 10' 3" (4.81m x 3.13m)
  • Kitchen 8' 9" x 8' 8" (2.67m x 2.64m)
  • Conservatory 19' 0" x 8' 9" (5.79m x 2.66m)
  • Bedroom One 14' 5" x 10' 3" (4.40m x 3.13m)
  • Bedroom Two 10' 5" x 8' 10" (3.17m x 2.69m)
  • Shower Room

Council Tax Band: D

Tenure: Freehold

EPC Rating: C

Why live in Selsey?

It may be classed as a town, but Selsey is still a seaside village at heart and, whether you’re looking for a dream home by the beach, a place to indulge your passion for watersports or a quiet retreat away from the hustle and bustle of life, Selsey has it all.

The old town in the south east quarter is known for its charming historic properties, including 17th century thatched houses while you’ll find many large and secluded homes offering stunning views of the water by the seafront. The north of Selsey has many 1970s style properties with more substantial, semi-rural homes set around them.

You’ll find a great selection of shops, pubs and restaurants right here on the High Street along with a strong sense of community, especially at Christmas when the Selsey Lights are a sight to behold. We have two local primary schools, Medmerry Primary and the Seal Primary Academy, and The Academy Selsey senior school in the town with more options in Chichester, including Chichester High School.

Selsey has a long-standing love of sport and is proud home to both Selsey Cricket Club and the Selsey Football and Social Club, as well as a bowls and tennis club, but you’ll find even more sporting activity by the water. If you like scuba diving or snorkelling we have some of the best water for diving in the UK, with more than 100 wrecks to explore just off the coast. If you’re keen to learn, the Mulberry Divers Centre on East Beach offers tuition to everyone from complete beginners to advanced divers. There’s swimming, sailing and windsurfing around the Selsey Bill headland or bike rides along the coastal cycle path or to the stunning beaches at Bracklesham Bay, East Wittering or West Wittering where you can feel the sand under your feet.

While Selsey offers the best of seaside living, it’s just less than 10 miles from the cultural heartland of Chichester and everything that the famous cathedral city has to offer, from the plentiful shops to the Festival Theatre. So you see, Selsey really does have it all.

If you’d like to buy, sell or let a property in Selsey, get in touch with your local team and discover the Henry Adams difference for yourself.

Read more