Facebook

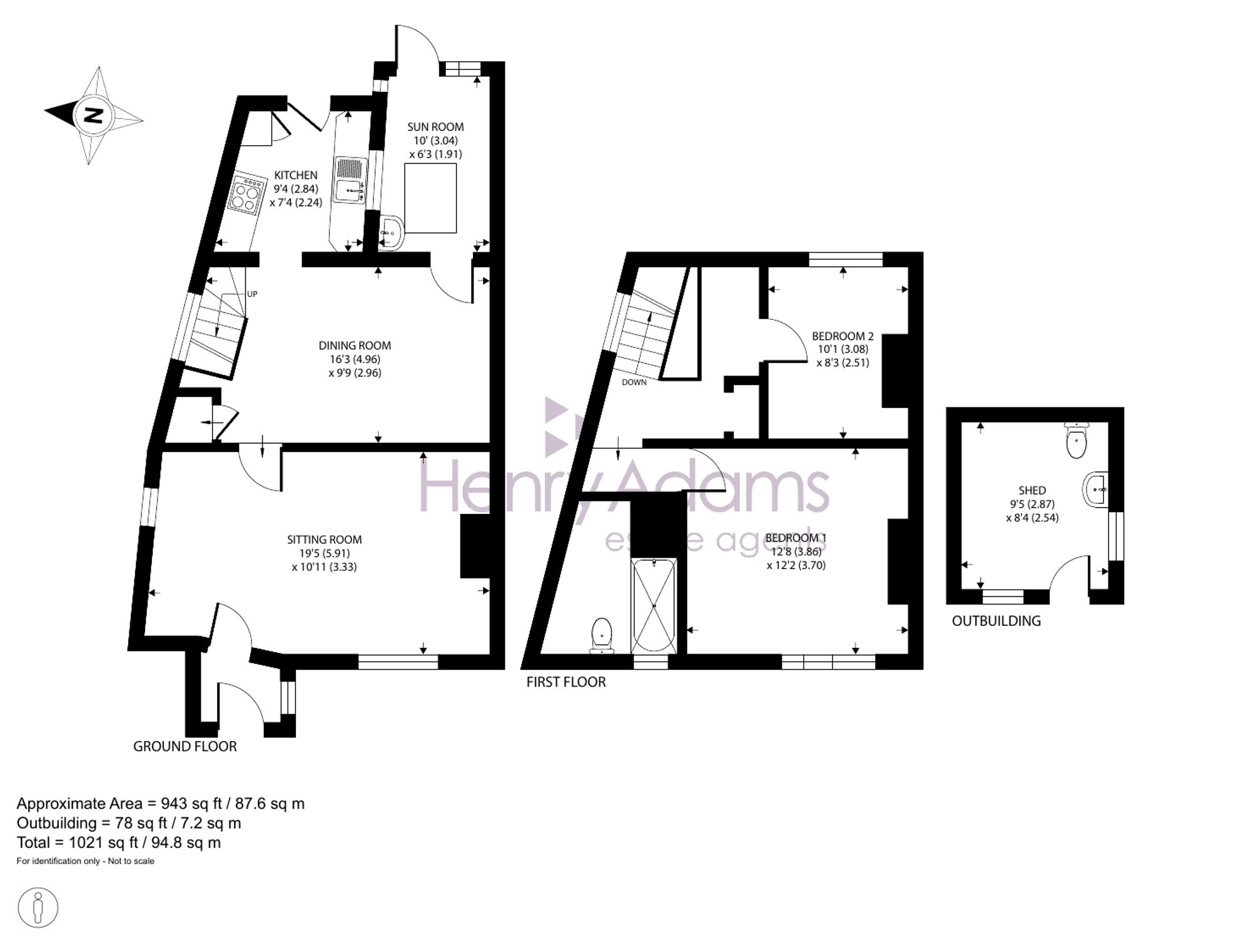
Mill Lane, Petersfield, GU32

2 Bed │ 1 Bath │ 2 Rec

Guide Price £320,000

Save
Petersfield

Dean Kellaway

Branch Manager

Key features

  • Sold via Secure Sale online bidding. Terms & Conditions apply. Starting Bid £320,000
  • Character Cottage
  • Popular Village Location
  • Two Double Bedrooms
  • Two Reception Rooms
  • Great Potential to Improve and Modernise
  • Car Port Providing Off Road Parking
  • Brick Outbuilding
  • No Onward Chain

Full description

Nestled in the heart of a popular village location, this character cottage exudes charm and potential. Boasting two double bedrooms, this property offers the perfect canvas for those looking to stamp their own mark and create their dream home. With a brick outbuilding for added storage and a convenient carport providing off-road parking, this quaint cottage is brimming with possibilities to improve and modernise. The cosy interior and tranquil surroundings make it a perfect retreat for those seeking a peaceful lifestyle in a sought-after community.

Step outside into the generous outdoor space and discover a hidden gem waiting to be transformed into a stunning outdoor oasis. Imagine morning coffees in the yard or evening gatherings in the peaceful surroundings; this property's outdoor space is a blank canvas ready to be personalised to suit your unique lifestyle and preferences.

Being sold via Secure Sale online bidding. Terms & Conditions apply. Starting Bid £330,000 This property will be legally prepared enabling any interested buyer to secure the property immediately once their bid/offer has been accepted. Ultimately a transparent process which provides speed, security and certainty for all parties.

Auctioneers Additional Comments

Pattinson Auction are working in Partnership with the marketing agent on this online auction sale and are referred to below as 'The Auctioneer'.

 This auction lot is being sold either under conditional (Modern) or unconditional (Traditional) auction terms and overseen by the auctioneer in partnership with the marketing agent. The property is available to be viewed strictly by appointment only via the Marketing Agent or The Auctioneer. Bids can be made via the Marketing Agents or via The Auctioneers website.

Please be aware that any enquiry, bid or viewing of the subject property will require your details being shared between both any marketing agent and The Auctioneer in order that all matters can be dealt with effectively.

The property is being sold via a transparent online auction. In order to submit a bid upon any property being marketed by The Auctioneer, all bidders/buyers will be required to adhere to a verification of identity process in accordance with Anti Money Laundering procedures. Bids can be submitted at any time and from anywhere.

Our verification process is in place to ensure that AML procedure are carried out in accordance with the law. The advertised price is commonly referred to as a ‘Starting Bid’ or ‘Guide Price’ and is accompanied by a ‘Reserve Price’. The ‘Reserve Price’ is confidential to the seller and the auctioneer and will typically be within a range above or below 10% of the ‘Guide Price’ / ‘Starting Bid’.

These prices are subject to change.

 

An auction can be closed at any time with the auctioneer permitting for the property (the lot) to be sold prior to the end of the auction.

A Legal Pack associated with this particular property is available to view upon request and contains details relevant to the legal documentation enabling all interested parties to make an informed decision prior to bidding. The Legal Pack will also outline the buyers’ obligations and sellers’ commitments. It is strongly advised that you seek the counsel of a solicitor prior to proceeding with any property and/or Land Title purchase.

Auctioneers Additional Comments

In order to secure the property and ensure commitment from the seller, upon exchange of contracts the successful bidder will be expected to pay a non-refundable deposit equivalent to 5% of the purchase price of the property. The deposit will be a contribution to the purchase price. A nonrefundable reservation fee up to 6% inc VAT (subject to a minimum which could be up to £7,200 inc VAT) is also required to be paid upon agreement of sale. The Reservation Fee is in addition to the agreed purchase price and consideration should be made by the purchaser in relation to any Stamp Duty Land Tax liability associated with overall purchase costs.

Both the Marketing Agent and The Auctioneer may believe necessary or beneficial to the customer to pass their details to third party service suppliers, from which a referral fee may be obtained. There is no requirement or indeed obligation to use these recommended suppliers or services.

Situation

Council Tax Band: E

Tenure: Freehold

EPC Rating: E

Why live in Petersfield?

Petersfield often features on lists of the best places to live and work and was recently voted one of the top 10 most desirable market towns in England; The Guardian went so far as to describe Petersfield as ‘a commuter’s Nirvana, the urban equivalent of a foot rub and a G&T’.

We have a delightful choice of properties in the area, from beautiful character cottages, some dating back 500 years, to coach house style homes and large rural retreats to modern family homes. There’s also a thriving rental market here as the convenient location, attractive setting and abundant facilities make this an excellent base for those working in the wider area or simply wanting a perfect place to raise a family.

One of the major attractions for families is the choice of world-class schools – The Petersfield School is rated ‘outstanding’ by Ofsted and Bohunt School at nearby Liphook is one of the top performing state schools in the country. In the private sector, Churcher’s College and Bedales are located in the town, while Ditcham Park School is just to the southeast.

We have cosmopolitan range of shops, restaurants and cafés, with most major retailers represented. The Petersfield Market is held twice a week in The Square and a Hampshire Farmer’s Market is held on the first Sunday of every month. We also have many sports facilities, including two golf clubs, the Taro Leisure Centre and the Petersfield Open Air Swimming Pool, which, despite being open to the elements, is always heated to an average of 27 degrees.

But what really sets Petersfield apart is the beautiful countryside and its pretty villages. These include Selborne with its post office, primary school and choice of two pubs, Steep Village, which sits on wooded slopes known as The Hangers and was once home to Sir Alec Guinness, Buriton Village, which sits between Petersfield and the Queen Elizabeth Country Park and Rogate and Rake to the east within in the Rother Valley.

If you’d like to buy, sell or let a property in Petersfield, get in touch with your local team and discover the Henry Adams difference for yourself.

Read more