Facebook

Mant Close, Storrington, RH20

2 Bed │ 1 Bath │ 1 Rec

Guide Price £325,000

Projected Gross Yield: 4.97% Estimated rent: £1,450.00PCM
Save
Storrington

Christina Bearryman

Sales Associate

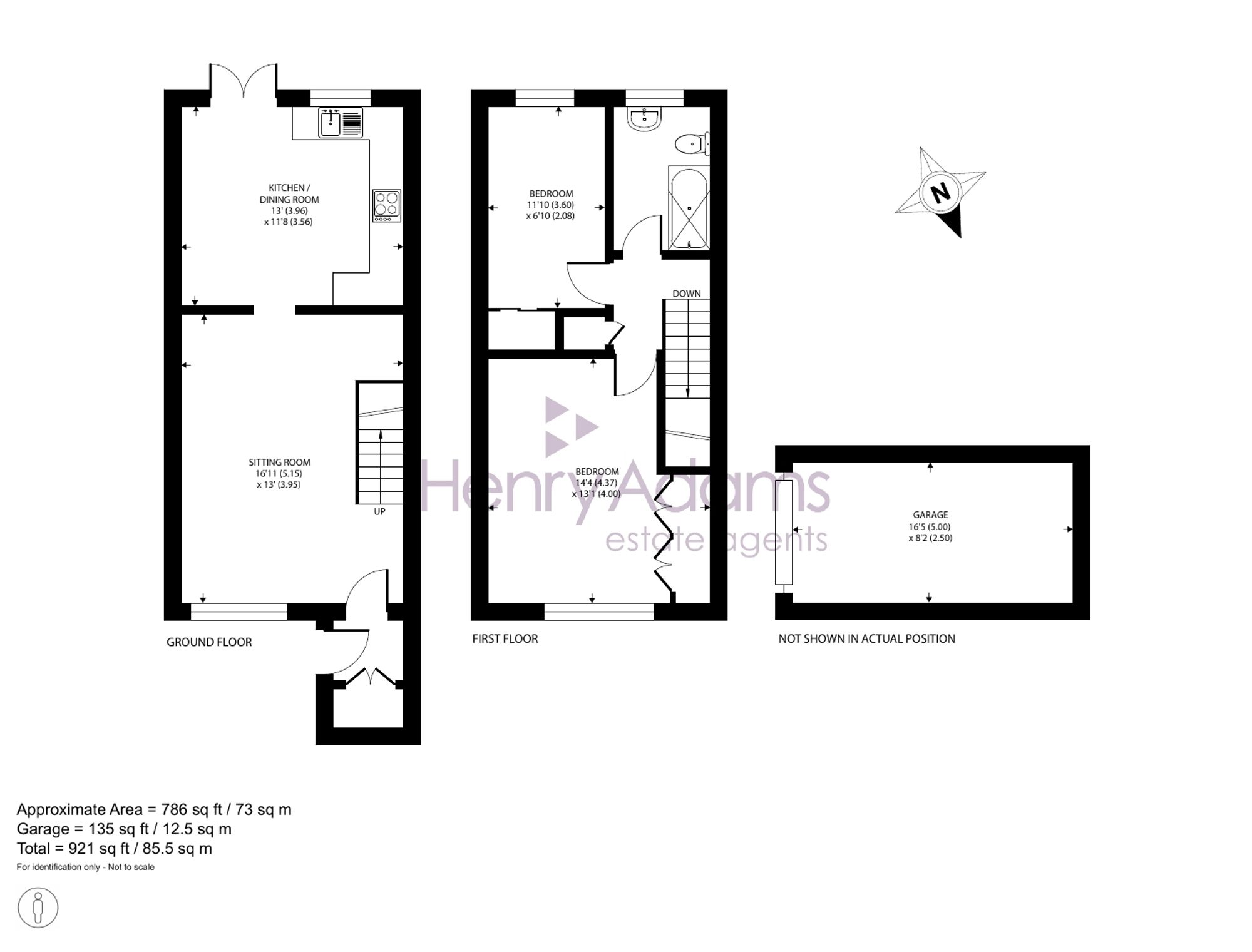
Key features

  • A lovely two bedroom mid terraced home in the centre of the village with south facing courtyard garden
  • Entrance hall with large storage cupboard
  • Sitting room with wood burner, and wood flooring
  • Kitchen with range of cupboards, gas hob, electric oven, space for additional appliances and French doors to garden
  • Two bedrooms to first floor both with wardrobes
  • Bathroom with shower over bath
  • South facing courtyard garden
  • Garage and parking for two vehicles
  • Within easy walking distance of the village and amenities

Full description

This beautifully presented two bedroom mid terraced house is ideally situated in the heart of the village, offering an inviting and comfortable home within easy walking distance of local amenities.

Upon entering, you are welcomed by an entrance hall that provides a generous storage cupboard, perfect for coats, shoes or household essentials. The sitting room is a bright and welcoming space, featuring a charming wood burner and attractive wood flooring that adds character and a touch of elegance. The kitchen is thoughtfully designed, offering a comprehensive range of cupboards, a gas hob, an electric oven, and ample space for additional appliances (such as a fridge freezer or dishwasher), while French doors invite natural light and provide a pleasant outlook.

Upstairs, the first floor comprises two well-proportioned bedrooms, both of which benefit from fitted wardrobes to maximise storage and create a clutter-free environment. The bathroom is modern and functional, equipped with a shower over the bath, ideal for both quick morning routines and relaxing evening soaks.

The rear garden off the kitchen is a particular sun trap being courtyard garden ideal to have plant pots to provide seasonal colour. Additional features include a garage and parking for two vehicles, ensuring convenience for residents and visitors alike. This property combines practical living with a welcoming atmosphere, making it an excellent choice for first-time buyers, downsizers or investors seeking a well-maintained home in a sought-after village location. With its thoughtful layout, quality finishes and proximity to local shops, cafes and services, this home offers both comfort and convenience in equal measure. Early viewing is highly recommended to appreciate the full appeal of this delightful property.

Situation

Storrington village lies in the lea of the South Downs National Park and has an established range of shops including Waitrose, Costa and a number of independent shops and HSBC bank. There is a health centre and various sporting activities including Chanctonbury Leisure Centre for fitness classes and activities, Storrington football club, Pulborough Rugby Club, tennis club and not forgetting the South Downs for walking or cycling or the National Trust Sullington Warren or Sandgate Country Park. The towns of Horsham and Worthing are about 15 and 11 miles respectively with good access to the A24.

The area around provides a wider range of sporting and recreational facilities with West Sussex Golf Club and other golf clubs further afield at Cowdray Park and Goodwood. Of special note is the RSPB nature reserve at Pulborough Brooks. The area also has bowls and cricket clubs. There is gliding at nearby Parham, theatres at Chichester, Horsham and Worthing and sailing centres all along the coast.

Community Minibus Association (West Sussex) offers members a service providing shopping trips to supermarkets, social outings, visits to nearby towns. On Friday mornings at Storrington Village Hall is the Storrington Community Market offering local produce and crafts.
  • Entrance hall
  • Sitting Room
  • Kitchen / Dining Room
  • Landing
  • Bedroom
  • Bathroom

Council Tax Band: C

Tenure: Freehold

EPC Rating: C

Why live in Storrington?

This picture-perfect village lies at the foot of the South Downs National Park, halfway along the South Downs Way. Properties here include bungalows, family homes and the famous Wells cottages that were individually designed by the architect Reginald Fairfax Wells in the 1920s to look and feel like 17th century buildings with thatched roofs, small windows and whitewashed exteriors.

Many of the homes in Storrington have wonderful views across rolling countryside and a conservation area just off the bustling high street ensures Storrington will remain as beautiful as it is today for generations to come.

There are lots of specialist shops in the town and convenient amenities such as the large recreational ground with its football and cricket pitches, the Chanctonbury Leisure Centre and an abundance of community groups offering classes in all sorts of interesting activities from ballroom dancing to photography. For a spot of culture, visit the Parham House and Gardens or the local Storrington and District Museum and for outdoor pursuits, take time to explore the natural beauty of the South Downs on foot, bike or horseback or, for a truly spectacular experience, take to the air in a glider.

Our local schools belong to a cluster group called STARS (Storrington Area Rural Schools) and, between them, offer a choice of paths from Reception through to Year 13. Steyning Grammar School is included in the list of STARS and is a popular choice as it’s non-selective and has its own Sixth Form.

Storrington is well connected too; the nearest train station is in the neighbouring village of Pulborough. The five-mile journey only takes 10 minutes by car or you can take a bus; the bus timetable is synced with the train timetable to make life even easier for local commuters.

If you’d like to buy, sell or let a property in Storrington, get in touch with your local team and discover the Henry Adams difference for yourself.

Read more