Facebook

Kings Road, Emsworth, PO10

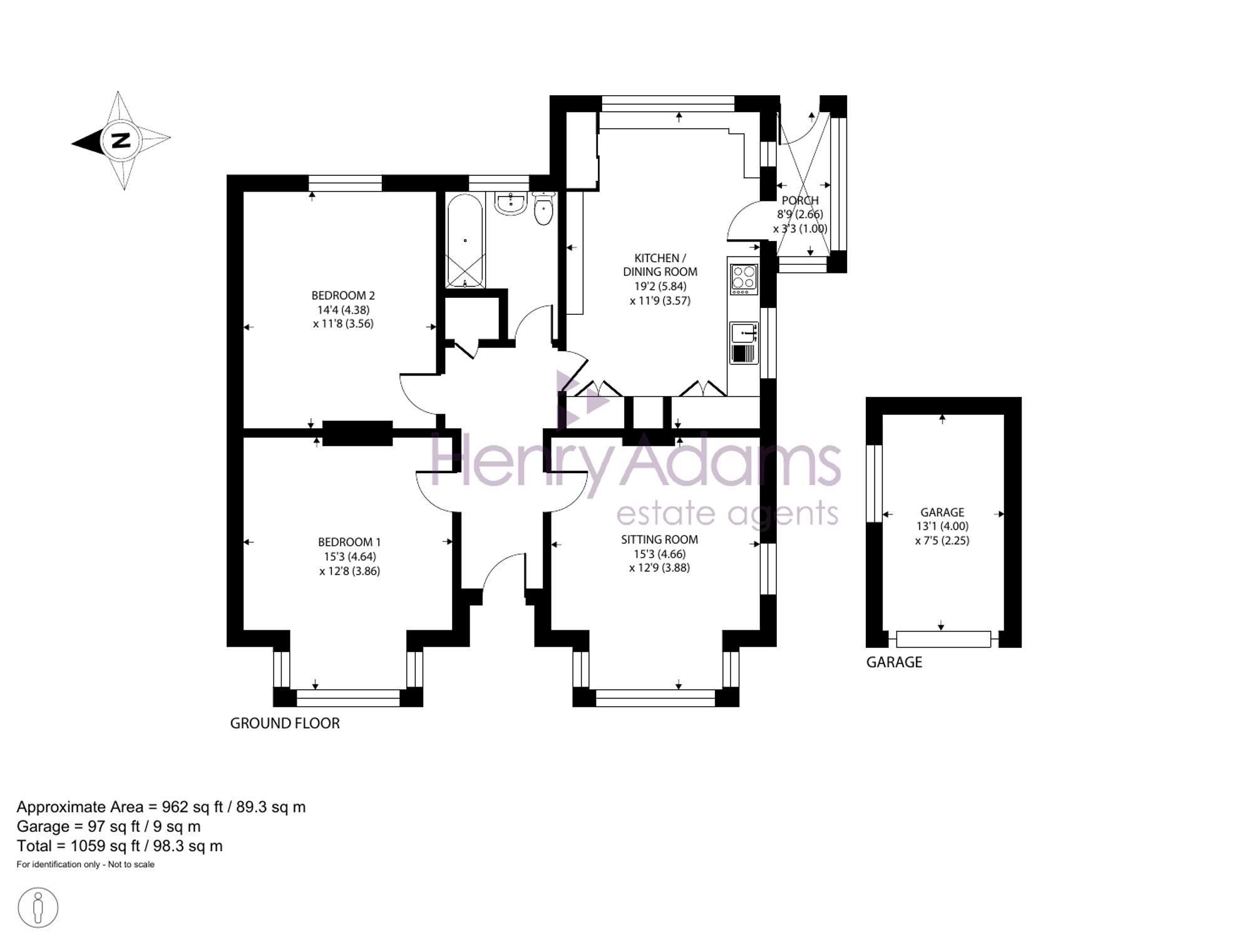
2 Bed │ 1 Bath │ 1 Rec

Guide Price £1,000,000

Save
Emsworth

Joanna Coles

Branch Manager

Key features

  • No Onward Chain
  • Double Fronted Detached Bungalow
  • Highly Sought After Location
  • Two Double Bedrooms
  • Opportunity for Further Development (STPP)
  • Driveway for Two Vehicles

Full description

A charming detached cottage-style bungalow, believed to date from the 1930s, occupying a delightful plot on this well-regarded residential road close to the harbour and waterfront at Emsworth.

The property offers well-balanced accommodation arranged around a welcoming central entrance hall, which forms the heart of the home. To the front is an attractive sitting room featuring a bay window that draws in excellent natural light and enjoys an outlook over the front garden. To the rear, a kitchen and dining area overlook the garden, providing a pleasant space for everyday living and informal entertaining.

The principal bedroom is positioned to the front of the property, while a second bedroom lies to the rear, both served by a family bathroom.

The gardens are a particularly appealing feature of the property. Generous and well established, they are predominantly laid to lawn and interspersed with mature planting, including a notable spreading walnut tree, and bordered by clipped hedging to create a private and tranquil setting.

A gravel driveway provides off-road parking for two vehicles and leads to a detached garage/outbuilding, currently used for storage but offering potential for alternative uses such as a studio or garden room, subject to the necessary consents.

The property offers considerable scope for enhancement, remodelling or extension, subject to the usual planning permissions, presenting an excellent opportunity to create a bespoke coastal home in this highly desirable location, conveniently positioned for Emsworth’s picturesque harbour, waterfront and local amenities.

Situation

Kings Road is a highly regarded residential address in the charming coastal town of Emsworth, well known for its picturesque harbour, sailing community and attractive properties. The property is ideally positioned within easy reach of the waterfront, Mill Pond and a range of scenic coastal walks.

Emsworth town centre is a short distance away and offers an excellent selection of independent shops, cafés, pubs and restaurants, along with everyday amenities. The area is particularly popular for its relaxed coastal lifestyle while still providing convenient transport connections, with Emsworth railway station offering services along the south coast and connections to London. The nearby A27 and A3(M) provide good road links to Chichester, Portsmouth and beyond.

Tenure: Freehold

EPC Rating: E

Why live in Emsworth?

The perfect blend of town, country and coastal life is what draws people from all walks of life to Emsworth, Havant and Rowlands Castle.

Moving to Emsworth 

Emsworth itself was once a fishing village, known for boatbuilding, ropemaking and oyster farming. Although many of the old ways are long gone, the town has retained much of its old-fashioned charm and added a modern twist. 

As one of the most successful estate agents in Emsworth, we love working in this fabulous seafront setting. Emsworth has lots of independent shops, a butcher, fishmonger, florist, delicatessen, supermarkets and nearby farm shops. We’re also spoilt by the number of popular pubs, bars and restaurants here where you can enjoy a chilled drink with friends as the sun goes down or fine dining with a waterside view. 

With its coastal setting, Emsworth is a paradise for sailors. Wonderful waterside properties line the harbour and there’s a choice of local sailing clubs, whether you’re just finding your sea legs or you’re a seasoned sailor. Nearby Hayling Island is the spiritual home of windsurfing. On weekends, you’ll often see them racing and dancing across the waves as you stroll the long, golden beaches. 

Emsworth is a great place for families too. You’ll find a great selection of good schools, including St. James Primary School, Emsworth Primary School, Warblington Secondary School and Bourne Community College

The many artists who live and work here throw open their studio doors to show their work at the annual Emsworth Art Trail. The Emsworth Horticultural Society holds the annual Emworth Show over the August Bank Holiday, which includes demonstrations of ancient crafts such as glass-blowing, wood turning, falconry and beekeeping. It’s a buzzing community with local business networks firing on all cylinders and its own magazine, The Ems, keeping everyone updated on local events. 

Moving to Rowlands Castle 

Just inland is the pretty village of Rowlands Castle, bordered by the spectacular scenery of the South Downs National Park. The village lies a few miles north of Chichester and Portsmouth, so there’s great access to all the amenities of city life from a countryside setting. Closer to home, Rowlands Castle itself has all you need for everyday living, from a convenience store, pharmacy, vets and a post office just off the traditional village green.

Henry Adams has been the trusted choice for estate agents in Rowlands Castle for over 30 years. In 2022, we extended our reach in the village when Emsworth Sales Branch Manager, Katie Cummings, seamlessly took the helm at Henry Adams in Emsworth and she continues to specialise in selling homes in Rowlands Castle. With her guidance, based on extensive knowledge of the local property market, you can confidently navigate buying or selling in this lovely village. 

Rowlands Castle has three friendly pubs and a cafe, a railway station with a direct line to London Waterloo, and easy access to the A3(M) interchange which links to Portsmouth, Petersfield and London. There are plenty of local opportunities for taking time to enjoy life, including Rowlands Castle Golf Club nearby, Rowlands Castle Tennis Club, and the great Stansted Estate for scenic walks and a sense of grandeur. 

Moving to Havant 

Nestled in the southeast corner of Hampshire is the historic market town of Havant. Situated close to the coast, Havant is bordered by the South Downs and the Solent. Langstone Bridge connects the mainland to Hayling Island with its long stretches of beaches and waterside walks. 

This area has great connections. The A27 runs along the southern fringes of Havant, linking to Chichester & Brighton to the east and to Portsmouth & Southampton to the west. Travelling northwards the A3(M) provides easy access to Horndean, Petersfield, Haslemere, Guildford and central London. 

Havant’s rich history dates back to Roman times and is mentioned in the Doomsday Book in 1086 when its population was about 100 people. Over the years, it’s grown through trade and agriculture, as well as the thriving glove-making trade in the 1700s. The Victorian-era train station now connects passengers directly to London with some journey times taking less than an hour and a half to the capital. The architecture reflects the evolution of Havant, with Georgian buildings lending character from earlier years.Today there are specialist retailers, high street shops, a twice-weekly market, restaurants, pubs, and Horizon Leisure Centre which has a 25m indoor pool and caters to a range of sporting interests. 

Warblington, Langstone, Denvilles and more 

Each of the areas surrounding Emsworth and Havant, such as Denvilles, Langstone, Bedhampton and Warblington, has its own character. As your local estate agent specialising in these locations, we operate centrally from our Emsworth office and use our local insights to help you find the perfect setting for your next home, whether you’re buying, selling, renting or letting. 

Warblington lies on the eastern fringes of Havant and is a sought-after residential area. Its train station links directly to London Victoria while Warblington School caters for the younger generation.Families and individuals can make the most of active leisure locally, such as The Avenue, a popular sports & social club, and the expanses of open countryside and coastline. 

Langstone lies on the upper reaches of Chichester Harbour and Langstone Harbour, which are Sites of Special Scientific Interest (SSSIs), the village has renowned pubs and a historic mill. Langstone Bridge offers a scenic passage across the water to Hayling Island, with its breathtaking coastal scenery. Attracting new and growing businesses to the area is Langstone Park, which is undergoing significant investment and development. 

Neighbouring Denvilles is a popular residential location where you’ll find attractive Victorian & Edwardian homes alongside more modern family homes from the 1960s to the present day. There’s a real sense of community, making this an ideal setting for individuals, couples and families. 

At Henry Adams Emsworth, we take pride in being the specialist estate agent serving this picturesque area. Our coverage extends to selling homes in Havant, Denvilles, Warblington, Langstone and many other local hamlets and villages, such as Southbourne, Rowlands Castle and, of course, Emsworth itself. 

If you’d like to buy, sell or let a property in any of these locations, get in touch with your local team and discover the Henry Adams difference for yourself.

Read more