Facebook

Gainsborough Drive, Selsey, PO20

2 Bed │ 2 Bath │ 2 Rec

Guide Price £420,000

Save
Selsey

Kevin Daymond

Partner

Key features

  • Beautifully presented semi detached bungalow
  • Deceptively spacious living accommodation with both living & dining areas and made to measure shutters
  • Two double bedrooms with Sharps built in wardrobes and made to measure shutters
  • Kitchen with integrated appliances and separate utility room
  • Home studio currently used as guest accommodation
  • 'No holds barred' full refurbishment since 2020
  • Resin laid driveway with parking for several cars
  • Bespoke built in media centre with cupboards and shelving
  • Close proximity to the shops, beach and bus route

Full description

This beautifully presented semi detached bungalow offers a deceptively spacious layout, blending style and practicality throughout. The property has undergone a comprehensive refurbishment since 2020, ensuring a modern finish in every room. The generous living accommodation includes distinct living and dining areas, complemented by a bespoke built in media centre with ample cupboards and shelving for storage. The kitchen is fitted with integrated appliances, while a separate utility room adds further convenience. Both double bedrooms feature Sharps built in wardrobes, providing excellent storage solutions. A versatile home studio, currently used as guest accommodation, offers flexibility for a variety of uses such as a home office, hobby room or somewhere for the family to stay. The property is ideally situated close to local shops, the beach, and a convenient bus route, making it an excellent choice for those seeking both comfort and accessibility.

The outside space has been thoughtfully designed for both enjoyment and low maintenance. The front garden is laid to lawn with a charming flower border, creating a welcoming first impression. To the rear, the area is laid to paving for ease of upkeep and features outside taps, external electrical sockets, and contemporary fencing with integrated lighting, enhancing both security and ambience. A side area is finished in matching resin with block paved edges and includes a wooden shed for storage, as well as doors providing direct access to both the kitchen and the studio. The driveway is also laid to resin with attractive brick block edging, offering off road parking for several cars and additional external power points. Gates provide access to a side area and a dedicated bin store, ensuring practicality and neat organisation. This well planned outside space perfectly complements the high standard of the interior, making this bungalow an outstanding opportunity for those seeking a move in ready home in a desirable location.

Situation

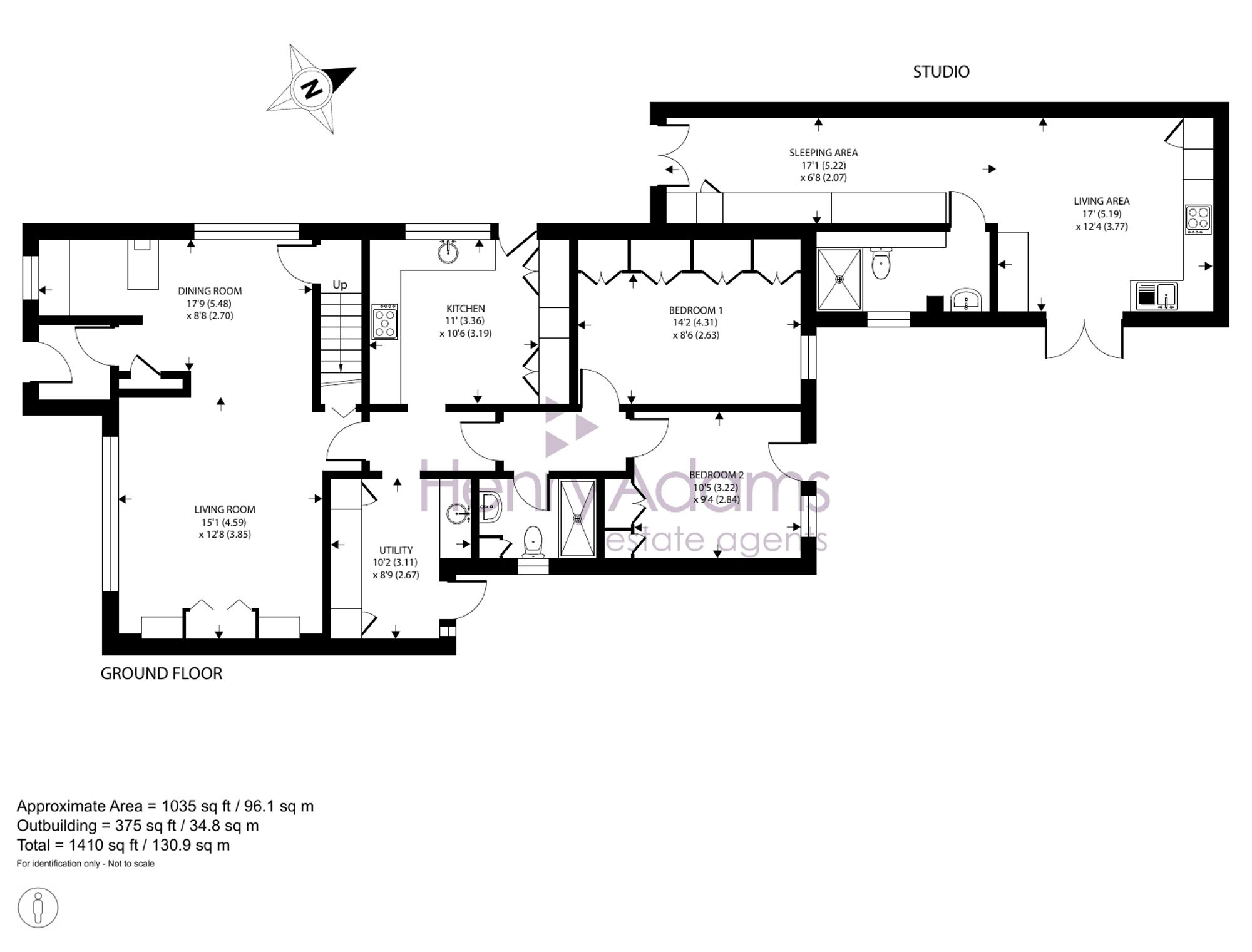
  • Entrance Hall
  • Dining area with bar 18' 0" x 8' 10" (5.48m x 2.70m)
  • Living room 15' 1" x 12' 8" (4.59m x 3.85m)
  • Inner hallway
  • Kitchen 11' 0" x 10' 6" (3.36m x 3.19m)
  • Utility Room 10' 2" x 8' 9" (3.11m x 2.67m)
  • Bedroom One 14' 2" x 8' 8" (4.31m x 2.63m)
  • Bedroom Two 10' 7" x 9' 4" (3.22m x 2.84m)
  • Shower Room
  • Studio
  • Open plan living area 17' 0" x 12' 4" (5.19m x 3.77m)
  • Sleeping area 17' 2" x 6' 9" (5.22m x 2.07m)
  • Wet Room

Council Tax Band: D

Tenure: Freehold

EPC Rating: D

Why live in Selsey?

It may be classed as a town, but Selsey is still a seaside village at heart and, whether you’re looking for a dream home by the beach, a place to indulge your passion for watersports or a quiet retreat away from the hustle and bustle of life, Selsey has it all.

The old town in the south east quarter is known for its charming historic properties, including 17th century thatched houses while you’ll find many large and secluded homes offering stunning views of the water by the seafront. The north of Selsey has many 1970s style properties with more substantial, semi-rural homes set around them.

You’ll find a great selection of shops, pubs and restaurants right here on the High Street along with a strong sense of community, especially at Christmas when the Selsey Lights are a sight to behold. We have two local primary schools, Medmerry Primary and the Seal Primary Academy, and The Academy Selsey senior school in the town with more options in Chichester, including Chichester High School.

Selsey has a long-standing love of sport and is proud home to both Selsey Cricket Club and the Selsey Football and Social Club, as well as a bowls and tennis club, but you’ll find even more sporting activity by the water. If you like scuba diving or snorkelling we have some of the best water for diving in the UK, with more than 100 wrecks to explore just off the coast. If you’re keen to learn, the Mulberry Divers Centre on East Beach offers tuition to everyone from complete beginners to advanced divers. There’s swimming, sailing and windsurfing around the Selsey Bill headland or bike rides along the coastal cycle path or to the stunning beaches at Bracklesham Bay, East Wittering or West Wittering where you can feel the sand under your feet.

While Selsey offers the best of seaside living, it’s just less than 10 miles from the cultural heartland of Chichester and everything that the famous cathedral city has to offer, from the plentiful shops to the Festival Theatre. So you see, Selsey really does have it all.

If you’d like to buy, sell or let a property in Selsey, get in touch with your local team and discover the Henry Adams difference for yourself.

Read more