Facebook

Mixon Close, Selsey, PO20

3 Bed │ 2 Bath │ 2 Rec

Guide Price £385,000

Save
Selsey

Kevin Daymond

Partner

Key features

  • Well presented, extended detached house
  • Three bedrooms
  • Living room and additional dining/garden room
  • Kitchen breakfast room refitted approx 4 yrs ago
  • Situated on popular sea fronted development
  • Family bathroom and en-suite shower room
  • Garage and workshop
  • South facing garden
  • No onward chain

Full description

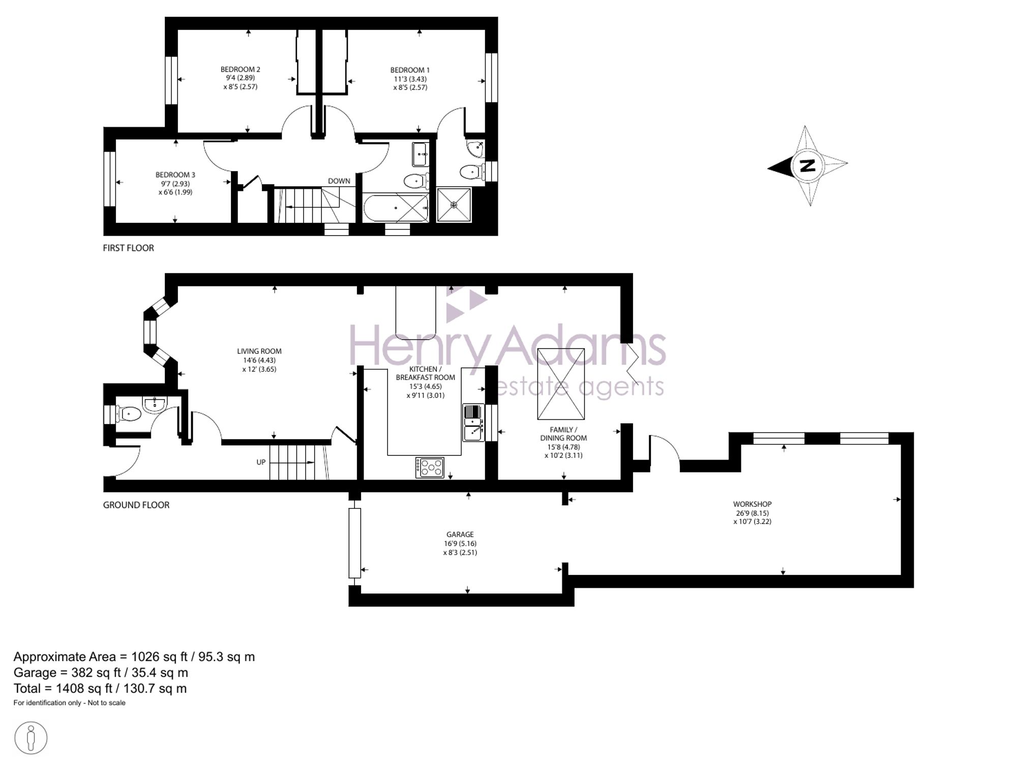
This well presented and thoughtfully extended detached house offers an excellent opportunity to acquire a versatile family home in a sought-after sea fronted development. The property features three bedrooms, including a principal suite with an en-suite shower room, as well as a family bathroom. The ground floor boasts a welcoming living room, complemented by an additional dining or garden room, providing flexible spaces for both relaxation and entertaining. The kitchen breakfast room was refitted approximately four years ago and is designed to cater to modern lifestyles, offering ample storage, preparation space along with a matching breakfast bar. The property also benefits from a garage along with a useful workshop which the current owner has used for restoring cars (please note this was added approx. 2 yrs ago and may require indemnity which the seller is happy to provide via his solicitor). With a south facing garden, this home enjoys abundant natural light throughout the day. Offered to the market with no onward chain, this property is ready for immediate occupation and would suit a variety of buyers seeking a coastal lifestyle.

Outside, the property is approached via a driveway providing off road parking and access to the garage with up and over door, light and power. The garage opens through to the adjoining workshop area (also with light, power and a door into the garden). The front garden is attractively laid to lawn with established flower borders, extending to the side of the property where further lawn and planting can be found. The rear garden enjoys a paved seating area adjacent to the house, perfect for outdoor dining or relaxing, while the remainder of the garden is laid to decorative chippings/stone for ease of upkeep and year-round enjoyment. A door from the garden provides direct access into the workshop, offering additional versatility. This delightful outside space is ideally designed for those seeking a manageable yet attractive garden.

Situation

  • Entrance Hall
  • Cloakroom
  • Living room 14' 6" x 12' 0" (4.42m x 3.66m)
  • Kitchen Breakfast Room 15' 3" x 9' 10" (4.64m x 3.00m)
  • Family/Garden Room 15' 8" x 10' 2" (4.77m x 3.10m)
  • Landing
  • Bedroom One 11' 3" x 8' 5" (3.43m x 2.57m)
  • En-Suite Shower Room
  • Bedroom Two 9' 6" x 8' 5" (2.89m x 2.57m)
  • Bedroom Three 9' 7" x 6' 7" (2.93m x 2.00m)
  • Family Bathroom

Council Tax Band: D

Tenure: Freehold

EPC Rating: C

Why live in Selsey?

It may be classed as a town, but Selsey is still a seaside village at heart and, whether you’re looking for a dream home by the beach, a place to indulge your passion for watersports or a quiet retreat away from the hustle and bustle of life, Selsey has it all.

The old town in the south east quarter is known for its charming historic properties, including 17th century thatched houses while you’ll find many large and secluded homes offering stunning views of the water by the seafront. The north of Selsey has many 1970s style properties with more substantial, semi-rural homes set around them.

You’ll find a great selection of shops, pubs and restaurants right here on the High Street along with a strong sense of community, especially at Christmas when the Selsey Lights are a sight to behold. We have two local primary schools, Medmerry Primary and the Seal Primary Academy, and The Academy Selsey senior school in the town with more options in Chichester, including Chichester High School.

Selsey has a long-standing love of sport and is proud home to both Selsey Cricket Club and the Selsey Football and Social Club, as well as a bowls and tennis club, but you’ll find even more sporting activity by the water. If you like scuba diving or snorkelling we have some of the best water for diving in the UK, with more than 100 wrecks to explore just off the coast. If you’re keen to learn, the Mulberry Divers Centre on East Beach offers tuition to everyone from complete beginners to advanced divers. There’s swimming, sailing and windsurfing around the Selsey Bill headland or bike rides along the coastal cycle path or to the stunning beaches at Bracklesham Bay, East Wittering or West Wittering where you can feel the sand under your feet.

While Selsey offers the best of seaside living, it’s just less than 10 miles from the cultural heartland of Chichester and everything that the famous cathedral city has to offer, from the plentiful shops to the Festival Theatre. So you see, Selsey really does have it all.

If you’d like to buy, sell or let a property in Selsey, get in touch with your local team and discover the Henry Adams difference for yourself.

Read more