Facebook

Walton Lane, Bosham, PO18

4 Bed │ 2 Bath │ 1 Rec

Guide Price £725,000

Save
Chichester

Richard Longhurst

Partner

Key features

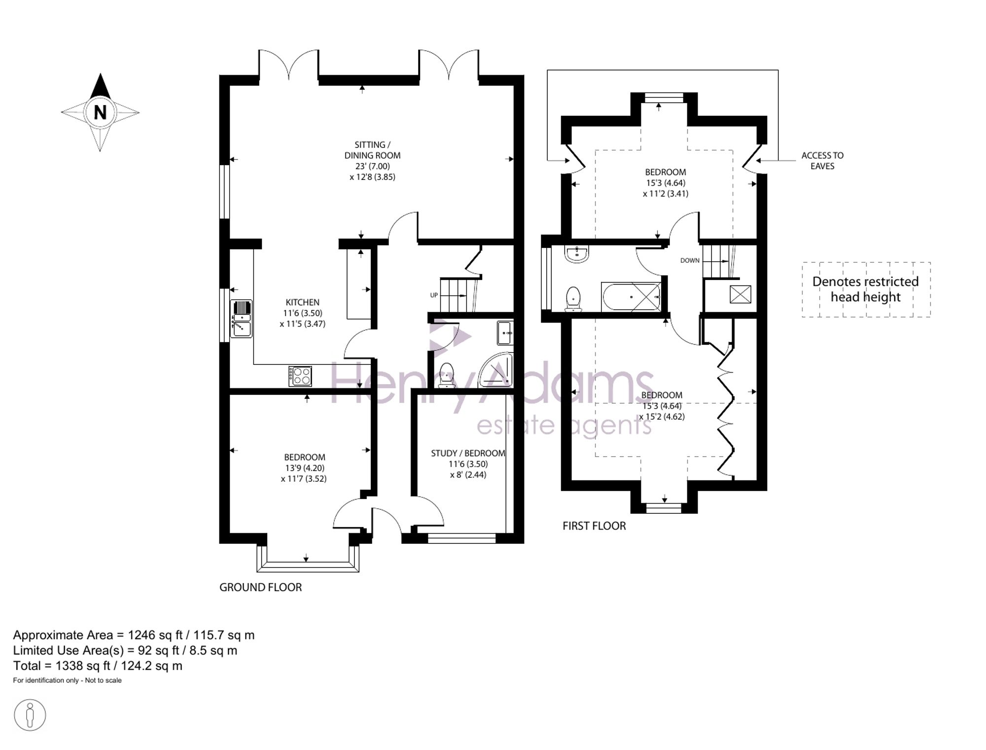
  • Detached chalet style property
  • Modern kitchen
  • Two reception rooms
  • Three bedrooms
  • Ground floor shower room
  • First floor bathroom
  • Versatile accommodation
  • Attractive garden
  • Off-road parking
  • Viewing recommended

Full description

A charming chalet style property.

Nestled in an enviable location close to the heart of Bosham village and just moments from the water, this beautifully presented detached chalet-style property offers a perfect blend of modern comfort and versatile living.

The stylish open-plan kitchen flows seamlessly into the principal reception room, creating an ideal space for entertaining, and with two sets of doors leading out to the rear garden.  Flexible accommodation includes a ground floor bedroom with shower room/WC, plus a study that could serve as a fourth bedroom. Upstairs, two generous double bedrooms are complemented by a bathroom, with the rear bedroom enjoying far-reaching views towards the South Downs.

Outside, the property boasts an attractive garden and the convenience of off-road parking.

With its prime setting and thoughtful design, early viewing is strongly recommended.

Chichester District Council - 25/26 Tax Band E EPC-C

Directions - Proceed west out of Chichester along the A259. On reaching the Bosham roundabout take the first exit off into Delling Lane. Proceed down Delling Lane and at the junction turn left into Walton Lane. The property is on the left just before the Bosham village hall. What3words - spouting.central.sides

Situation

The house is situated in the popular sailing village of Bosham, famous for being the rumoured site from which the Danish King Canute unsuccessfully ordered the tide to stop. Today, Bosham is a thriving community with a primary school, village hall, farm shop, an arts and crafts centre, two local pubs and a hotel. Local attractions include the cathedral city of Chichester to the east, racing and golf at Goodwood and world class sailing into the Solent. Much of the surrounding area and countryside is designated an Area of Outstanding Natural Beauty. A foot and cycle path connects Bosham at Fishbourne to the Salterns Way which is a 12 mile path running from Chichester to Birdham, Itchenor and on to the Blue Flag beach of West Wittering. The cathedral city of Chichester offers excellent high street shopping, many fashionable restaurants, cafes and bars, Festival Theatre and a mainline station to London Victoria.

Council Tax Band: E

Tenure: Freehold

Why live in Chichester?

We consider ourselves very lucky to be working in a city that blends so many different architectural styles, from elegant Georgian buildings to contemporary new apartments and waterside properties that overlook the harbour.

In 2013, The Sunday Times listed Chichester as one of the top places to live in the UK with ‘something for everyone’ – and they weren’t wrong. Chichester is a cathedral city, a county town and home to some of the oldest churches and buildings in the country. There are many well-regarded public and state schools in the local area with further and higher education options available from Chichester College, West Dean College and the University of Chichester. Our great schools have always made Chichester very appealing for those looking for the perfect place to raise a family.

Our city centre is a shopper’s paradise and there are great places to eat and drink, from elegant restaurants to cosy cafés and pubs, all set along the city’s four main streets. Chichester Cathedral on West Street dominates the skyline and, on summer afternoons, its grounds are filled with local people enjoying picnics. In the evenings, the Cathedral plays a central part in the city’s nightlife by hosting classical music events.

Chichester has a number of public parks, the Chichester Tennis and Racquets Fitness Club and Westgate Leisure Centre, where you’ll find a large swimming pool and skate park and, if sailing is your thing, Chichester Harbour is a haven for you. There really is so much to do here you’ll be spoilt for choice; spend the day on one of the many local beaches, stretch your legs on the stunning South Downs or catch a show at the Festival Theatre before it moves to a permanent home in London’s West End.

If you’d like to buy, sell or let a property in Chichester, get in touch with your local team and discover the Henry Adams difference for yourself.

Read more