Facebook

Stane Street, North Heath, RH20

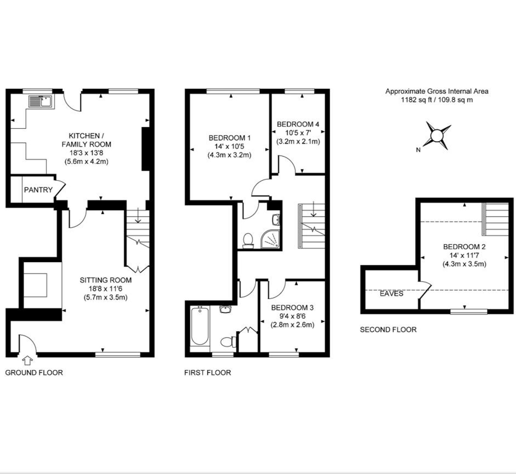
4 Bed │ 2 Bath │ 1 Rec

Guide Price £575,000

Save
Storrington

Christina Bearryman

Sales Associate

Key features

  • Vendor suited with complete onward chain ready to exchange
  • A lovely cottage with a wealth of character and in a semi-rural setting
  • Kitchen with wood burner, electric Aga with gas hob, pantry with space for washing machine, stable door to front garden
  • Sitting room with open fire
  • Main bedroom with en-suite shower room
  • Two additional bedrooms and a second floor double bedroom
  • Family bathroom
  • Enclosed garden accessed from the sitting room
  • Main garden with walled garden and patio entertaining space complete with outdoor fire
  • Outbuilding finished to first fix making it an ideal utility room with cloakroom

Full description

This charming four-bedroom character cottage is set in a desirable semi-rural location and offers a wealth of character throughout its thoughtfully arranged accommodation. Accessed via a private lane leading to the ample parking area for the property.

The welcoming kitchen is a highlight, featuring a wood burner, an electric Aga with gas hob, a practical pantry with space for a washing machine, and a stable door that adds a traditional touch. The sitting room provides a cosy atmosphere with its open fire, making it an inviting space to relax or entertain.

Upstairs, the main bedroom benefits from an en-suite shower room, while two further bedrooms on the first floor are complemented by a well-appointed family bathroom. A spacious double bedroom is located on the second floor, offering flexibility for guests or a home office. The property also includes an outbuilding that has been finished to first fix, presenting an ideal opportunity for use as a utility room with cloakroom facilities (subject to finishing works).

The garden boasts a walled garden and a generous patio area, perfect for entertaining, complete with an outdoor fire for year-round enjoyment. The enclosed garden to the rear, which would originally have been the front of the property when built which we believe to be around 400 years ago, is accessed directly from the sitting room, provides a private retreat. This delightful home is offered with a vendor who is suited and a complete onward chain, ensuring a smooth and efficient transaction process for prospective buyers. With its blend of period features, practical living spaces, and peaceful setting, this cottage represents an exceptional opportunity for those seeking a characterful home in a sought-after semi-rural location.

Situation

The property is located within equal distance of the villages of Pulborough and Billingshurst, both with main line stations. The area around Pulborough provides a wide range of sporting and recreational facilities with West Sussex Golf Club and other golf clubs further afield at Cowdray Park and Goodwood. There is gliding at nearby Parham, theatres at Chichester, Horsham and Worthing and sailing centres all along the coast. The local countryside provides numerous walks and bridle paths including the South Downs Way. Of special note is the RSPB nature reserve at Wiggonholt Brooks. Pulborough has rugby, bowls and cricket clubs, where there are leisure centres at Storrington and Billingshurst. There is a main line railway station with links to London Victoria and the South Coast. Schooling locally is St Mary’s C of E aided primary school and secondary school is The Weald School in Billingshurst. The property is located within close proximity of Brinsbury College where you will find bus stop with access to the north and south.

Billingshurst is a thriving large village in the heart of West Sussex and surrounded by some fine countryside with a main line station to London (Victoria approximately 65 minutes) and the South Coast. Highly sought after schools in the locality from infant to sixth form with the Billingshurst Primary Academy School and then The Weald Community School. Leisure facilities with the Football Club, Cricket Club, tennis and bowls clubs, leisure centre with gym and swimming pool are all nearby. The centre, with its good range of shopping facilities including Sainsburys and Lidl, restaurants, pubs, library, post office, doctors' surgery, churches and bus services. The village provides good links with both Horsham and Gatwick International Airport. There is an abundance of history dating back to Roman times and many countryside walks on your doorstep.
  • Kitchen / Family Room
  • Sitting Room
  • Landing
  • Bedroom 1
  • En-Suite Shower Room
  • Bedroom 3
  • Bedroom 4
  • Bathroom
  • Bedroom 2
  • Outbuilding / Utility Room

Council Tax Band: E

Tenure: Freehold

EPC Rating: E

Why live in Storrington?

This picture-perfect village lies at the foot of the South Downs National Park, halfway along the South Downs Way. Properties here include bungalows, family homes and the famous Wells cottages that were individually designed by the architect Reginald Fairfax Wells in the 1920s to look and feel like 17th century buildings with thatched roofs, small windows and whitewashed exteriors.

Many of the homes in Storrington have wonderful views across rolling countryside and a conservation area just off the bustling high street ensures Storrington will remain as beautiful as it is today for generations to come.

There are lots of specialist shops in the town and convenient amenities such as the large recreational ground with its football and cricket pitches, the Chanctonbury Leisure Centre and an abundance of community groups offering classes in all sorts of interesting activities from ballroom dancing to photography. For a spot of culture, visit the Parham House and Gardens or the local Storrington and District Museum and for outdoor pursuits, take time to explore the natural beauty of the South Downs on foot, bike or horseback or, for a truly spectacular experience, take to the air in a glider.

Our local schools belong to a cluster group called STARS (Storrington Area Rural Schools) and, between them, offer a choice of paths from Reception through to Year 13. Steyning Grammar School is included in the list of STARS and is a popular choice as it’s non-selective and has its own Sixth Form.

Storrington is well connected too; the nearest train station is in the neighbouring village of Pulborough. The five-mile journey only takes 10 minutes by car or you can take a bus; the bus timetable is synced with the train timetable to make life even easier for local commuters.

If you’d like to buy, sell or let a property in Storrington, get in touch with your local team and discover the Henry Adams difference for yourself.

Read more