Facebook

Highfield Road, Petersfield, GU32

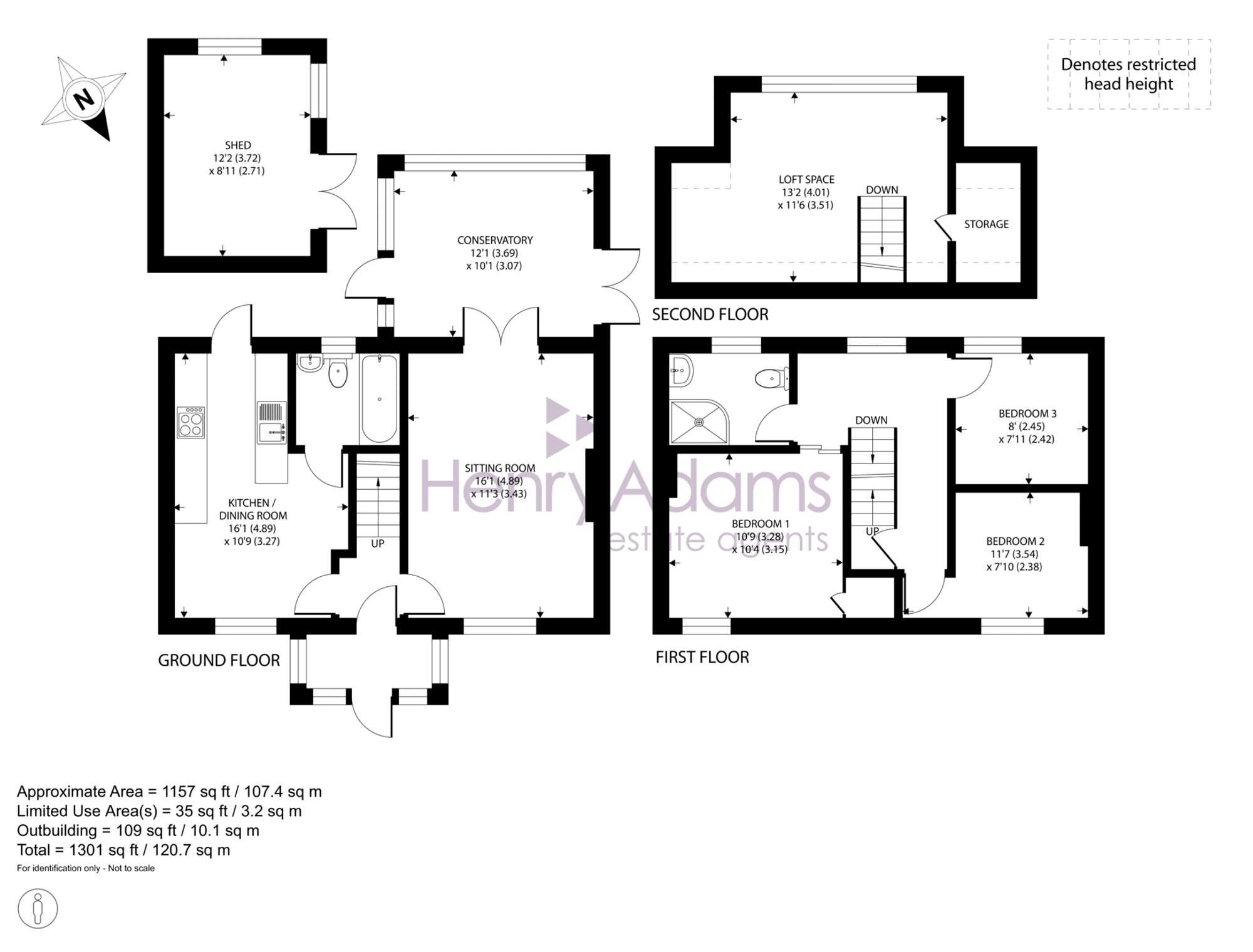
3 Bed │ 2 Bath │ 2 Rec

Guide Price £450,000

Save
Petersfield

Dean Kellaway

Branch Manager

Key features

  • Three Bedroom Terraced House
  • Off Road Parking for Several Vehicles
  • Usable Loft Space with Staircase
  • Walkable to Petersfield Town Centre and Mainline Station
  • Attractive & Versatile Summerhouse
  • Cul-De-Sac Location
  • Great Size Rear Garden

Full description

This well proportioned three-bedroom terraced house offering spacious and flexible accommodation.

On the ground floor, the property comprises a comfortable lounge, a kitchen which has been updated in recent years and provides a practical modern cooking space, and a ground floor bathroom. To the rear, a conservatory extends the living space and overlooks the garden, further offering an additional reception area suitable for dining or relaxing.

Upstairs, the first floor provides three good sized bedrooms along with a separate shower room, providing an ideal layout for family living. A staircase leads to a loft area, providing useful additional space that could potentially be used for a home office, hobby room or occasional guest space.

Externally, the property benefits from off-road parking for multiple vehicles to the front and is positioned within a cul-de-sac setting. The rear garden includes a summerhouse, offering further flexibility as a workspace, studio or storage area.

The property is conveniently located within walking distance of Petersfield town centre and the mainline station, providing easy access to local amenities and transport links.

A well-proportioned home offering versatile accommodation in a convenient location.

Situation

The property is conveniently located within walking distance of Petersfield town centre and the mainline station, providing easy access to local amenities and transport links.

Council Tax Band: C

Tenure: Freehold

EPC Rating: C

Why live in Petersfield?

Petersfield often features on lists of the best places to live and work and was recently voted one of the top 10 most desirable market towns in England; The Guardian went so far as to describe Petersfield as ‘a commuter’s Nirvana, the urban equivalent of a foot rub and a G&T’.

We have a delightful choice of properties in the area, from beautiful character cottages, some dating back 500 years, to coach house style homes and large rural retreats to modern family homes. There’s also a thriving rental market here as the convenient location, attractive setting and abundant facilities make this an excellent base for those working in the wider area or simply wanting a perfect place to raise a family.

One of the major attractions for families is the choice of world-class schools – The Petersfield School is rated ‘outstanding’ by Ofsted and Bohunt School at nearby Liphook is one of the top performing state schools in the country. In the private sector, Churcher’s College and Bedales are located in the town, while Ditcham Park School is just to the southeast.

We have cosmopolitan range of shops, restaurants and cafés, with most major retailers represented. The Petersfield Market is held twice a week in The Square and a Hampshire Farmer’s Market is held on the first Sunday of every month. We also have many sports facilities, including two golf clubs, the Taro Leisure Centre and the Petersfield Open Air Swimming Pool, which, despite being open to the elements, is always heated to an average of 27 degrees.

But what really sets Petersfield apart is the beautiful countryside and its pretty villages. These include Selborne with its post office, primary school and choice of two pubs, Steep Village, which sits on wooded slopes known as The Hangers and was once home to Sir Alec Guinness, Buriton Village, which sits between Petersfield and the Queen Elizabeth Country Park and Rogate and Rake to the east within in the Rother Valley.

If you’d like to buy, sell or let a property in Petersfield, get in touch with your local team and discover the Henry Adams difference for yourself.

Read more