Facebook

Manor Road, Selsey, PO20

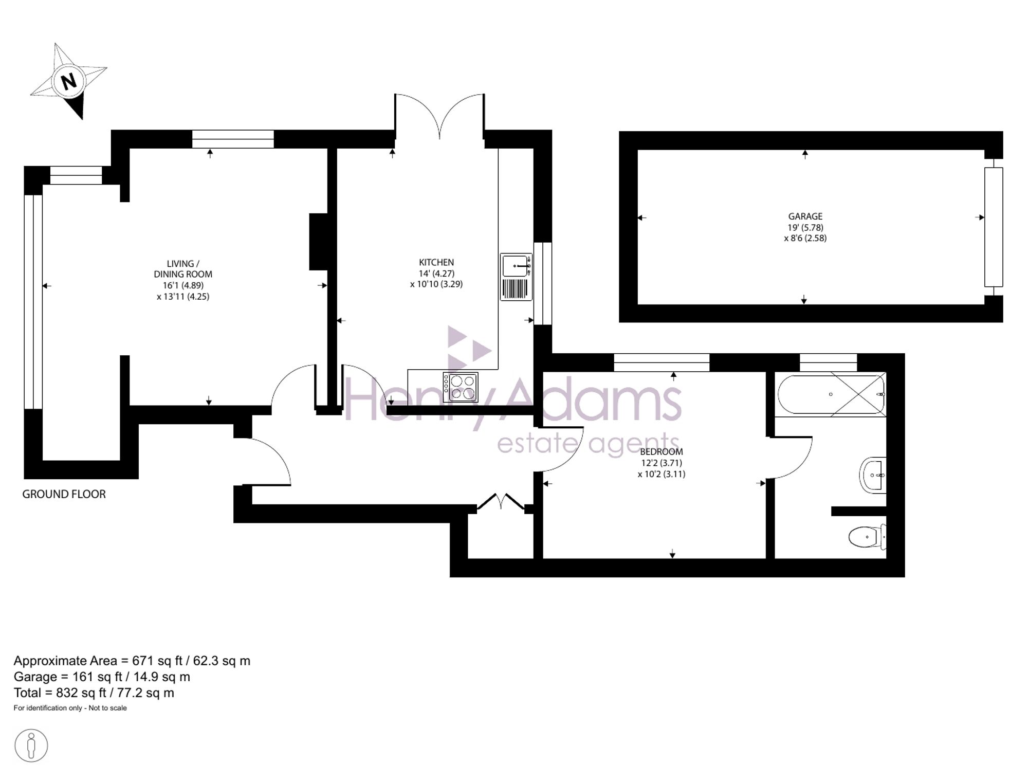
1 Bed │ 1 Bath │ 1 Rec

Guide Price £200,000

Save
Selsey

Kevin Daymond

Partner

Key features

  • Spacious ground floor flat
  • Generous double bedroom
  • 16' x 14' living room
  • Kitchen/breakfast room
  • Character features such as high ceilings & skirtings
  • Bathroom
  • Period House With Period Features
  • Communal Gardens
  • Parking and Garage
  • No onward chain

Full description

This spacious ground floor flat forms part of a period building which dates back to the 1860's and we believe in it's history has at one time been used as 'The Old Bays' boys school and offers a blend of character features and modern convenience.

Stepping inside, you are greeted by an entrance hall that leads the principal rooms which comprise of a living room, kitchen breakfast room and double bedroom. The living room measures 16ft by 14ft and features high ceilings, dual aspect sash windows which flood the room with light, feature fireplace & deep skirtings. The kitchen/breakfast room is well-appointed with space for a dining table, integrated dishwasher and door to the communal gardens making it perfect for both every-day meals and entertaining guests.

The bathroom is en-suite the double bedroom a features a bath with shower over, w/c and wash hand basin. Residents benefit from the convenience of allocated parking and a garage, providing secure storage and peace of mind. The property also enjoys use of communal gardens on 3 sides on the building. Located to the North of Selsey with local shops, bus route and the beach in close proximity. A rarity for flats, the property not only offers off road parking for 1 car but it is also offered with a garage. Offered to the market with no onward chain, the property in our view would make an ideal opportunity for both first-time buyers and investors.

Situation

  • Communal Entrance
  • Entrance Hall
  • Living room 16' 0" x 13' 11" (4.87m x 4.25m)
  • Kitchen 13' 11" x 10' 9" (4.25m x 3.28m)
  • Double bedroom 12' 2" x 10' 2" (3.71m x 3.11m)
  • Bathroom

Council Tax Band: B

Tenure: Share of Freehold

Lease remaining: 945 years

EPC Rating: D

Why live in Selsey?

It may be classed as a town, but Selsey is still a seaside village at heart and, whether you’re looking for a dream home by the beach, a place to indulge your passion for watersports or a quiet retreat away from the hustle and bustle of life, Selsey has it all.

The old town in the south east quarter is known for its charming historic properties, including 17th century thatched houses while you’ll find many large and secluded homes offering stunning views of the water by the seafront. The north of Selsey has many 1970s style properties with more substantial, semi-rural homes set around them.

You’ll find a great selection of shops, pubs and restaurants right here on the High Street along with a strong sense of community, especially at Christmas when the Selsey Lights are a sight to behold. We have two local primary schools, Medmerry Primary and the Seal Primary Academy, and The Academy Selsey senior school in the town with more options in Chichester, including Chichester High School.

Selsey has a long-standing love of sport and is proud home to both Selsey Cricket Club and the Selsey Football and Social Club, as well as a bowls and tennis club, but you’ll find even more sporting activity by the water. If you like scuba diving or snorkelling we have some of the best water for diving in the UK, with more than 100 wrecks to explore just off the coast. If you’re keen to learn, the Mulberry Divers Centre on East Beach offers tuition to everyone from complete beginners to advanced divers. There’s swimming, sailing and windsurfing around the Selsey Bill headland or bike rides along the coastal cycle path or to the stunning beaches at Bracklesham Bay, East Wittering or West Wittering where you can feel the sand under your feet.

While Selsey offers the best of seaside living, it’s just less than 10 miles from the cultural heartland of Chichester and everything that the famous cathedral city has to offer, from the plentiful shops to the Festival Theatre. So you see, Selsey really does have it all.

If you’d like to buy, sell or let a property in Selsey, get in touch with your local team and discover the Henry Adams difference for yourself.

Read more