Facebook

Beacon Drive, Selsey, PO20

4 Bed │ 2 Bath │ 2 Rec

Guide Price £575,000

Save
Selsey

Kevin Daymond

Partner

Key features

  • Beautifully presented detached house
  • Four bedrooms, 3 with built in wardrobes
  • Open plan living/dining and kitchen arrangement
  • Recently renovated to include new bathrooms & kitchen dining room
  • Granite worktops and integrated appliances to both the kitchen and utility room
  • Conservatory, study & utility room
  • Family bathroom, en-suite shower room and ground floor cloakroom
  • Double driveway and double garage
  • Located within 150m of the beach
  • No onward chain

Full description

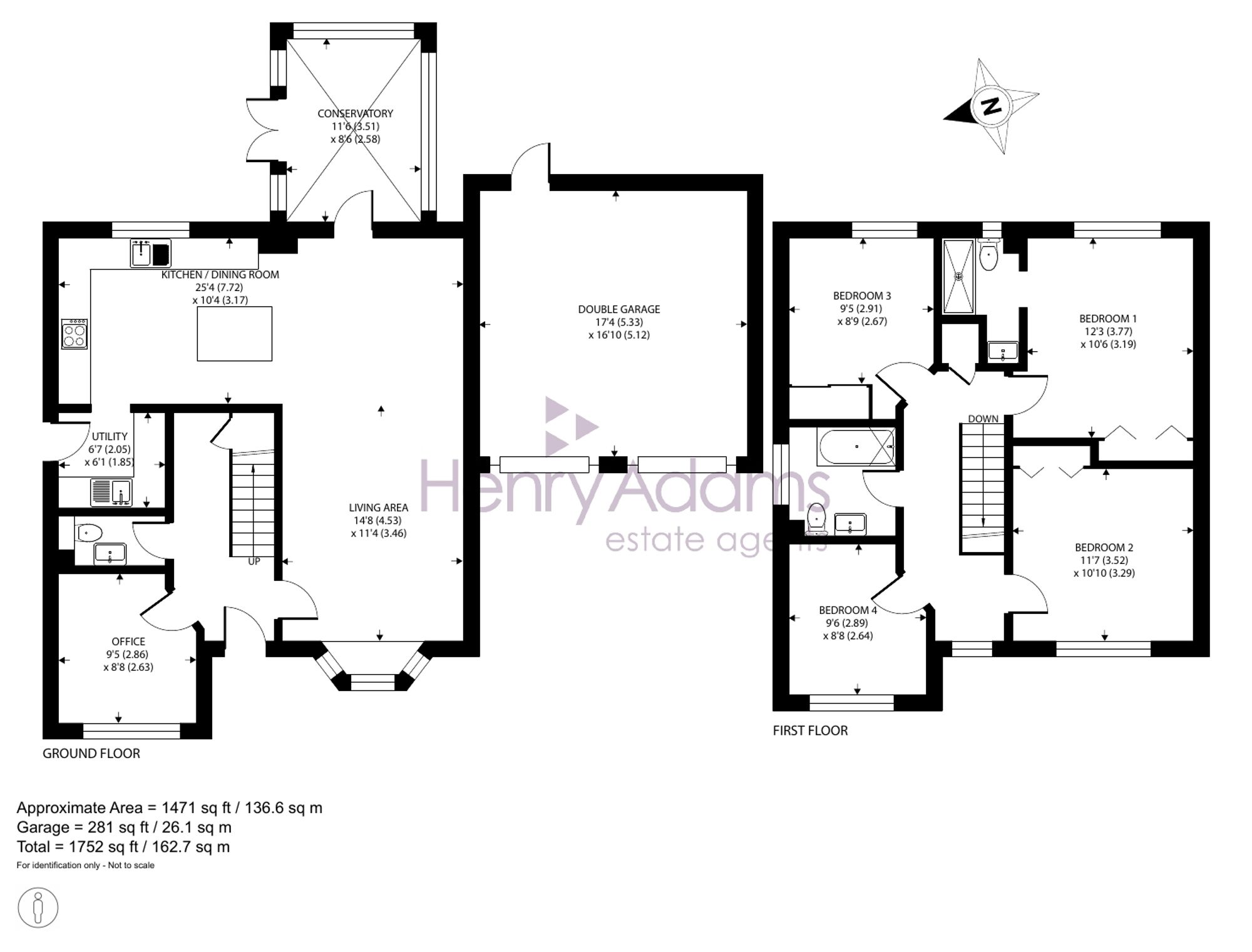
This beautifully presented detached house offers an exceptional opportunity to acquire a spacious and modern family home in a highly sought-after coastal location, just 150 metres from the beach. The property features four bedrooms, three of which benefit from built-in wardrobes, providing ample storage for the whole family. The heart of the home is the impressive open plan living, dining, and kitchen arrangement, recently renovated to incorporate a contemporary kitchen and dining room with granite worktops and integrated appliances. The adjoining utility room is similarly equipped, offering additional workspace and storage. Further accommodation includes a light-filled conservatory (perfect for year-round enjoyment) and a dedicated study for home working. The property boasts a stylish family bathroom, an en-suite shower room to the principal bedroom, and a convenient ground floor cloakroom. Offered with no onward chain, this home is ready for immediate occupation.

The outside space is thoughtfully landscaped to complement the coastal setting, featuring an attractive frontage laid to stone with mature palm trees, creating a welcoming first impression. The rear garden is designed for both relaxation and entertaining, with a generous decked area wrapping around the conservatory (ideal for alfresco dining or enjoying the sun), while the remainder of the garden is mainly laid to lawn. There is also an area laid to shingle, providing further versatility. Twin side access gates lead to the front of the property, and a personal door offers direct entry into the double garage. The double driveway provides off-road parking and leads to the twin up and over garage doors (one electrically operated), with light and power connected, making it suitable for a variety of uses.

Situation

  • Covered entrance
  • Entrance Hall
  • Cloakroom
  • Study 9' 4" x 8' 8" (2.85m x 2.63m)
  • Living room 14' 10" x 11' 4" (4.53m x 3.46m)
  • Kitchen dining room 25' 4" x 10' 5" (7.72m x 3.17m)
  • Utility Room 6' 9" x 6' 1" (2.05m x 1.85m)
  • Conservatory 11' 9" x 8' 6" (3.57m x 2.59m)
  • Landing
  • Bedroom One 12' 4" x 10' 6" (3.77m x 3.19m)
  • En-Suite Shower Room
  • Bedroom Two 11' 6" x 10' 8" (3.51m x 3.24m)
  • Bedroom Three 9' 7" x 8' 9" (2.91m x 2.67m)
  • Bedroom Four 9' 6" x 8' 8" (2.89m x 2.65m)
  • Family Bathroom

Council Tax Band: E

Tenure: Freehold

EPC Rating: C

Why live in Selsey?

It may be classed as a town, but Selsey is still a seaside village at heart and, whether you’re looking for a dream home by the beach, a place to indulge your passion for watersports or a quiet retreat away from the hustle and bustle of life, Selsey has it all.

The old town in the south east quarter is known for its charming historic properties, including 17th century thatched houses while you’ll find many large and secluded homes offering stunning views of the water by the seafront. The north of Selsey has many 1970s style properties with more substantial, semi-rural homes set around them.

You’ll find a great selection of shops, pubs and restaurants right here on the High Street along with a strong sense of community, especially at Christmas when the Selsey Lights are a sight to behold. We have two local primary schools, Medmerry Primary and the Seal Primary Academy, and The Academy Selsey senior school in the town with more options in Chichester, including Chichester High School.

Selsey has a long-standing love of sport and is proud home to both Selsey Cricket Club and the Selsey Football and Social Club, as well as a bowls and tennis club, but you’ll find even more sporting activity by the water. If you like scuba diving or snorkelling we have some of the best water for diving in the UK, with more than 100 wrecks to explore just off the coast. If you’re keen to learn, the Mulberry Divers Centre on East Beach offers tuition to everyone from complete beginners to advanced divers. There’s swimming, sailing and windsurfing around the Selsey Bill headland or bike rides along the coastal cycle path or to the stunning beaches at Bracklesham Bay, East Wittering or West Wittering where you can feel the sand under your feet.

While Selsey offers the best of seaside living, it’s just less than 10 miles from the cultural heartland of Chichester and everything that the famous cathedral city has to offer, from the plentiful shops to the Festival Theatre. So you see, Selsey really does have it all.

If you’d like to buy, sell or let a property in Selsey, get in touch with your local team and discover the Henry Adams difference for yourself.

Read more