Facebook

Greenfields Close, Nyewood, GU31

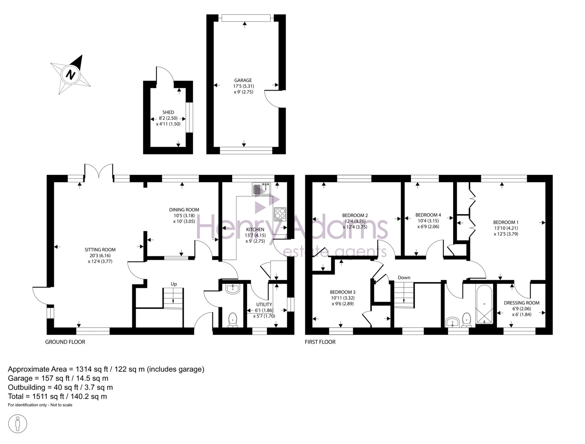
4 Bed │ 1 Bath │ 2 Rec

In Excess of £700,000

Save
Petersfield

Dean Kellaway

Branch Manager

Key features

  • Detached Four Bedroom Home.
  • Peaceful Village Location.
  • Lovely Cul-De-Sac Position
  • Ample Off Road Parking along with a Garage and a Carport.
  • Spacious Lounge that flows into Dining area.
  • Dressing room to Main Bedroom.
  • A Bright and Open Entrance Hall.

Full description

Hawkshill is a spacious four-bedroom home situated in a quiet cul-de-sac within a desirable rural location, offering generous and well-balanced accommodation ideal for family living. The property benefits from a garage and ample off-road parking.

The home is entered via a spacious entrance hall which provides a welcoming first impression and gives access to the principal ground-floor rooms. The kitchen is well proportioned and offers practical workspace and storage, making it well suited to everyday family use. Adjacent living areas include a generous lounge and dining area, providing flexible space for both relaxing and entertaining.

The main bedroom benefits from a dedicated dressing room, offering excellent storage and space. Three further bedrooms are well sized and adaptable for family living, guests, or home office use.

Outside, the property enjoys a peaceful position within the cul-de-sac, with the garage and extensive parking adding to its practicality. Located in the rural village of Nyewood, Hawkshill offers a quiet lifestyle while remaining accessible to local amenities and transport links nearby in Petersfield.

Situation

Council Tax Band: E

Tenure: Freehold

EPC Rating: D

Why live in Petersfield?

Petersfield often features on lists of the best places to live and work and was recently voted one of the top 10 most desirable market towns in England; The Guardian went so far as to describe Petersfield as ‘a commuter’s Nirvana, the urban equivalent of a foot rub and a G&T’.

We have a delightful choice of properties in the area, from beautiful character cottages, some dating back 500 years, to coach house style homes and large rural retreats to modern family homes. There’s also a thriving rental market here as the convenient location, attractive setting and abundant facilities make this an excellent base for those working in the wider area or simply wanting a perfect place to raise a family.

One of the major attractions for families is the choice of world-class schools – The Petersfield School is rated ‘outstanding’ by Ofsted and Bohunt School at nearby Liphook is one of the top performing state schools in the country. In the private sector, Churcher’s College and Bedales are located in the town, while Ditcham Park School is just to the southeast.

We have cosmopolitan range of shops, restaurants and cafés, with most major retailers represented. The Petersfield Market is held twice a week in The Square and a Hampshire Farmer’s Market is held on the first Sunday of every month. We also have many sports facilities, including two golf clubs, the Taro Leisure Centre and the Petersfield Open Air Swimming Pool, which, despite being open to the elements, is always heated to an average of 27 degrees.

But what really sets Petersfield apart is the beautiful countryside and its pretty villages. These include Selborne with its post office, primary school and choice of two pubs, Steep Village, which sits on wooded slopes known as The Hangers and was once home to Sir Alec Guinness, Buriton Village, which sits between Petersfield and the Queen Elizabeth Country Park and Rogate and Rake to the east within in the Rother Valley.

If you’d like to buy, sell or let a property in Petersfield, get in touch with your local team and discover the Henry Adams difference for yourself.

Read more