Facebook

Charlmead, East Wittering, PO20

3 Bed │ 2 Bath │ 2 Rec

Guide Price £699,950

Save
East Wittering

Rachel Treagust

Branch Manager

Key features

  • NO FORWARD CHAIN
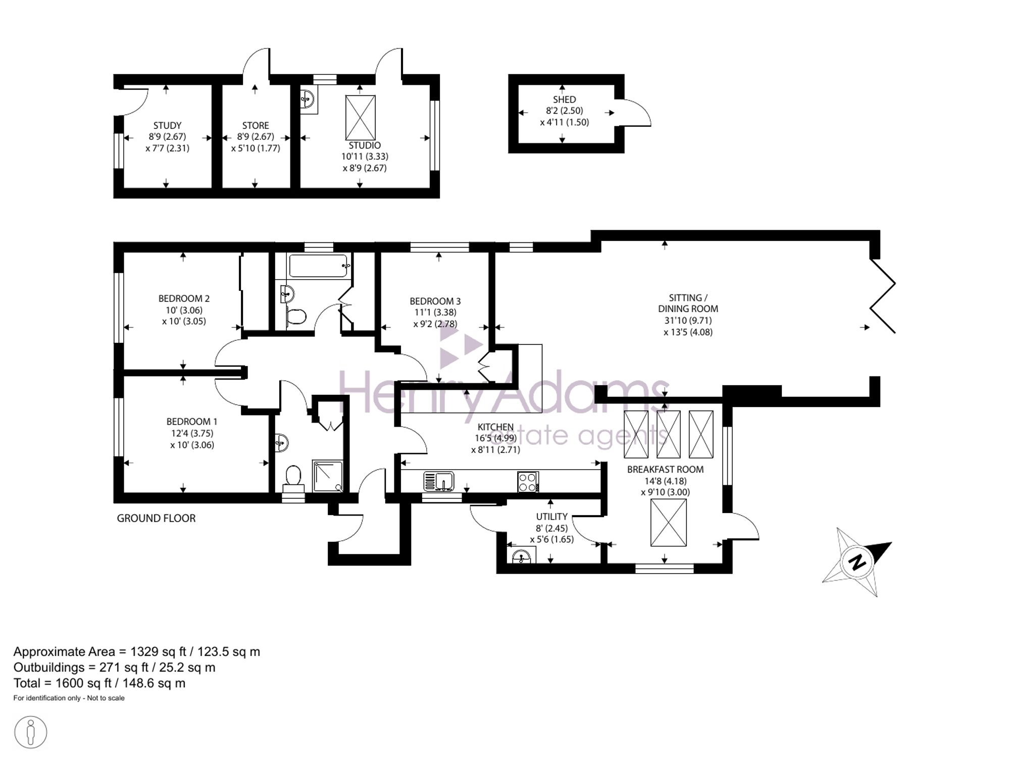
  • Three Bedroom Extended Detached Bungalow
  • Open Plan Sitting/Dining Room
  • Kitchen/Breakfast Room
  • Utility Room and Study
  • Detached Studio and Store
  • Bathroom & Shower Room
  • Sought-After Location Close to the Beach & East Wittering Village Centre
  • Driveway Parking for Several Vehicles

Full description

Henry Adams are delighted to present this wonderful property set along a quiet private road just moments from the heart of East Wittering village and the beach, this attractive detached bungalow offers spacious, well balanced accommodation with a lovely sense of light throughout. The property has been really well maintained and is presented in neat, move-in ready condition, while also offering excellent scope for extension or modernisation in the future, if desired.

The sitting/dining room is a bright and welcoming space, with bi-fold doors opening onto the garden to create a seamless flow between indoors and out ideal for everyday living and entertaining alike. The kitchen is modern and well equipped, with a recent extension creating an adjoining breakfast area that’s filled with natural light thanks to its vaulted ceiling and opens directly onto the garden. A separate utility room provides useful additional space.

There are three comfortable bedrooms, including a generous principal bedroom with fitted wardrobes, together with a family bathroom and an additional shower room.

Outside, the garden is private and neatly landscaped, offering plenty of space to relax or entertain. The detached studio, together with a study and store, provides great flexibility, perfect for working from home, hobbies, or guest accommodation. A further shed offers additional storage and a large gated driveway providing ample off-road parking.

Council Tax band: E

Tenure: Freehold

EPC Energy Efficiency Rating: C

Gas Fired Central Heating (Combi boiler installed in 2021)

Situation

Situated just a short walk from the beach, within East Wittering, some 7 miles to the south-west of Chichester. The beaches in the Witterings enjoy views towards the
Isle of Wight and are popular with Kite surfers and Windsurfers. The village nearby (at East Wittering) offers a range of local facilities including: infants/junior school, GP’s surgery, dentist, library, 2 mini supermarkets and a range of quality independent shops. There is also a regular bus service to Chichester with its wide range of shops, cinemas, restaurants, Festival Theatre and mainline railway station. The world famous Goodwood Racecourse and Motor Circuit are some 3 miles beyond Chichester.

Council Tax Band: E

Tenure: Freehold

Why live in the Witterings?

People flock to East Wittering during the holiday season thanks to our world-famous beaches that are so beautiful and a way of life that’s relaxed and warm.

It’s little wonder we experienced significant building development during the 1960s and ‘80s when our rich mix of character house styles in the Witterings made it hard for people to leave. Many of the properties in the area enjoy wonderful views across the English Channel and the sound of distant waves provides a soothing backing track to everyday life here.

There’s no shortage of things to do in the area, especially if you enjoy spending time on the beach, playing water sports and experiencing the countryside and wildlife.  Both East and West Wittering are well known for sailing and surfing and there are local sailing clubs at West Wittering, Itchenor and Dell Quay and mooring facilities at Chichester Marina. West Wittering beach is postcard-perfect with its vast expanses of fine golden sand while East Wittering is more typically English with a shingle shelf that’s exposed when the tide goes out leaving behind stunning areas of wet sand where you can make sandcastles to your heart’s content. The nearby Bracklesham Bay is especially popular with surfers, divers, windsurfers and paddle boarders as well as being a treasure trove for fossil hunters.

We have everything here you need to enjoy this idyllic lifestyle here. In the village you’ll find a good selection of shops, including mini supermarkets, greengrocers, butchers, banks, bakers and a fishmonger and everything is close by in Chichester and Portsmouth.  We have two local schools for children up to 11 years of age at East Wittering Community Primary School and West Wittering Parochial C of E School and a choice of secondary schools and further education options in Chichester.

If you’d like to buy, sell or let a property in East Wittering, get in touch with your local team and discover the Henry Adams difference for yourself.

Read more