Facebook

Hurstwood Court, Midhurst, GU29

3 Bed │ 2 Bath │ 2 Rec

Offers in Region of £385,000

Save
Midhurst

Matt Shepherd

Partner

Key features

  • No Onward Chain
  • Three Double Bedrooms / Two Bathrooms (One Ensuite)
  • Two Allocated Parking Spaces
  • Kitchen / Dining Room
  • Low-Maintenance Garden
  • Built in Wardrobes
  • Ideal First-Time Buyer Home
  • Potential to a Fourth Bedroom

Full description

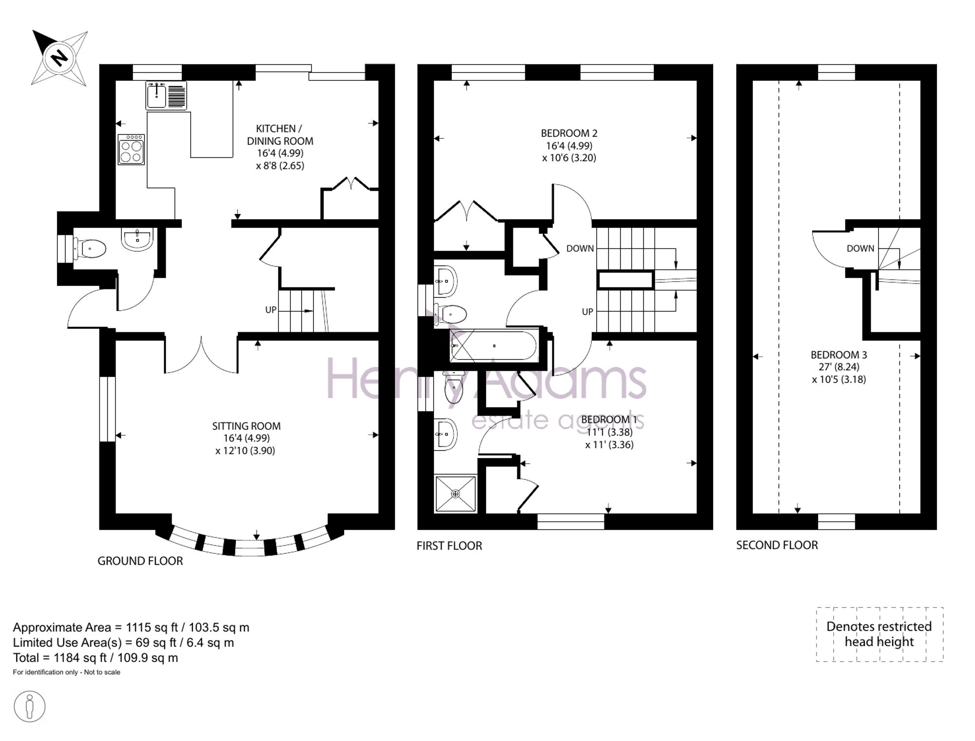
Offered for sale with no onward chain, this attractive three-storey end of terrace home provides flexible and well-balanced accommodation, currently arranged with three double bedrooms and the potential to create a fourth if required.

The ground floor opens into a welcoming and spacious entrance hall, leading through to bright, airy living spaces. The dual-aspect sitting room enjoys a bay window, creating a lovely sense of light, while the well-appointed kitchen/dining room forms the heart of the home, with French doors opening directly onto a private, low-maintenance garden—ideal for both everyday living and entertaining.

On the first floor are two generously proportioned double bedrooms, with the principal bedroom benefiting from an ensuite shower room. A modern family bathroom also serves this level.

The standout feature of the property is the impressive top floor, currently arranged as a double bedroom with an adjoining hobby or study area. This versatile space could easily be reconfigured to provide an additional bedroom, offering excellent flexibility to suit a range of needs.

Further benefits include two allocated parking spaces, one of which is under cover, adding to the practicality of this appealing home.

Situation

  • Sitting Room 16' 4" x 12' 10" (4.99m x 3.90m)
  • Kitchen / Dining Room 16' 4" x 8' 8" (4.99m x 2.65m)
  • Cloakroom
  • Bedroom 1 11' 1" x 11' 0" (3.38m x 3.36m)
  • Ensuite
  • Bedroom 2 16' 4" x 10' 6" (4.99m x 3.20m)
  • Bathroom
  • Bedroom 3 27' 0" x 10' 5" (8.24m x 3.18m)

Council Tax Band: E

Tenure: Freehold

EPC Rating: C

Why live in Midhurst?

Midhurst lies on the River Rother, just 12 miles north of Chichester, and has the remarkable claim to fame of being the home of British polo thanks to the Cowdray Park Polo Club on the local Cowdray Estate, but there’s so much more to this pretty market town. It’s centuries old, boasting more than 100 listed buildings with a charming mix of medieval, Georgian, Victorian and Edwardian architecture that sits comfortably alongside more contemporary new homes.

The narrow lanes of Midhurst’s old town offer a fantastic variety of places to shop with an abundance of small independent boutiques all housed in ancient buildings. There are plenty of places to dine in and around the town centre, too, with options ranging from up-market restaurants specialising in local produce to high street favourites and charming tearooms where you can enjoy your favourite afternoon treat.

You’ll also find plenty to do here – when you’re not engaged in polo, fly-fishing or clay pigeon shooting on the Cowdray Estate, you could head over to the Cowdray Golf Club to enjoy some of the most scenic views in West Sussex and get involved with one of the many other clubs and societies that use it as a base. You’ll find a local camera club, the Midhurst Players, the Gardening Club and in August you could join in with the ten days of fun at the Midhurst Music, Arts and Dramatic Festival, ‘MADhurst’. There’s never a dull moment here!

As far as family life goes, we have many well-regarded schools in and around the area, all with strong Ofsted reports and excellent reputations, including Midhurst C of E Primary and Midhurst Rother College, which, between them, cater for pupils from age four to 18.

If you’d like to buy, sell or let a property in Midhurst, get in touch with your local team and discover the Henry Adams difference for yourself.

Read more