Facebook

Harding Close, Selsey, PO20

4 Bed │ 3 Bath │ 3 Rec

Guide Price £525,000

Save
Selsey

Kevin Daymond

Partner

Key features

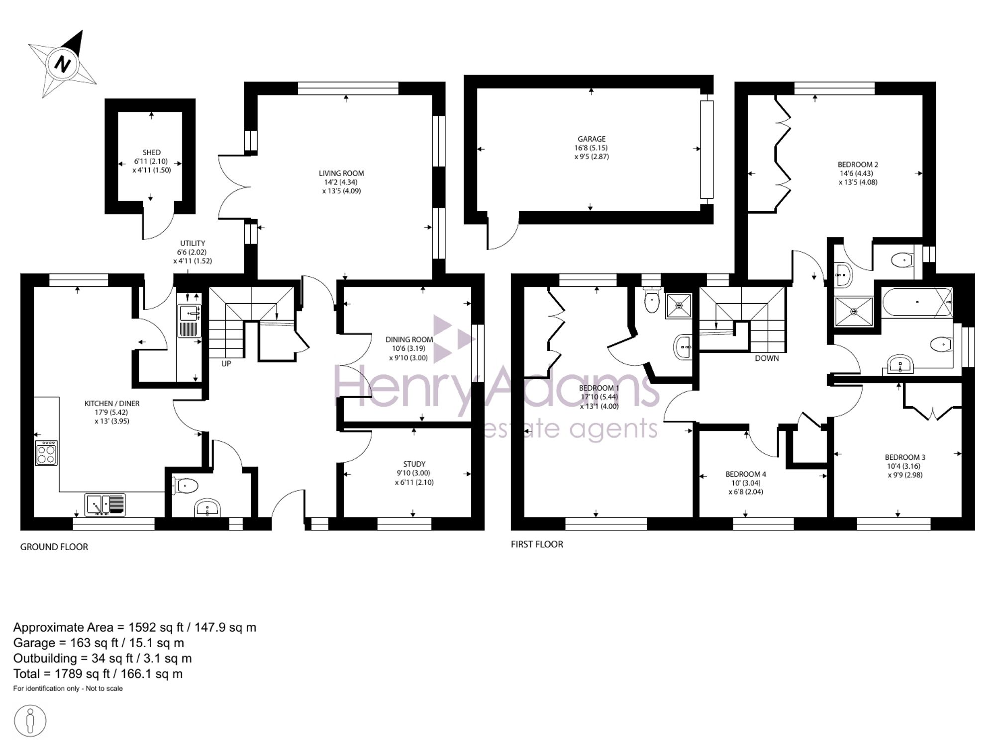
  • Deceptively spacious detached house
  • Four bedrooms, 2 with en-suites
  • Two reception rooms & study/home office
  • Kitchen breakfast room & utility room
  • Cloakroom and family bathroom
  • Driveway & detached garage
  • Front, side and rear gardens
  • Offered for sale for the 1st time in 16 years
  • No onward chain

Full description

This deceptively spacious detached house offers an exceptional opportunity for families and professionals alike, offered for sale for the first time in 16 years. The property boasts four bedrooms (3 doubles and 1 single), two of which feature en-suite shower rooms, providing comfort and privacy for family members or guests. The ground floor accommodation comprises two inviting reception rooms, ideal for both formal entertaining and relaxed gatherings, as well as a versatile study or home office, perfect for those working remotely. The well-appointed kitchen breakfast room is complemented by a separate utility room, ensuring ample space for day-to-day living and practical needs. A cloakroom and a stylish family bathroom complete the internal accommodation, providing convenience for all. The house benefits from a welcoming & spacious entrance hallway, double glazing throughout, and gas central heating. With no onward chain, this property presents a rare and appealing chance to secure a family home in a desirable location.

Externally, the property has attractive and well-tended gardens, featuring front, side, and rear gardens that offer a variety of areas for relaxation, play, and outdoor entertaining. The front and side gardens are landscaped with mature shrubs and a neat lawn, creating a welcoming first impression. The rear garden is a particular highlight, offering a decked seating area that is ideal for alfresco dining or summer barbeques and lawn bordered by flowerbeds. The property benefits from a private driveway providing off-road parking, in addition to a detached garage that offers secure storage or workshop potential. The gardens are fully enclosed, making them safe for children and pets, and there is gated access to the rear for added convenience. This delightful outside space perfectly complements the spacious interior, creating a wonderful environment for family life and entertaining throughout the year.

Situation

  • Entrance Hall
  • Cloakroom
  • Study 9' 10" x 6' 11" (3.00m x 2.10m)
  • Living room 14' 3" x 13' 5" (4.34m x 4.09m)
  • Dining room 10' 6" x 9' 10" (3.19m x 3.00m)
  • Kitchen breakfast room 17' 9" x 13' 0" (5.42m x 3.95m)
  • Utility Room 6' 8" x 5' 0" (2.02m x 1.52m)
  • Landing
  • Bedroom One 17' 10" x 13' 1" (5.44m x 4.00m)
  • Bedroom Two 14' 6" x 13' 5" (4.43m x 4.08m)
  • En-Suite Shower Room
  • Bedroom Three 10' 4" x 9' 9" (3.16m x 2.98m)
  • Bedroom Four 10' 0" x 6' 8" (3.04m x 2.04m)
  • Family Bathroom

Council Tax Band: E

Tenure: Freehold

EPC Rating: C

Why live in Selsey?

It may be classed as a town, but Selsey is still a seaside village at heart and, whether you’re looking for a dream home by the beach, a place to indulge your passion for watersports or a quiet retreat away from the hustle and bustle of life, Selsey has it all.

The old town in the south east quarter is known for its charming historic properties, including 17th century thatched houses while you’ll find many large and secluded homes offering stunning views of the water by the seafront. The north of Selsey has many 1970s style properties with more substantial, semi-rural homes set around them.

You’ll find a great selection of shops, pubs and restaurants right here on the High Street along with a strong sense of community, especially at Christmas when the Selsey Lights are a sight to behold. We have two local primary schools, Medmerry Primary and the Seal Primary Academy, and The Academy Selsey senior school in the town with more options in Chichester, including Chichester High School.

Selsey has a long-standing love of sport and is proud home to both Selsey Cricket Club and the Selsey Football and Social Club, as well as a bowls and tennis club, but you’ll find even more sporting activity by the water. If you like scuba diving or snorkelling we have some of the best water for diving in the UK, with more than 100 wrecks to explore just off the coast. If you’re keen to learn, the Mulberry Divers Centre on East Beach offers tuition to everyone from complete beginners to advanced divers. There’s swimming, sailing and windsurfing around the Selsey Bill headland or bike rides along the coastal cycle path or to the stunning beaches at Bracklesham Bay, East Wittering or West Wittering where you can feel the sand under your feet.

While Selsey offers the best of seaside living, it’s just less than 10 miles from the cultural heartland of Chichester and everything that the famous cathedral city has to offer, from the plentiful shops to the Festival Theatre. So you see, Selsey really does have it all.

If you’d like to buy, sell or let a property in Selsey, get in touch with your local team and discover the Henry Adams difference for yourself.

Read more