Facebook

Summersdale Road, Chichester, PO19

3 Bed │ 1 Bath │ 2 Rec

Guide Price £700,000

Save
Chichester

Richard Longhurst

Partner

Key features

  • Premium location
  • Welcoming entrance hall
  • Spacious sitting/dining room
  • 25' kitchen/family room
  • Cloakroom
  • Three bedrooms
  • Family bathroom
  • Off-road parking
  • No onward chain

Full description

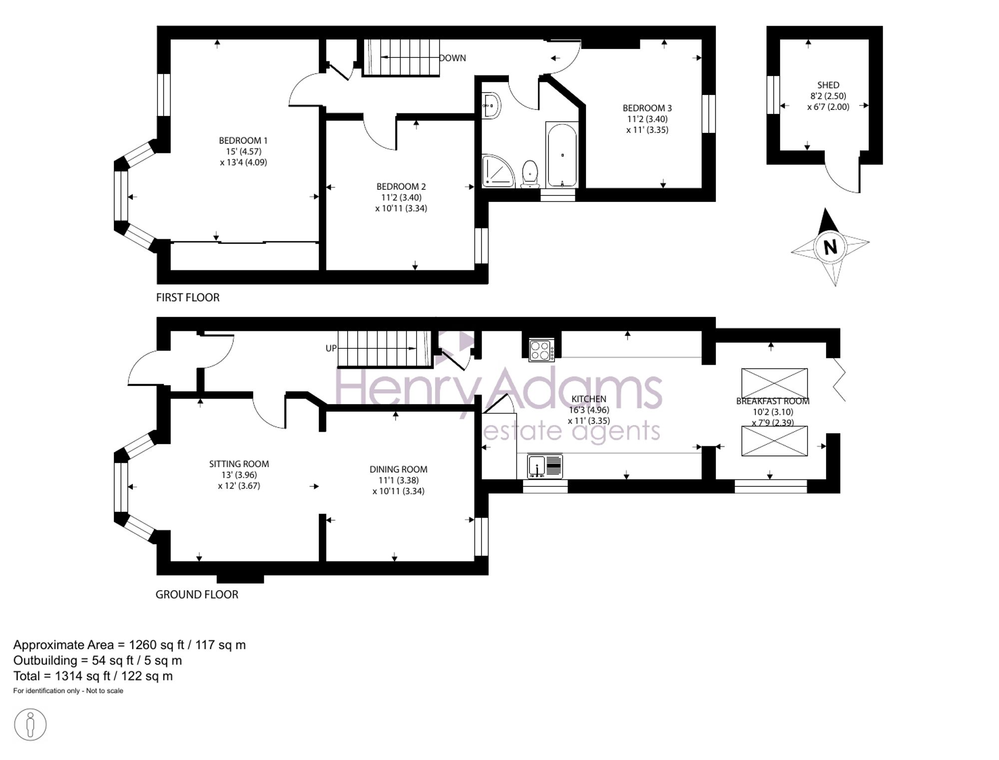
A rare opportunity to purchase an elegant Edwardian house in Summerdale.

An extended three-bedroom semi-detached Edwardian home, beautifully blending period elegance with modern style and convenience. Situated in a highly sought-after residential location approximately one mile north of the city centre.

The property is entered via a welcoming entrance hall leading to a spacious, dual-aspect sitting/dining room featuring a west-facing bay window. Originally two separate rooms, this space now offers excellent flexibility for both relaxing and entertaining.

To the rear is an impressive 25’ open-plan kitchen/family room fitted with contemporary matt green shaker-style units complemented by contrasting grey worktops. The family area enjoys bi-folding doors opening directly onto the rear garden, along with Velux windows that flood the space with natural light. A ground floor cloakroom completes the accommodation on this level.

The first floor provides three well-proportioned bedrooms and a stylish family bathroom fitted with a bath and separate shower cubicle. The principal bedroom benefits from a feature bay window and wall-to-wall built-in wardrobes.

Outside, the front garden is predominantly paved providing off-road parking and is enclosed by an attractive flint and brick boundary wall. The rear garden is arranged over two levels, with a walled patio immediately outside the family room, ideal for alfresco dining, leading via steps down to a lawned area with well-established borders.

 Chichester District Council - 25/26 Tax Band A £1,661.44 EPC-C

Directions - From the Northgate circulatory system, proceed north up the A286 Midhurst Road. After passing Oaklands Park and the Roussillon Park development turn right into The Broadway. At the end turn left into Summersdale Road and The Poplars is a short distance along on the right. What3words - candy.camera.unless

Situation

Nearby there is a local convenience store, doctors' surgery and pharmacy as well as a regular bus service into the city centre. Chichester offers excellent high street shopping, many fashionable restaurants, cafes and bars, the Festival Theatre and a mainline station to London Victoria. Goodwood is famous for its many event days including the world renowned Festival of Speed and Goodwood Revival for motor racing enthusiasts and a season of horse racing. There are excellent sailing facilities around Chichester Harbour and water sports from the beaches at West Wittering. The area is a paradise for wildlife enthusiasts, with beautiful walks and cycle tracks over the South Downs and around the harbour.

Council Tax Band: A

Tenure: Freehold

EPC Rating: C

Why live in Chichester?

We consider ourselves very lucky to be working in a city that blends so many different architectural styles, from elegant Georgian buildings to contemporary new apartments and waterside properties that overlook the harbour.

In 2013, The Sunday Times listed Chichester as one of the top places to live in the UK with ‘something for everyone’ – and they weren’t wrong. Chichester is a cathedral city, a county town and home to some of the oldest churches and buildings in the country. There are many well-regarded public and state schools in the local area with further and higher education options available from Chichester College, West Dean College and the University of Chichester. Our great schools have always made Chichester very appealing for those looking for the perfect place to raise a family.

Our city centre is a shopper’s paradise and there are great places to eat and drink, from elegant restaurants to cosy cafés and pubs, all set along the city’s four main streets. Chichester Cathedral on West Street dominates the skyline and, on summer afternoons, its grounds are filled with local people enjoying picnics. In the evenings, the Cathedral plays a central part in the city’s nightlife by hosting classical music events.

Chichester has a number of public parks, the Chichester Tennis and Racquets Fitness Club and Westgate Leisure Centre, where you’ll find a large swimming pool and skate park and, if sailing is your thing, Chichester Harbour is a haven for you. There really is so much to do here you’ll be spoilt for choice; spend the day on one of the many local beaches, stretch your legs on the stunning South Downs or catch a show at the Festival Theatre before it moves to a permanent home in London’s West End.

If you’d like to buy, sell or let a property in Chichester, get in touch with your local team and discover the Henry Adams difference for yourself.

Read more