Facebook

Whitley Close, Emsworth, PO10

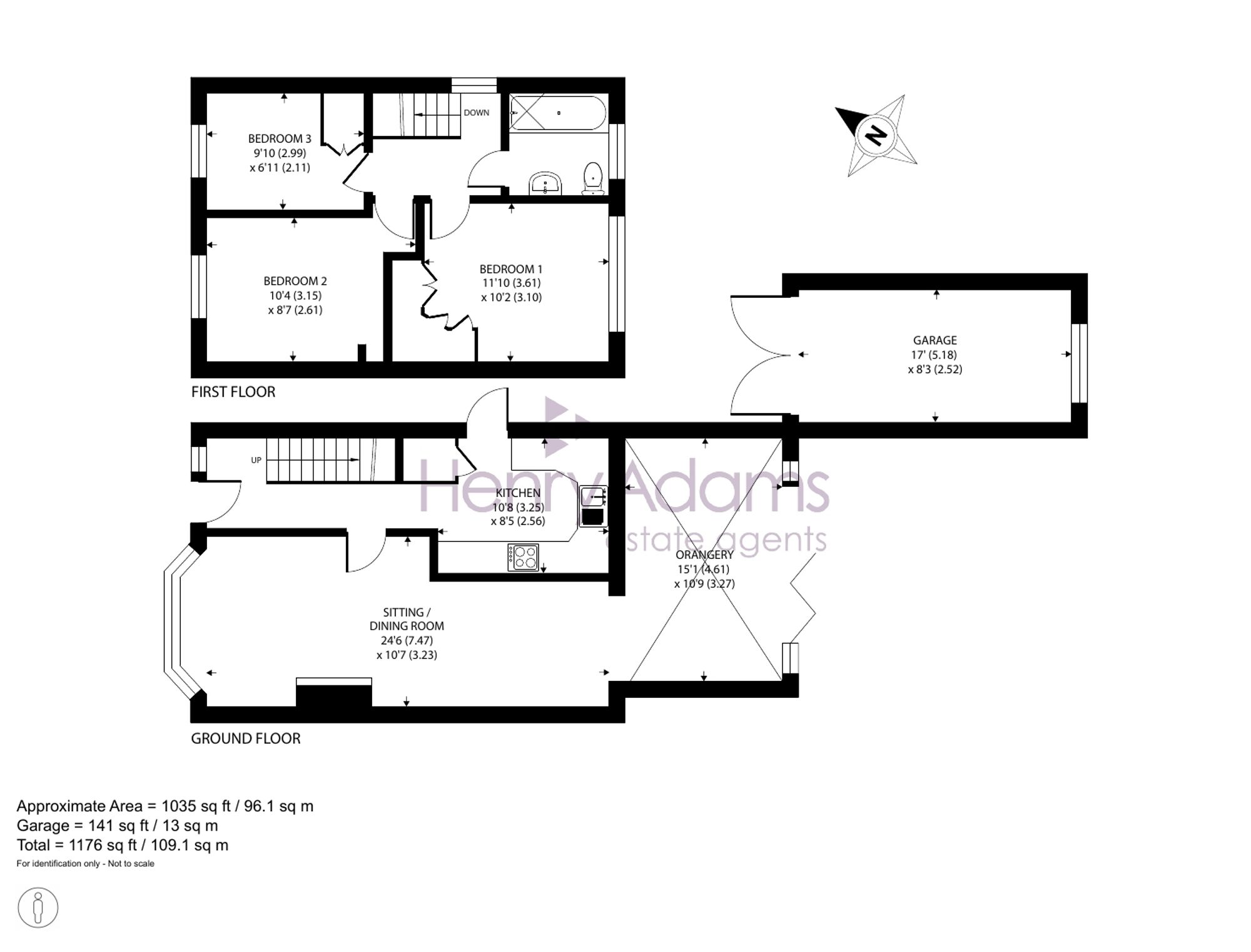
3 Bed │ 1 Bath │ 1 Rec

Guide Price £475,000

Save
Emsworth

Joanna Coles

Branch Manager

Key features

  • Semi-Detached House
  • Exceptional Quality Throughout
  • Three Bedrooms
  • Landscaped Front & Rear Gardens
  • Driveway & Garage
  • Planning Permission Granted

Full description

This immaculate three-bedroom semi-detached family home, with a detached garage to the rear, occupies a highly sought-after position on one of Westbourne’s most desirable roads. Carefully upgraded and meticulously maintained, the property exudes quality and attention to detail from the moment you arrive, reflecting the care the current owners have invested throughout the years.

The ground floor opens to a welcoming hallway leading to the living room, which features a charming log-burning stove as a warm and inviting focal point. The bespoke kitchen is fitted with premium cabinetry and integrated appliances, marrying style with practicality, while a garden room to the rear, with reflective glass and underfloor heating, offers a tranquil space that seamlessly connects the interior with the landscaped garden. Upstairs, three generously proportioned bedrooms are served by a contemporary family bathroom, each finished to an exacting standard.

Externally, the rear garden combines lawn and paved areas, with direct access to the detached garage. Beyond the garage, a glazed seating area provides a versatile space for all-year alfresco dining. The front of the property is equally impressive, featuring an EV charging point and outdoor electric sockets, parking for multiple vehicles, and a manicured garden that sets the tone for the home from the very first step.

Planning permission has been granted for a striking double-story extension wrapping around the rear of the property, providing scope to significantly enhance the living space and overall footprint of this exceptional home.

Situation

The picturesque village of Westbourne is a vibrant community situated on the southern edge of the South Downs National Park, straddling the border of Hampshire and West Sussex along the banks of the River Ems. The charming village square offers a selection of local amenities, independent shops, and two welcoming public houses, providing a strong sense of community and convenience. Westbourne Primary School, highly regarded and within the local catchment, serves the area, while the historic Parish Church, crowned by its 18th-century spire, adds a notable architectural focal point.

Approximately one mile to the south lies the cosmopolitan harbour town of Emsworth, renowned for its array of restaurants, cafés, pubs and boutique shops, combining waterside charm with a lively social scene. The area also benefits from excellent transport links, including Emsworth train station, which provides connections to Havant and the mainline to London Waterloo, making it an ideal location for both families and commuters.

Council Tax Band: D

Tenure: Freehold

EPC Rating: D

Why live in Emsworth?

The perfect blend of town, country and coastal life is what draws people from all walks of life to Emsworth, Havant and Rowlands Castle.

Moving to Emsworth 

Emsworth itself was once a fishing village, known for boatbuilding, ropemaking and oyster farming. Although many of the old ways are long gone, the town has retained much of its old-fashioned charm and added a modern twist. 

As one of the most successful estate agents in Emsworth, we love working in this fabulous seafront setting. Emsworth has lots of independent shops, a butcher, fishmonger, florist, delicatessen, supermarkets and nearby farm shops. We’re also spoilt by the number of popular pubs, bars and restaurants here where you can enjoy a chilled drink with friends as the sun goes down or fine dining with a waterside view. 

With its coastal setting, Emsworth is a paradise for sailors. Wonderful waterside properties line the harbour and there’s a choice of local sailing clubs, whether you’re just finding your sea legs or you’re a seasoned sailor. Nearby Hayling Island is the spiritual home of windsurfing. On weekends, you’ll often see them racing and dancing across the waves as you stroll the long, golden beaches. 

Emsworth is a great place for families too. You’ll find a great selection of good schools, including St. James Primary School, Emsworth Primary School, Warblington Secondary School and Bourne Community College

The many artists who live and work here throw open their studio doors to show their work at the annual Emsworth Art Trail. The Emsworth Horticultural Society holds the annual Emworth Show over the August Bank Holiday, which includes demonstrations of ancient crafts such as glass-blowing, wood turning, falconry and beekeeping. It’s a buzzing community with local business networks firing on all cylinders and its own magazine, The Ems, keeping everyone updated on local events. 

Moving to Rowlands Castle 

Just inland is the pretty village of Rowlands Castle, bordered by the spectacular scenery of the South Downs National Park. The village lies a few miles north of Chichester and Portsmouth, so there’s great access to all the amenities of city life from a countryside setting. Closer to home, Rowlands Castle itself has all you need for everyday living, from a convenience store, pharmacy, vets and a post office just off the traditional village green.

Henry Adams has been the trusted choice for estate agents in Rowlands Castle for over 30 years. In 2022, we extended our reach in the village when Emsworth Sales Branch Manager, Katie Cummings, seamlessly took the helm at Henry Adams in Emsworth and she continues to specialise in selling homes in Rowlands Castle. With her guidance, based on extensive knowledge of the local property market, you can confidently navigate buying or selling in this lovely village. 

Rowlands Castle has three friendly pubs and a cafe, a railway station with a direct line to London Waterloo, and easy access to the A3(M) interchange which links to Portsmouth, Petersfield and London. There are plenty of local opportunities for taking time to enjoy life, including Rowlands Castle Golf Club nearby, Rowlands Castle Tennis Club, and the great Stansted Estate for scenic walks and a sense of grandeur. 

Moving to Havant 

Nestled in the southeast corner of Hampshire is the historic market town of Havant. Situated close to the coast, Havant is bordered by the South Downs and the Solent. Langstone Bridge connects the mainland to Hayling Island with its long stretches of beaches and waterside walks. 

This area has great connections. The A27 runs along the southern fringes of Havant, linking to Chichester & Brighton to the east and to Portsmouth & Southampton to the west. Travelling northwards the A3(M) provides easy access to Horndean, Petersfield, Haslemere, Guildford and central London. 

Havant’s rich history dates back to Roman times and is mentioned in the Doomsday Book in 1086 when its population was about 100 people. Over the years, it’s grown through trade and agriculture, as well as the thriving glove-making trade in the 1700s. The Victorian-era train station now connects passengers directly to London with some journey times taking less than an hour and a half to the capital. The architecture reflects the evolution of Havant, with Georgian buildings lending character from earlier years.Today there are specialist retailers, high street shops, a twice-weekly market, restaurants, pubs, and Horizon Leisure Centre which has a 25m indoor pool and caters to a range of sporting interests. 

Warblington, Langstone, Denvilles and more 

Each of the areas surrounding Emsworth and Havant, such as Denvilles, Langstone, Bedhampton and Warblington, has its own character. As your local estate agent specialising in these locations, we operate centrally from our Emsworth office and use our local insights to help you find the perfect setting for your next home, whether you’re buying, selling, renting or letting. 

Warblington lies on the eastern fringes of Havant and is a sought-after residential area. Its train station links directly to London Victoria while Warblington School caters for the younger generation.Families and individuals can make the most of active leisure locally, such as The Avenue, a popular sports & social club, and the expanses of open countryside and coastline. 

Langstone lies on the upper reaches of Chichester Harbour and Langstone Harbour, which are Sites of Special Scientific Interest (SSSIs), the village has renowned pubs and a historic mill. Langstone Bridge offers a scenic passage across the water to Hayling Island, with its breathtaking coastal scenery. Attracting new and growing businesses to the area is Langstone Park, which is undergoing significant investment and development. 

Neighbouring Denvilles is a popular residential location where you’ll find attractive Victorian & Edwardian homes alongside more modern family homes from the 1960s to the present day. There’s a real sense of community, making this an ideal setting for individuals, couples and families. 

At Henry Adams Emsworth, we take pride in being the specialist estate agent serving this picturesque area. Our coverage extends to selling homes in Havant, Denvilles, Warblington, Langstone and many other local hamlets and villages, such as Southbourne, Rowlands Castle and, of course, Emsworth itself. 

If you’d like to buy, sell or let a property in any of these locations, get in touch with your local team and discover the Henry Adams difference for yourself.

Read more