Facebook

Rock Road, Storrington, RH20

4 Bed │ 3 Bath │ 5 Rec

Guide Price £1,100,000

Save
Storrington

Christina Bearryman

Sales Associate

Key features

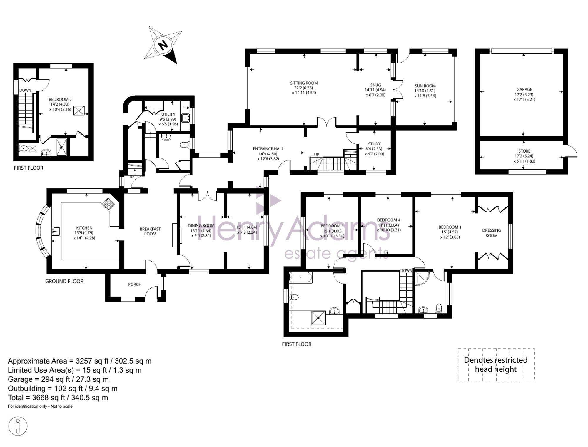
  • A spacious family home believed to date back to 1920's with a number of later additions extending the property to over 3,000 sq ft
  • Large light welcoming entrance hall
  • Sitting room with open fireplace leading to snug area and double doors to sun room
  • Dining room with feature fireplace
  • Kitchen / Breakfast room with access to porch
  • Cloakroom, utility room and study completing ground floor accommodation
  • Principal bedroom with en-suite shower room and dressing area
  • Three further double bedrooms and two bathrooms one being en-suite
  • Detached double garage with store to rear
  • Natural woodland garden with an abundance of azaleas, rhododendrons and camelias in a plot of 0.8 of an acre

Full description

This impressive four bedroom detached house offers over 3,000 sq ft of flexible accommodation, providing an exceptional family home believed to date back to the 1920s with a series of thoughtful later additions.

The property welcomes you with a spacious, light-filled entrance hall that sets the tone for the generous proportions found throughout. The elegant sitting room features an open fireplace, perfect for cosy evenings, and flows seamlessly into a snug area, with double doors leading to a versatile sun room ideal for relaxation or entertaining. A formal dining room, enhanced by a striking feature fireplace, provides an inviting setting for family meals and special occasions. The kitchen and breakfast room is well appointed, boasting an AGA, separate oven and hob, integrated dishwasher, fridge freezer, ample storage, and granite work surfaces, with access to a practical porch. Additional ground floor rooms include a cloakroom, utility room, and a study, offering excellent space for working from home or managing household tasks.

Upstairs, the principal bedroom benefits from a dressing area and an en-suite shower room, while three further double bedrooms ensure ample accommodation for family or guests. There are two further bath / shower rooms (one en-suite), providing convenience and privacy for all.

The property includes a detached double garage with a useful store to the rear, offering secure parking and additional storage. This substantial family home is presented in excellent order and combines period character with modern comfort, making it a rare opportunity for those seeking a spacious and adaptable residence in a desirable location.

The woodland gardens are a particular feature of the property with the plot extending to 0.8 of an acre there are an abundance of azaleas, rhododendrons and Camelias providing a exceptional seasonal colour. An internal viewing is recommended to appreciate the space on offer in this lovely home.

Situation

Storrington village lies in the lea of the South Downs National Park and has an established range of shops including Waitrose, Costa and a number of independent shops and HSBC bank. There is a health centre and various sporting activities including football club, Pulborough Rugby Club, tennis club and not forgetting the South Downs for walking or cycling or the National Trust Sullington Warren or Sandgate Country Park. The towns of Horsham and Worthing are about 15 and 11 miles respectively with good access to the A24.

The area around provides a wider range of sporting and recreational facilities with West Sussex Golf Club and other golf clubs further afield at Cowdray Park and Goodwood. Of special note is the RSPB nature reserve at Wiggonholt Brooks. The area also has bowls and cricket clubs. There is gliding at nearby Parham, theatres at Chichester, Horsham and Worthing and sailing centres all along the coast.
  • Entrance Hall
  • Sitting Room
  • Sunroom
  • Dining Room
  • Breakfast Room
  • Kitchen
  • Cloakroom
  • Utility Room
  • Study
  • Landing
  • Bedroom 1
  • Bedroom 2
  • En-Suite Shower Room
  • Bedroom 3
  • Bedroom 4
  • Bathroom

Council Tax Band: G

Tenure: Freehold

EPC Rating: D

Why live in Storrington?

This picture-perfect village lies at the foot of the South Downs National Park, halfway along the South Downs Way. Properties here include bungalows, family homes and the famous Wells cottages that were individually designed by the architect Reginald Fairfax Wells in the 1920s to look and feel like 17th century buildings with thatched roofs, small windows and whitewashed exteriors.

Many of the homes in Storrington have wonderful views across rolling countryside and a conservation area just off the bustling high street ensures Storrington will remain as beautiful as it is today for generations to come.

There are lots of specialist shops in the town and convenient amenities such as the large recreational ground with its football and cricket pitches, the Chanctonbury Leisure Centre and an abundance of community groups offering classes in all sorts of interesting activities from ballroom dancing to photography. For a spot of culture, visit the Parham House and Gardens or the local Storrington and District Museum and for outdoor pursuits, take time to explore the natural beauty of the South Downs on foot, bike or horseback or, for a truly spectacular experience, take to the air in a glider.

Our local schools belong to a cluster group called STARS (Storrington Area Rural Schools) and, between them, offer a choice of paths from Reception through to Year 13. Steyning Grammar School is included in the list of STARS and is a popular choice as it’s non-selective and has its own Sixth Form.

Storrington is well connected too; the nearest train station is in the neighbouring village of Pulborough. The five-mile journey only takes 10 minutes by car or you can take a bus; the bus timetable is synced with the train timetable to make life even easier for local commuters.

If you’d like to buy, sell or let a property in Storrington, get in touch with your local team and discover the Henry Adams difference for yourself.

Read more