Facebook

Geddes Way, Petersfield, GU31

4 Bed │ 2 Bath │ 2 Rec

Guide Price £850,000

Save
Petersfield

Dean Kellaway

Branch Manager

Key features

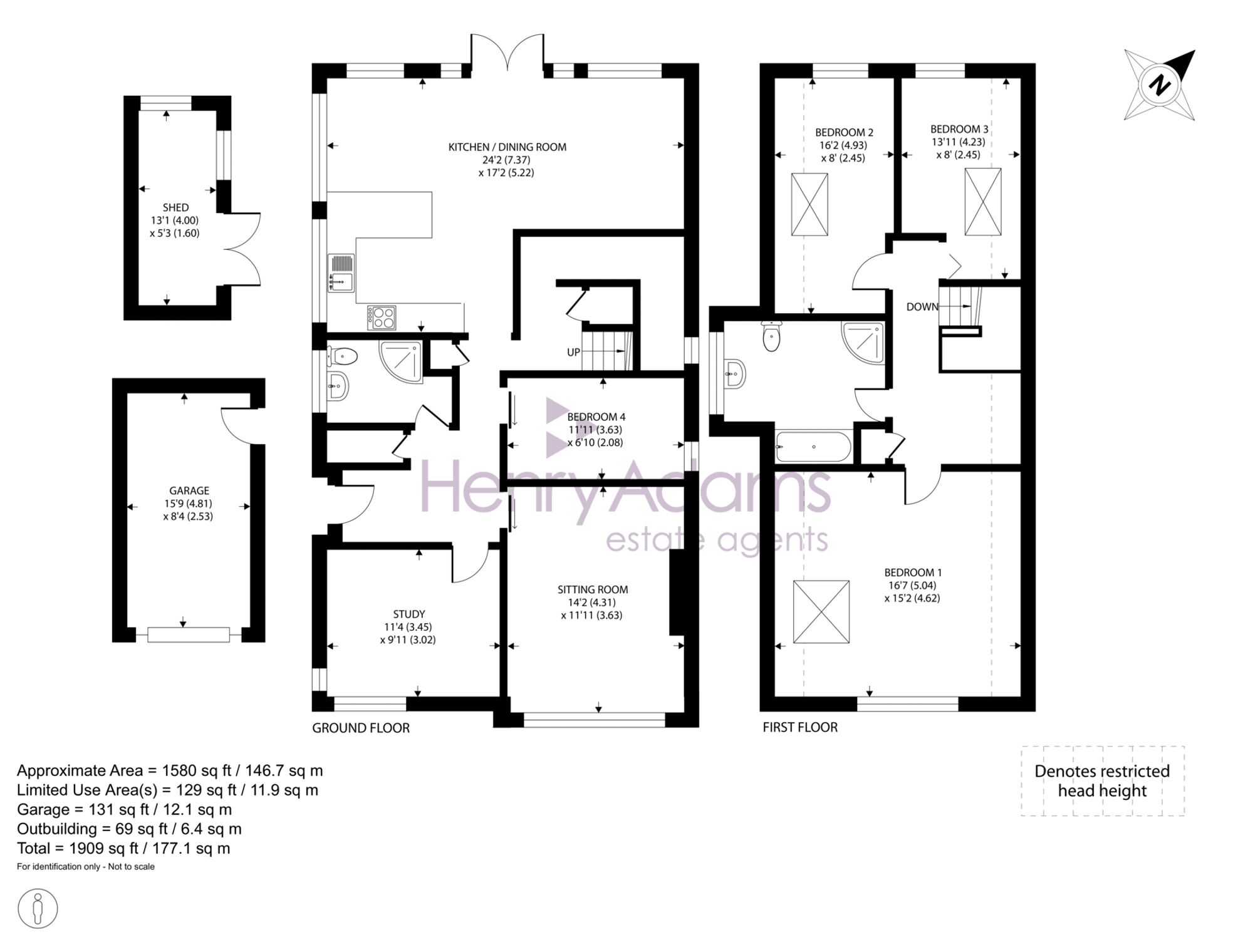
  • Detached 4 Bedroom Family Home
  • Separate Study Space
  • Open Plan Kitchen Dining Area
  • Feature Log Burning Stove
  • Finished to a High Standard Throughout
  • Off Road Parking and Garage
  • Close Proximity to Petersfield Town and Mainline Station
  • No Forward Chain

Full description

This beautifully presented four-bedroom family home is situated in a prime location in Petersfield, offering spacious, flexible accommodation perfectly suited to modern family living.

Upon entering the property, you are welcomed by a bright and inviting hallway leading to a generously sized living room, ideal for relaxing or entertaining guests. There is also a well-proportioned study, providing an excellent space for home working or a quiet retreat. The ground floor further benefits from a comfortable double bedroom and a stylish shower room.

The true heart of the home is the impressive open-plan kitchen and family space. Thoughtfully designed, this area provides a perfect blend of functionality and style, with ample space for dining and informal seating. The French doors allow for plenty of natural light and provide direct access to the private rear garden, creating a seamless indoor-outdoor living.

Upstairs, the property continues to impress with three well-sized bedrooms, all offering plenty of natural light and flexibility for family use. A contemporary family bathroom serves this level, finished to a high standard and designed with both comfort and practicality in mind.

Externally, the property boasts a private and enclosed garden, ideal for outdoor dining, entertaining, or simply enjoying the peaceful surroundings. A garage provides additional storage or secure parking, while the property also benefits from ample off-road parking for multiple vehicles.

Located in a highly sought-after area of Petersfield, this attractive home combines generous living space, a practical layout, and an excellent position close to local amenities, schools, and transport links, making it a superb opportunity for families and downsizers alike.

Situation

Situated in the highly desirable market town of Petersfield, the property enjoys easy access to a range of local shops, cafés, and well-regarded schools. Excellent transport links, including a mainline railway station and nearby road networks, provide convenient connections to London and the South Coast.

Council Tax Band: E

Tenure: Freehold

EPC Rating: C

Why live in Petersfield?

Petersfield often features on lists of the best places to live and work and was recently voted one of the top 10 most desirable market towns in England; The Guardian went so far as to describe Petersfield as ‘a commuter’s Nirvana, the urban equivalent of a foot rub and a G&T’.

We have a delightful choice of properties in the area, from beautiful character cottages, some dating back 500 years, to coach house style homes and large rural retreats to modern family homes. There’s also a thriving rental market here as the convenient location, attractive setting and abundant facilities make this an excellent base for those working in the wider area or simply wanting a perfect place to raise a family.

One of the major attractions for families is the choice of world-class schools – The Petersfield School is rated ‘outstanding’ by Ofsted and Bohunt School at nearby Liphook is one of the top performing state schools in the country. In the private sector, Churcher’s College and Bedales are located in the town, while Ditcham Park School is just to the southeast.

We have cosmopolitan range of shops, restaurants and cafés, with most major retailers represented. The Petersfield Market is held twice a week in The Square and a Hampshire Farmer’s Market is held on the first Sunday of every month. We also have many sports facilities, including two golf clubs, the Taro Leisure Centre and the Petersfield Open Air Swimming Pool, which, despite being open to the elements, is always heated to an average of 27 degrees.

But what really sets Petersfield apart is the beautiful countryside and its pretty villages. These include Selborne with its post office, primary school and choice of two pubs, Steep Village, which sits on wooded slopes known as The Hangers and was once home to Sir Alec Guinness, Buriton Village, which sits between Petersfield and the Queen Elizabeth Country Park and Rogate and Rake to the east within in the Rother Valley.

If you’d like to buy, sell or let a property in Petersfield, get in touch with your local team and discover the Henry Adams difference for yourself.

Read more