Facebook

Harrow Drive, West Wittering, PO20

2 Bed │ 1 Bath │ 1 Rec

Guide Price £375,000

Save
East Wittering

Rachel Treagust

Branch Manager

Key features

  • Recently refurbished Two Bedroom Bungalow
  • Open-plan kitchen/dining/sitting room
  • Garage & Driveway
  • Shower Room
  • Situated in a popular location
  • Close to East Wittering village centre with all amenities
  • Walking distance of the beach
  • No forward chain

Full description

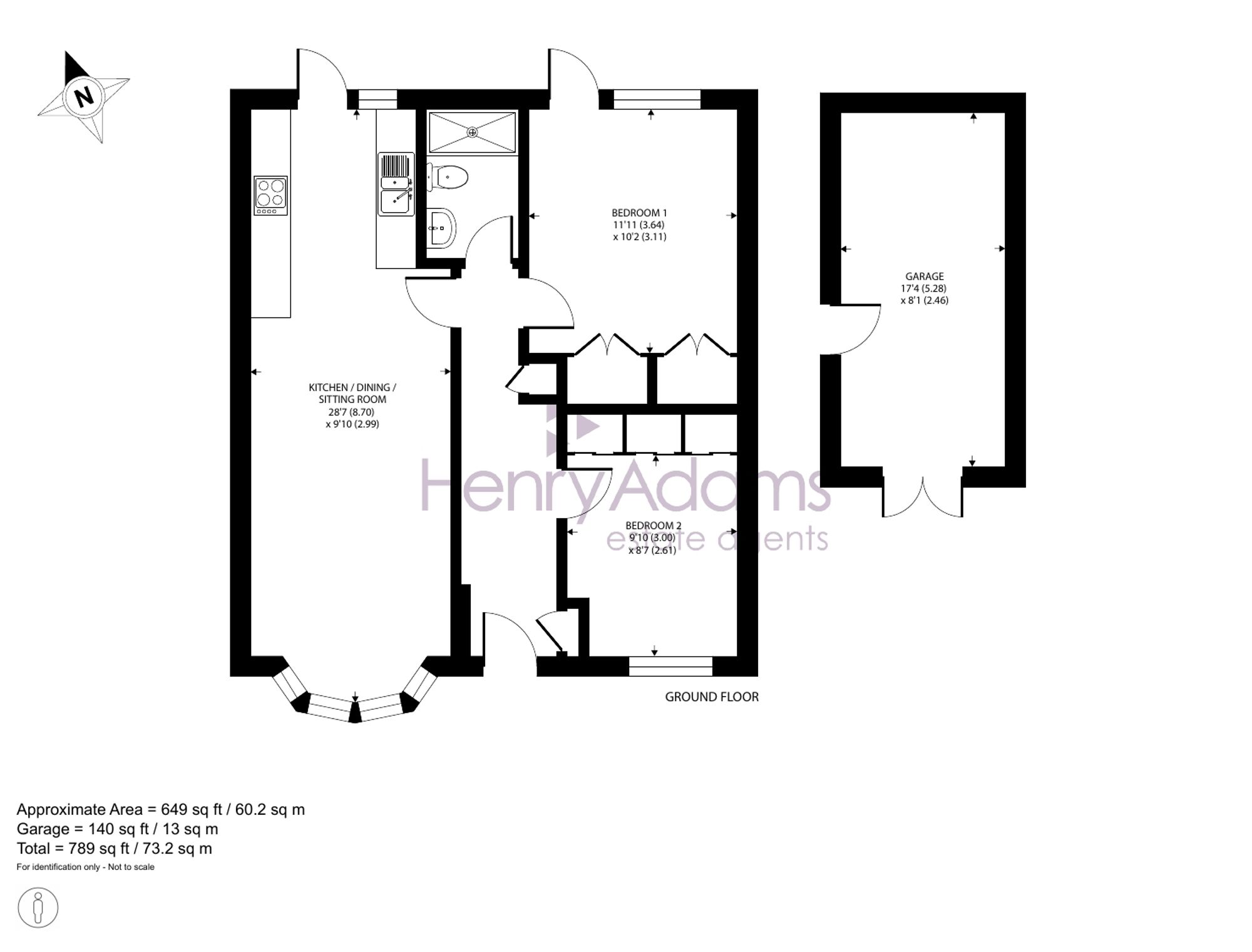
Situated on the ever-popular Sea Estate, this recently refurbished two-bedroom bungalow offers well-balanced and beautifully presented accommodation, all arranged over a single level.

A central hallway provides access to all principal rooms, creating a practical and thoughtfully designed layout. To the front of the property, the open-plan kitchen and sitting room forms the heart of the home. Extending to over 28 feet in length, this bright and versatile space comfortably accommodates both living and dining areas. The fitted kitchen offers ample worktop and storage space, while a bay window to the front enhances the natural light.

The property features two well-proportioned bedrooms. The principal bedroom is a comfortable double with space for freestanding furniture, while the second bedroom offers flexibility as a guest room, home office or hobby space. The accommodation is completed by a bathroom fitted with a bath, wash hand basin and WC.

Externally, the bungalow benefits from a detached garage, providing secure parking or useful additional storage.

Ideally positioned, East Wittering village centre, with its range of shops, amenities and popular beach, is within walking distance. Offered with no forward chain, this property presents an excellent opportunity for downsizers, first-time buyers or those seeking convenient single-storey living in a highly desirable coastal location.

Situation

Situated close to the beach, within the sought-after coastal village of East Wittering, around seven miles south-west of Chichester. The beaches here enjoy beautiful views across the Solent towards the Isle of Wight and are well known for water sports, particularly kitesurfing and windsurfing. The village offers a great range of local amenities including an infants and junior school, GP surgery, dentist, library, two mini supermarkets and a selection of independent shops, cafés, and restaurants. There is also a regular bus service into Chichester, which provides a wider choice of shops, leisure facilities, cinemas, and the renowned Festival Theatre, as well as a mainline railway station. The world-famous Goodwood Estate, with its Racecourse and Motor Circuit, lies just a few miles beyond Chichester.

Council Tax Band: C

Tenure: Freehold

EPC Rating: D

Why live in the Witterings?

People flock to East Wittering during the holiday season thanks to our world-famous beaches that are so beautiful and a way of life that’s relaxed and warm.

It’s little wonder we experienced significant building development during the 1960s and ‘80s when our rich mix of character house styles in the Witterings made it hard for people to leave. Many of the properties in the area enjoy wonderful views across the English Channel and the sound of distant waves provides a soothing backing track to everyday life here.

There’s no shortage of things to do in the area, especially if you enjoy spending time on the beach, playing water sports and experiencing the countryside and wildlife.  Both East and West Wittering are well known for sailing and surfing and there are local sailing clubs at West Wittering, Itchenor and Dell Quay and mooring facilities at Chichester Marina. West Wittering beach is postcard-perfect with its vast expanses of fine golden sand while East Wittering is more typically English with a shingle shelf that’s exposed when the tide goes out leaving behind stunning areas of wet sand where you can make sandcastles to your heart’s content. The nearby Bracklesham Bay is especially popular with surfers, divers, windsurfers and paddle boarders as well as being a treasure trove for fossil hunters.

We have everything here you need to enjoy this idyllic lifestyle here. In the village you’ll find a good selection of shops, including mini supermarkets, greengrocers, butchers, banks, bakers and a fishmonger and everything is close by in Chichester and Portsmouth.  We have two local schools for children up to 11 years of age at East Wittering Community Primary School and West Wittering Parochial C of E School and a choice of secondary schools and further education options in Chichester.

If you’d like to buy, sell or let a property in East Wittering, get in touch with your local team and discover the Henry Adams difference for yourself.

Read more