Facebook

Chestnut Avenue, Wyberton House Chestnut Avenue, PO19

3 Bed │ 2 Bath │ 1 Rec

In Excess of £550,000

Save
Chichester

Richard Longhurst

Partner

Key features

  • Bright spacious apartment in an exclusive location
  • South aspect reception rooms with direct access to private patio
  • Shaker style kitchen and separate dining room
  • Utility room
  • Three double bedrooms (or two bedrooms and a study)
  • Principal bedroom with en-suite dressing area and en-suite bathroom
  • Contemporary shower room
  • Garage
  • Lift to all floors
  • Secure top floor store room

Full description

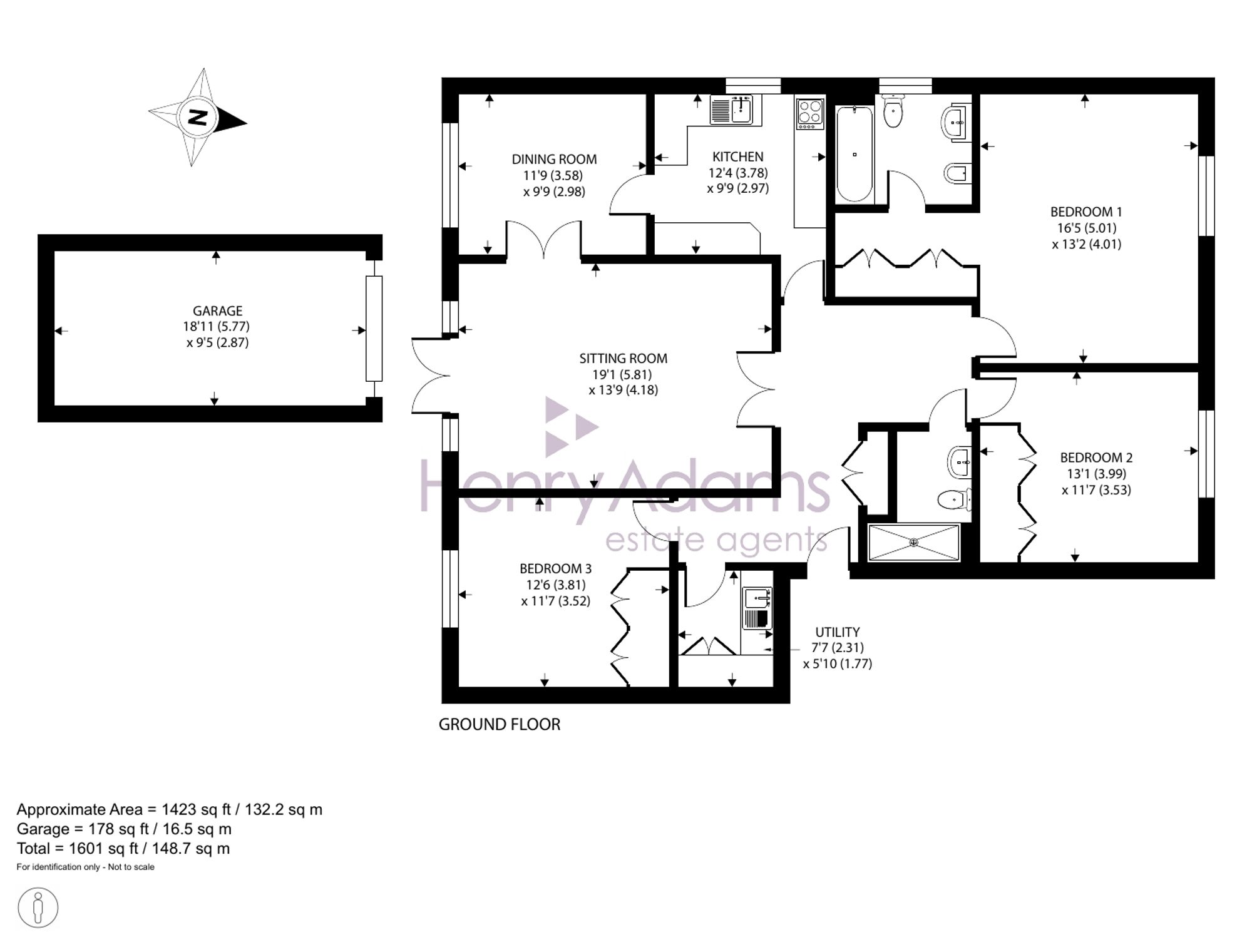
A quality three-double bedroom ground floor apartment in the favoured Summersdale area.

An exceptional ground-floor apartment offering spacious, versatile accommodation, ideal as a main residence or a convenient lock-up-and-leave home. Situated within a prestigious development of just five homes, the property stands on approximately 0.4 acres of mature, attractively landscaped, predominantly south-facing communal gardens, located on one of the city’s most sought-after tree-lined residential roads on the north side.

The apartment benefits from easy access, high ceilings and bright south-facing reception rooms, creating a wonderful sense of space and natural light throughout. A security entry phone system leads to the communal entrance hall. There is a lift to all floors including the store room for the flat at the top of the building.

The accommodation comprises a spacious hallway with glazed double doors opening into a well-proportioned sitting room, featuring French doors that open onto a private patio with direct access to the communal gardens beyond. Double doors from the sitting room lead to a separate dining room, ideal for entertaining.

Adjacent to the dining room is a fitted kitchen with classic shaker-style units, complete with integrated Neff double oven, four-ring electric hob, dishwasher, fridge and freezer. A separate utility room provides a sink unit and plumbing for a washing machine.

The principal bedroom features a dressing area with built-in wardrobes and a full en-suite bathroom. A bidet is currently installed, however, the fittings for a shower remain in situ should this be preferred. There are two further double bedrooms, one of which is currently used as a study, along with a contemporary shower room featuring a walk-in shower cubicle.

All external doors and windows have been replaced from wood to aluminium approximately three years ago.

Outside, a block-paved driveway extends to the side of the building, leading to a rear garage block. The property includes a single garage with an electric up-and-over door, along with a private parking space positioned in front of the garage.

Lease: 999 years from 29th September 1999

Ground rent: Peppercorn

Service charge: £2,347.73 for 6 months

Chichester District Council - 25/26 Tax Band £3,375.76 EPC-C

Directions - From the Northgate circulatory system proceed north on the Midhurst Road A286, passing the Festival Theatre on the right hand side. Continue past the Roussillon development on the right and then the second turning on the right into The Avenue. Take the first left into Chestnut Avenue and end turn right into Chestnut Avenue and Wyberton House is on the right.

Situation

Nearby there is a local convenience store, doctors' surgery and pharmacy as well as a regular bus service into the city centre. Chichester offers excellent high street shopping, many fashionable restaurants, cafes and bars, the Festival Theatre and a mainline station to London Victoria. Goodwood is famous for its many event days including the world renowned Festival of Speed and Goodwood Revival for motor racing enthusiasts and a season of horse racing. There are excellent sailing facilities around Chichester Harbour and water sports from the beaches at West Wittering. The area is a paradise for wildlife enthusiasts, with beautiful walks and cycle tracks over the South Downs and around the harbour.

Council Tax Band: F

Tenure: Leasehold

Lease remaining: 972 years

Why live in Chichester?

We consider ourselves very lucky to be working in a city that blends so many different architectural styles, from elegant Georgian buildings to contemporary new apartments and waterside properties that overlook the harbour.

In 2013, The Sunday Times listed Chichester as one of the top places to live in the UK with ‘something for everyone’ – and they weren’t wrong. Chichester is a cathedral city, a county town and home to some of the oldest churches and buildings in the country. There are many well-regarded public and state schools in the local area with further and higher education options available from Chichester College, West Dean College and the University of Chichester. Our great schools have always made Chichester very appealing for those looking for the perfect place to raise a family.

Our city centre is a shopper’s paradise and there are great places to eat and drink, from elegant restaurants to cosy cafés and pubs, all set along the city’s four main streets. Chichester Cathedral on West Street dominates the skyline and, on summer afternoons, its grounds are filled with local people enjoying picnics. In the evenings, the Cathedral plays a central part in the city’s nightlife by hosting classical music events.

Chichester has a number of public parks, the Chichester Tennis and Racquets Fitness Club and Westgate Leisure Centre, where you’ll find a large swimming pool and skate park and, if sailing is your thing, Chichester Harbour is a haven for you. There really is so much to do here you’ll be spoilt for choice; spend the day on one of the many local beaches, stretch your legs on the stunning South Downs or catch a show at the Festival Theatre before it moves to a permanent home in London’s West End.

If you’d like to buy, sell or let a property in Chichester, get in touch with your local team and discover the Henry Adams difference for yourself.

Read more