Facebook

Langton Close, Selsey, PO20

3 Bed │ 1 Bath │ 2 Rec

Guide Price £475,000

Save
Selsey

Kevin Daymond

Partner

Key features

  • Detached bungalow on corner plot
  • Three bedrooms
  • L-shaped living/dining room
  • Two conservatories ( one used as utility space )
  • Modern and well presented throughout
  • Wet Room
  • Corner plot with wrap around gardens
  • Close proximity to high street amenities
  • Gated double driveway
  • Larger than average garage with electric door

Full description

This impressive detached bungalow occupies a desirable corner plot, offering both privacy and convenience within close proximity to high street amenities. The property is thoughtfully arranged and presented to a good standard throughout, featuring three bedrooms and a modern wet room. The heart of the home is an inviting L-shaped living and dining room, providing a versatile space for relaxation and entertaining. Two conservatories enhance the living accommodation, one of which is currently utilised as a practical utility area being located off the kitchen. The interior is tastefully decorated, blending modern finishes with a comfortable and welcoming atmosphere. Designed for ease of living, this bungalow is ideal for those seeking a single-level home with ample space, ease access by way of ramped access to the front door, flexibility and effortless access to local shops, cafes and services.

The bungalow’s outside space is a true highlight, with wrap-around gardens extending to three sides of the property. The front and main gardens are predominantly laid to lawn, with established flower and shrub borders. To the rear, the garden has been attractively landscaped with block paving for minimal maintenance, complemented by additional flower borders. A gated, block-paved driveway offers secure off-road parking for two vehicles and leads directly to a larger-than-average garage, which is equipped with an electric roller door, lighting and power. The garage also benefits from a personal door opening onto the rear, providing convenient access for gardening or storage needs. This superb outdoor space ensures the perfect balance of practicality, privacy and year-round enjoyment.

Situation

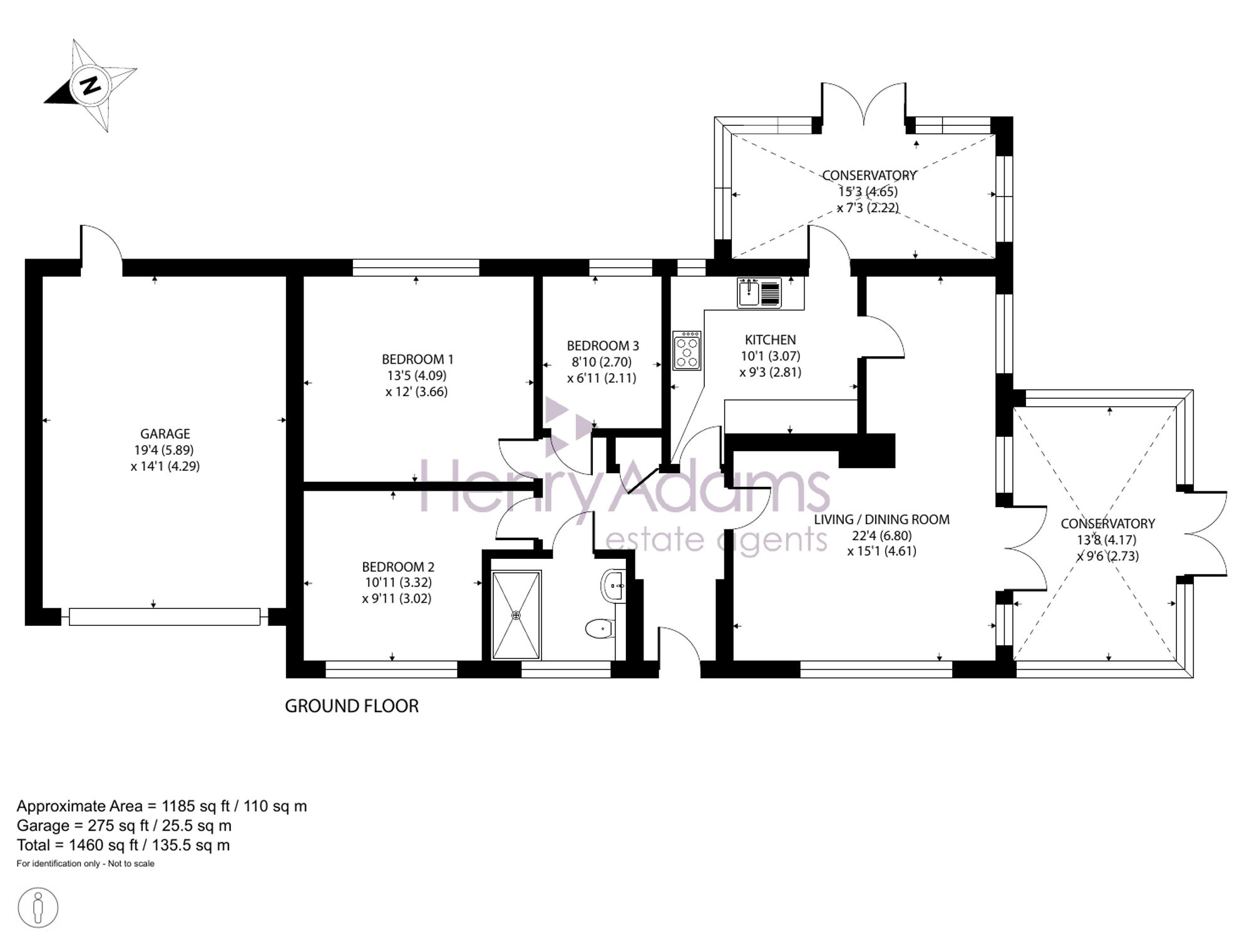
  • Entrance Hall
  • Living/Dining Room 22' 4" x 15' 1" (6.80m x 4.61m)
  • Main conservatory 13' 8" x 8' 11" (4.17m x 2.73m)
  • Kitchen 10' 1" x 9' 3" (3.07m x 2.81m)
  • 2nd conservatory/utility space 15' 3" x 7' 3" (4.65m x 2.22m)
  • Bedroom One 13' 5" x 12' 0" (4.09m x 3.66m)
  • Bedroom Two (currently used as a sitting room) 10' 11" x 9' 11" (3.32m x 3.02m)
  • Bedroom Three 8' 10" x 6' 11" (2.70m x 2.11m)
  • Wet Room

Council Tax Band: D

Tenure: Freehold

EPC Rating: D

Why live in Selsey?

It may be classed as a town, but Selsey is still a seaside village at heart and, whether you’re looking for a dream home by the beach, a place to indulge your passion for watersports or a quiet retreat away from the hustle and bustle of life, Selsey has it all.

The old town in the south east quarter is known for its charming historic properties, including 17th century thatched houses while you’ll find many large and secluded homes offering stunning views of the water by the seafront. The north of Selsey has many 1970s style properties with more substantial, semi-rural homes set around them.

You’ll find a great selection of shops, pubs and restaurants right here on the High Street along with a strong sense of community, especially at Christmas when the Selsey Lights are a sight to behold. We have two local primary schools, Medmerry Primary and the Seal Primary Academy, and The Academy Selsey senior school in the town with more options in Chichester, including Chichester High School.

Selsey has a long-standing love of sport and is proud home to both Selsey Cricket Club and the Selsey Football and Social Club, as well as a bowls and tennis club, but you’ll find even more sporting activity by the water. If you like scuba diving or snorkelling we have some of the best water for diving in the UK, with more than 100 wrecks to explore just off the coast. If you’re keen to learn, the Mulberry Divers Centre on East Beach offers tuition to everyone from complete beginners to advanced divers. There’s swimming, sailing and windsurfing around the Selsey Bill headland or bike rides along the coastal cycle path or to the stunning beaches at Bracklesham Bay, East Wittering or West Wittering where you can feel the sand under your feet.

While Selsey offers the best of seaside living, it’s just less than 10 miles from the cultural heartland of Chichester and everything that the famous cathedral city has to offer, from the plentiful shops to the Festival Theatre. So you see, Selsey really does have it all.

If you’d like to buy, sell or let a property in Selsey, get in touch with your local team and discover the Henry Adams difference for yourself.

Read more