Facebook

Graffham, Petworth, GU28

4 Bed │ 2 Bath │ 2 Rec

Offers in Region of £950,000

Save
Midhurst

Matt Shepherd

Partner

Key features

  • No Onward Chain
  • Four Bedrooms / Two Bathrooms
  • Wraparound Views of The South Downs
  • Double Car Port and Outbuildings
  • Mature Gardens
  • Potential to Update and Extend (STPP)
  • Flint Elevations and Character Features
  • Enviable and Sought After Position
  • Local Village Store and Pubs

Full description

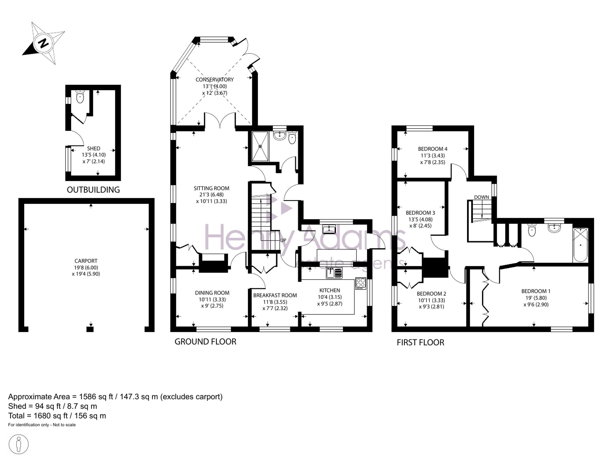
A rare opportunity to acquire a charming four-bedroom detached cottage, nestled in one of the most desirable locations within the South Downs National Park. Set in approximately 0.38 acres, Marsh Cottage offers an idyllic rural lifestyle with uninterrupted 360-degree views across rolling countryside and hills. With attractive flint elevations and a wealth of character features, this delightful home is offered to the market with no onward chain.

The property boasts mature, well-tended gardens divided into distinct areas, ideal for the green-fingered buyer, and complemented by a range of outbuildings offering excellent versatility. A double oak-framed car barn with loft storage provides undercover parking whilst a gravelled drive offers room for additional vehicles.

Internally, the accommodation is spacious and filled with natural light, with every room enjoying stunning vistas. While the interior would benefit from modernisation, it remains perfectly liveable. The ground floor comprises an entrance hall, sitting room with open fireplace, dining room, kitchen/breakfast room, utility / boot room, shower room, and a conservatory which overlooks the gardens and enjoys views to the east, south, and west.

Upstairs, there are four bedrooms and a family bathroom, each offering captivating views of the surrounding countryside. Marsh Cottage truly defines countryside living and presents a unique opportunity to create a dream home in a spectacular setting.

Situation

  • Sitting Room 21' 3" x 10' 11" (6.48m x 3.33m)
  • Kitchen 10' 4" x 9' 5" (3.15m x 2.87m)
  • Breakfast Room 11' 8" x 7' 7" (3.55m x 2.32m)
  • Dining Room 10' 11" x 9' 0" (3.33m x 2.75m)
  • Conservatory 13' 1" x 12' 0" (4.00m x 3.67m)
  • Bedroom 1 19' 0" x 9' 6" (5.80m x 2.90m)
  • Bedroom 2 10' 11" x 9' 3" (3.33m x 2.81m)
  • Bedroom 3 13' 5" x 8' 0" (4.08m x 2.45m)
  • Bedroom 4 11' 3" x 7' 9" (3.43m x 2.35m)
  • Family Bathroom
  • Shower Room

Council Tax Band: E

Tenure: Freehold

EPC Rating: E

Why live in Midhurst?

Midhurst lies on the River Rother, just 12 miles north of Chichester, and has the remarkable claim to fame of being the home of British polo thanks to the Cowdray Park Polo Club on the local Cowdray Estate, but there’s so much more to this pretty market town. It’s centuries old, boasting more than 100 listed buildings with a charming mix of medieval, Georgian, Victorian and Edwardian architecture that sits comfortably alongside more contemporary new homes.

The narrow lanes of Midhurst’s old town offer a fantastic variety of places to shop with an abundance of small independent boutiques all housed in ancient buildings. There are plenty of places to dine in and around the town centre, too, with options ranging from up-market restaurants specialising in local produce to high street favourites and charming tearooms where you can enjoy your favourite afternoon treat.

You’ll also find plenty to do here – when you’re not engaged in polo, fly-fishing or clay pigeon shooting on the Cowdray Estate, you could head over to the Cowdray Golf Club to enjoy some of the most scenic views in West Sussex and get involved with one of the many other clubs and societies that use it as a base. You’ll find a local camera club, the Midhurst Players, the Gardening Club and in August you could join in with the ten days of fun at the Midhurst Music, Arts and Dramatic Festival, ‘MADhurst’. There’s never a dull moment here!

As far as family life goes, we have many well-regarded schools in and around the area, all with strong Ofsted reports and excellent reputations, including Midhurst C of E Primary and Midhurst Rother College, which, between them, cater for pupils from age four to 18.

If you’d like to buy, sell or let a property in Midhurst, get in touch with your local team and discover the Henry Adams difference for yourself.

Read more