Facebook

Hillfield Road, Selsey, PO20

2 Bed │ 1 Bath │ 1 Rec

Guide Price £160,000

Save
Selsey

Kevin Daymond

Partner

Key features

  • Ground floor retirement flat
  • Age restricted to 60+
  • Two double bedrooms, both with built in wardrobes
  • Living room with direct access to patio area and sea glimpse
  • Communal gardens, sea facing patio for all residents, laundry room and residents lounge
  • Modern fixtures & fittings
  • Extended lease with 149yrs remaining
  • Off road parking on 1st come 1st served basis

Full description

Nestled within a quiet community tailored for those aged 60 and above, this charming ground floor retirement flat offers the ideal retreat for those seeking comfort and convenience. Boasting two double bedrooms, both adorned with sleek built-in wardrobes, this property provides ample storage space. The living room, bathed in natural light with its duel aspect, seamlessly flows onto a patio area, allowing residents to soak in the gentle sea glimpse. Residents have exclusive access to communal gardens, including a picturesque sea-facing patio perfect for relaxation, a communal laundry room, and a residents' lounge, ideal for social gatherings and shared moments. Modern fixtures and fittings throughout the property elevate the living experience. With an extended lease featuring an impressive 149 years remaining, peace of mind and stability are guaranteed for the long term. Additionally, off-road parking, allocated on a first come, first served basis. Outside, the property's well-maintained communal gardens beckon with lawns, flower beds.

Situation

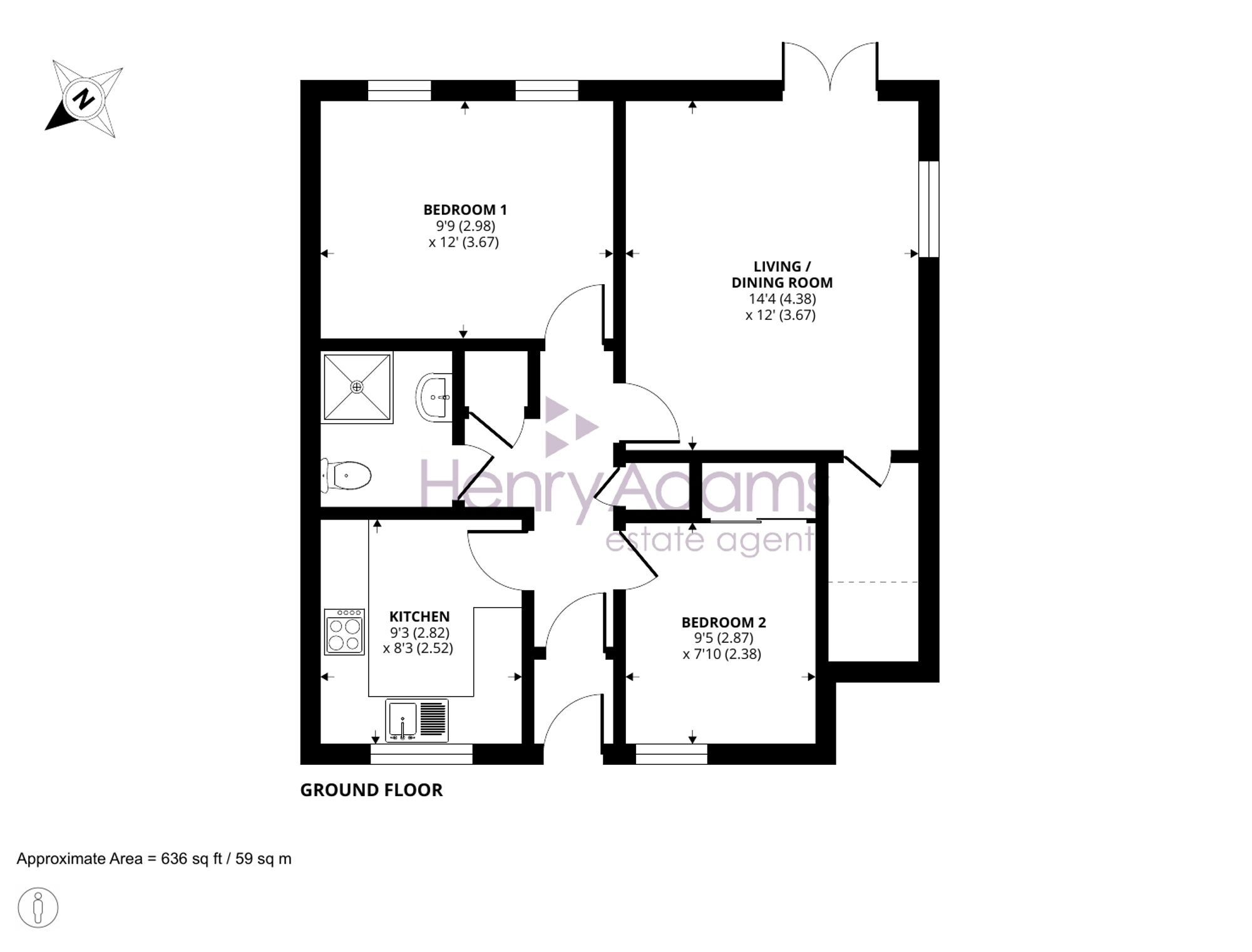
  • Covered entrance
  • Entrance hall
  • Living room 14' 4" x 12' 0" (4.38m x 3.67m)
  • Kitchen 9' 3" x 8' 3" (2.82m x 2.52m)
  • Bedroom one 12' 0" x 9' 9" (3.66m x 2.98m)
  • Bedroom two 9' 5" x 7' 10" (2.87m x 2.38m)
  • Wet room

Council Tax Band: C

Tenure: Leasehold

Lease remaining: 149 years

EPC Rating: E

Why live in Selsey?

It may be classed as a town, but Selsey is still a seaside village at heart and, whether you’re looking for a dream home by the beach, a place to indulge your passion for watersports or a quiet retreat away from the hustle and bustle of life, Selsey has it all.

The old town in the south east quarter is known for its charming historic properties, including 17th century thatched houses while you’ll find many large and secluded homes offering stunning views of the water by the seafront. The north of Selsey has many 1970s style properties with more substantial, semi-rural homes set around them.

You’ll find a great selection of shops, pubs and restaurants right here on the High Street along with a strong sense of community, especially at Christmas when the Selsey Lights are a sight to behold. We have two local primary schools, Medmerry Primary and the Seal Primary Academy, and The Academy Selsey senior school in the town with more options in Chichester, including Chichester High School.

Selsey has a long-standing love of sport and is proud home to both Selsey Cricket Club and the Selsey Football and Social Club, as well as a bowls and tennis club, but you’ll find even more sporting activity by the water. If you like scuba diving or snorkelling we have some of the best water for diving in the UK, with more than 100 wrecks to explore just off the coast. If you’re keen to learn, the Mulberry Divers Centre on East Beach offers tuition to everyone from complete beginners to advanced divers. There’s swimming, sailing and windsurfing around the Selsey Bill headland or bike rides along the coastal cycle path or to the stunning beaches at Bracklesham Bay, East Wittering or West Wittering where you can feel the sand under your feet.

While Selsey offers the best of seaside living, it’s just less than 10 miles from the cultural heartland of Chichester and everything that the famous cathedral city has to offer, from the plentiful shops to the Festival Theatre. So you see, Selsey really does have it all.

If you’d like to buy, sell or let a property in Selsey, get in touch with your local team and discover the Henry Adams difference for yourself.

Read more