Facebook

Chalder Lane, Sidlesham, PO20

4 Bed │ 3 Bath │ 3 Rec

Guide Price £850,000

Save
Chichester

Richard Longhurst

Partner

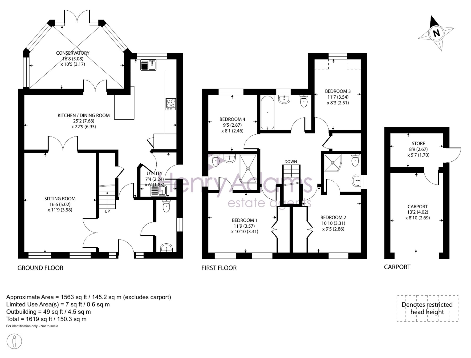
Key features

  • Conveniently located just five miles south of Chichester
  • Sitting room
  • Impressive open plan kitchen/dining/breakfast room
  • Conservatory
  • Four bedrooms
  • Two en-suite shower rooms and family bathroom
  • Separate utility
  • Beautifully landscaped gardens
  • Gravel driveway with ample parking
  • Detached timber garage

Full description

A stunning detached country home.

A most attractive and beautifully presented four-bedroom detached home, one of just three bespoke properties built in 2003, offered in true show-home condition throughout.

Set in a glorious rural location surrounded by open countryside, yet conveniently situated just five miles south of Chichester, this exceptional home perfectly combines tranquillity with accessibility.

The property welcomes you with a spacious and inviting entrance hall, complete with a cloakroom. Double doors lead through to a comfortable sitting room featuring a charming wood-burning stove, creating a warm and cosy atmosphere. Further double doors open into the dining room, enhancing the sense of flow and space.

The generous L-shaped dining room seamlessly connects to the open-plan kitchen/breakfast room, ideal for modern living and entertaining. The kitchen is fitted with classic shaker-style cabinetry, integrated double oven, ceramic hob with cooker hood, fridge freezer and dishwasher, all complemented by extensive worktops and a granite breakfast bar. A separate utility room provides additional practicality.

A conservatory, accessed from the dining area, overlooks the beautifully landscaped rear garden and the open field beyond, offering a peaceful and scenic outlook.

Upstairs, the first floor hosts four well-proportioned bedrooms, all enjoying delightful countryside views. The principal and guest bedrooms both benefit from en-suite shower rooms, while the remaining bedrooms are served by a family bathroom.

Externally, the property features a gravel driveway providing ample parking, along with a detached timber single garage incorporating a useful garden store to the rear (garage doors currently removed but retained).

The rear garden is a true highlight, thoughtfully landscaped with a decked seating area, extensive lawn, two patios, and mature shrub borders on either side. At the far end, a post-and-rail fence opens onto the surrounding countryside, enhancing the sense of space and privacy.

Note: The property has oil central heating and sewage treatment plant.

Chichester District Council - 26/27 Tax Band F £3,573.96 EPC-C

Directions - From Chichester proceed south on the B2145 Selsey Road. Pass through the village of Hunston and on to Sidlesham. On entering Sidlesham, turn left before The Anchor public house into Church Lane, which proceeds into Chalder Lane. Continue along Chalder Lane passing the The Cat & Rabbit Rescue Centre on you right. Continue for approximately 0.2 of a mile and the property is on your left. what3words.com - nooks.clogging.drummers

Situation

Located in a sought after semi-rural location approximately five miles to the south of Chichester and within easy reach of Chichester Marina and the popular beaches of East and West Wittering. Sidlesham offers every day amenities including a local pub, petrol station and primary school. The cathedral city of Chichester offers excellent high street shopping, many fashionable restaurants, cafes and bars, the Festival Theatre and a mainline station to London Victoria. Goodwood is located to the north east and is famous for its many event days including the world renowned Festival of Speed and Goodwood Revival for motor racing enthusiasts and a season of horse racing including the Qatar Goodwood Festival. The area is a paradise for wildlife enthusiasts, with beautiful walks and cycle tracks over the South Downs and around the harbour.

Council Tax Band: F

Tenure: Freehold

EPC Rating: C

Why live in Chichester?

We consider ourselves very lucky to be working in a city that blends so many different architectural styles, from elegant Georgian buildings to contemporary new apartments and waterside properties that overlook the harbour.

In 2013, The Sunday Times listed Chichester as one of the top places to live in the UK with ‘something for everyone’ – and they weren’t wrong. Chichester is a cathedral city, a county town and home to some of the oldest churches and buildings in the country. There are many well-regarded public and state schools in the local area with further and higher education options available from Chichester College, West Dean College and the University of Chichester. Our great schools have always made Chichester very appealing for those looking for the perfect place to raise a family.

Our city centre is a shopper’s paradise and there are great places to eat and drink, from elegant restaurants to cosy cafés and pubs, all set along the city’s four main streets. Chichester Cathedral on West Street dominates the skyline and, on summer afternoons, its grounds are filled with local people enjoying picnics. In the evenings, the Cathedral plays a central part in the city’s nightlife by hosting classical music events.

Chichester has a number of public parks, the Chichester Tennis and Racquets Fitness Club and Westgate Leisure Centre, where you’ll find a large swimming pool and skate park and, if sailing is your thing, Chichester Harbour is a haven for you. There really is so much to do here you’ll be spoilt for choice; spend the day on one of the many local beaches, stretch your legs on the stunning South Downs or catch a show at the Festival Theatre before it moves to a permanent home in London’s West End.

If you’d like to buy, sell or let a property in Chichester, get in touch with your local team and discover the Henry Adams difference for yourself.

Read more