Facebook

Jodrell Place, Selsey, PO20

2 Bed │ 2 Bath │ 1 Rec

Guide Price £305,000

Save
Selsey

Kevin Daymond

Partner

Key features

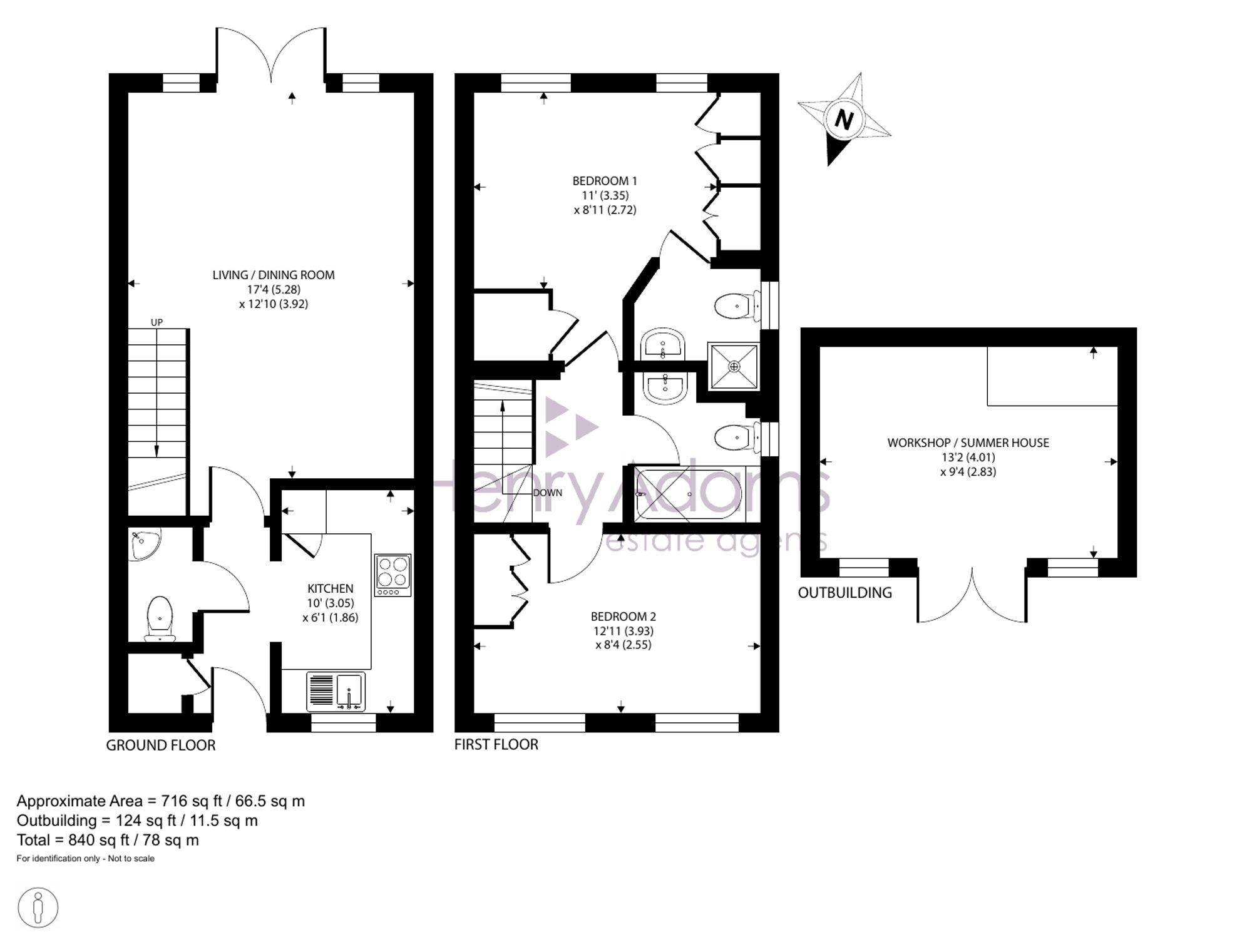
  • Semi detached house
  • Living/Dining Room
  • Kitchen with integrated appliances
  • Cloakroom, En-Suite And Family Bathroom
  • Close To Beach
  • Off Road Parking
  • South Easterly Facing Rear Garden
  • Remainder of NHBC guarantee

Full description

Welcome to this semi-detached house located just a stone's throw away from the beach. Situated in a tranquil neighbourhood, this property offers a perfect blend of comfort and convenience.

The property benefits from a living/dining room that serves as the heart of the home, ideal for both entertaining guests and relaxing with family whilst also offering direct access into the rear garden. The adjoining kitchen comes complete with integrated appliances. The ground floor also features a convenient cloakroom, providing additional functionality to this already well-designed space. Moving upstairs, you will find an en-suite shower room attached to the principal bedroom, providing a touch of luxury and privacy. The property also boasts a family bathroom, ensuring that everyone's needs are met.

In addition to its prime location near the beach, this property offers off-road parking. The south-easterly facing rear garden is the perfect spot to enjoy the outdoors and soak up the sun. Whether you're a green thumb looking to create a beautiful garden oasis or simply seeking a peaceful place to unwind, this garden offers many possibilities.

This property also comes with the remainder of an NHBC guarantee, providing peace of mind and assurance. With this guarantee in place, you can rest easy knowing that your investment is protected. Please note there is an estate charge of approximately £250 per annum. ** Please note the photos being used are historical and we’re taken before the tenant moved in.

Situation

  • Entrance
  • Entrance Hall
  • Cloakroom
  • Kitchen 10' 0" x 6' 2" (3.06m x 1.87m)
  • Living Room 17' 4" x 12' 10" (5.28m x 3.92m)
  • Landing
  • Bedroom One 11' 0" x 8' 11" (3.35m x 2.72m)
  • En-Suite Shower Room
  • Bedroom Two 11' 0" x 8' 4" (3.35m x 2.55m)
  • Family Bathroom
  • Wooden Summer House 13' 2" x 9' 3" (4.01m x 2.83m)
  • N.B

Council Tax Band: C

Tenure: Freehold

EPC Rating: B

Why live in Selsey?

It may be classed as a town, but Selsey is still a seaside village at heart and, whether you’re looking for a dream home by the beach, a place to indulge your passion for watersports or a quiet retreat away from the hustle and bustle of life, Selsey has it all.

The old town in the south east quarter is known for its charming historic properties, including 17th century thatched houses while you’ll find many large and secluded homes offering stunning views of the water by the seafront. The north of Selsey has many 1970s style properties with more substantial, semi-rural homes set around them.

You’ll find a great selection of shops, pubs and restaurants right here on the High Street along with a strong sense of community, especially at Christmas when the Selsey Lights are a sight to behold. We have two local primary schools, Medmerry Primary and the Seal Primary Academy, and The Academy Selsey senior school in the town with more options in Chichester, including Chichester High School.

Selsey has a long-standing love of sport and is proud home to both Selsey Cricket Club and the Selsey Football and Social Club, as well as a bowls and tennis club, but you’ll find even more sporting activity by the water. If you like scuba diving or snorkelling we have some of the best water for diving in the UK, with more than 100 wrecks to explore just off the coast. If you’re keen to learn, the Mulberry Divers Centre on East Beach offers tuition to everyone from complete beginners to advanced divers. There’s swimming, sailing and windsurfing around the Selsey Bill headland or bike rides along the coastal cycle path or to the stunning beaches at Bracklesham Bay, East Wittering or West Wittering where you can feel the sand under your feet.

While Selsey offers the best of seaside living, it’s just less than 10 miles from the cultural heartland of Chichester and everything that the famous cathedral city has to offer, from the plentiful shops to the Festival Theatre. So you see, Selsey really does have it all.

If you’d like to buy, sell or let a property in Selsey, get in touch with your local team and discover the Henry Adams difference for yourself.

Read more