Facebook

Stockbridge Gardens, Chichester, PO19

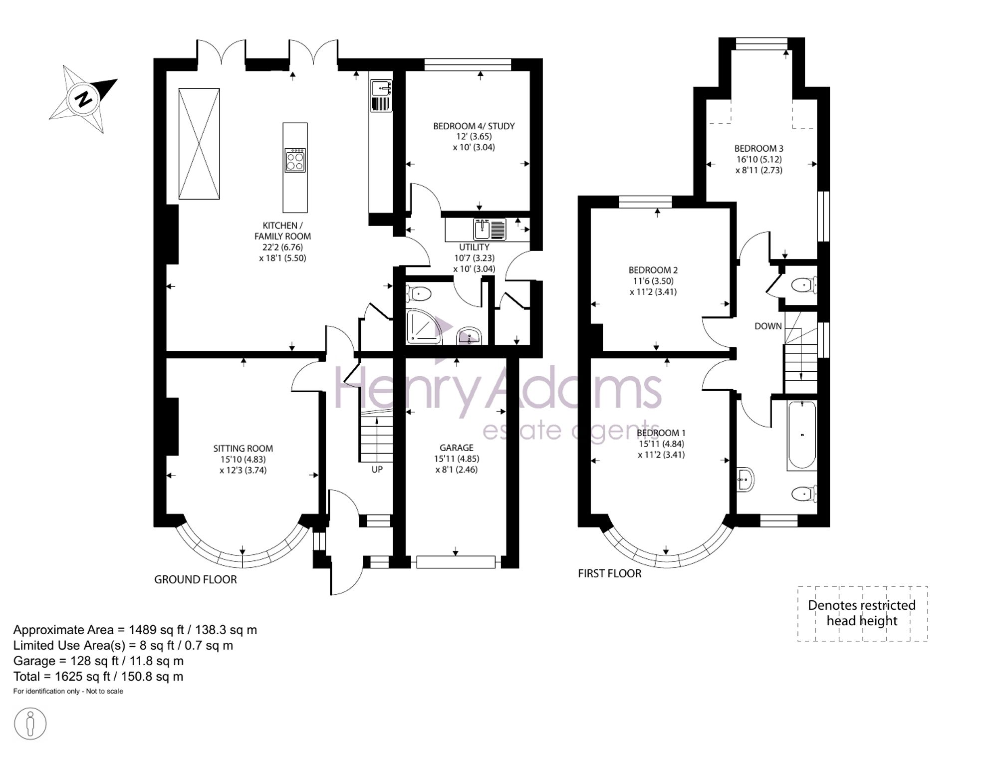
4 Bed │ 2 Bath │ 2 Rec

Guide Price £575,000

Save
Chichester

Richard Longhurst

Partner

Key features

  • Extended semi-detached house
  • Impressive open plan kitchen/family room
  • Three bedrooms
  • Study/bedroom four
  • Driveway and garage
  • West facing rear garden
  • Viewing recommended

Full description

A well-presented house in the Stockbridge area of Chichester.

Extended semi-detached house in a popular residential location offering spacious and versatile accommodation ideal for modern family living. The property features a comfortable sitting room and an impressive open plan kitchen/family room, perfect for everyday living and entertaining. There is also a useful utility room, ground floor shower/WC, and a ground floor study which could also be used as an additional bedroom. To the first floor are three well-proportioned bedrooms, a family bathroom/WC and an additional separate WC.

Externally, the property benefits from a driveway leading to a garage and a west-facing rear garden, ideal for enjoying afternoon and evening sun. Viewing is highly recommended.

Chichester District Council - 25/26 Tax Band D £2,288.36 EPC-C

Directions - Proceed south out of Chichester on the A286 (signposted to The Witterings). Proceed over the mini roundabout and take the first turning on the right into Stockbridge Gardens. Pass Gordon Avenue on your left and number 33 is a short distance after on the left. What3words - aware.cards.space

Situation

There is a parade of shops nearby, including a butcher, a hairdresser and a florist, as well as a Co-op convenience store. The property is approximately half a mile south of the leisure complex/restaurants/cinema, the canal and Chichester's train station with services to London (Victoria) and along the coast. The cathedral city of Chichester offers excellent high street shopping, many fashionable restaurants, cafes and bars and the Festival Theatre. Goodwood is famous for its many event days including the world renowned Festival of Speed and Goodwood Revival for motor racing enthusiasts and a season of horse racing including the Qatar Goodwood Festival. There are superb sailing facilities around Chichester Harbour and water sports from the beaches at West Wittering. The area is a paradise for wildlife enthusiasts, with beautiful walks and cycle tracks over the South Downs and around the harbour.

Council Tax Band: D

Tenure: Freehold

EPC Rating: C

Why live in Chichester?

We consider ourselves very lucky to be working in a city that blends so many different architectural styles, from elegant Georgian buildings to contemporary new apartments and waterside properties that overlook the harbour.

In 2013, The Sunday Times listed Chichester as one of the top places to live in the UK with ‘something for everyone’ – and they weren’t wrong. Chichester is a cathedral city, a county town and home to some of the oldest churches and buildings in the country. There are many well-regarded public and state schools in the local area with further and higher education options available from Chichester College, West Dean College and the University of Chichester. Our great schools have always made Chichester very appealing for those looking for the perfect place to raise a family.

Our city centre is a shopper’s paradise and there are great places to eat and drink, from elegant restaurants to cosy cafés and pubs, all set along the city’s four main streets. Chichester Cathedral on West Street dominates the skyline and, on summer afternoons, its grounds are filled with local people enjoying picnics. In the evenings, the Cathedral plays a central part in the city’s nightlife by hosting classical music events.

Chichester has a number of public parks, the Chichester Tennis and Racquets Fitness Club and Westgate Leisure Centre, where you’ll find a large swimming pool and skate park and, if sailing is your thing, Chichester Harbour is a haven for you. There really is so much to do here you’ll be spoilt for choice; spend the day on one of the many local beaches, stretch your legs on the stunning South Downs or catch a show at the Festival Theatre before it moves to a permanent home in London’s West End.

If you’d like to buy, sell or let a property in Chichester, get in touch with your local team and discover the Henry Adams difference for yourself.

Read more