Facebook

Eton Drive, West Wittering, PO20

2 Bed │ 1 Bath │ 1 Rec

Guide Price £365,000

Save
East Wittering

Rachel Treagust

Branch Manager

Key features

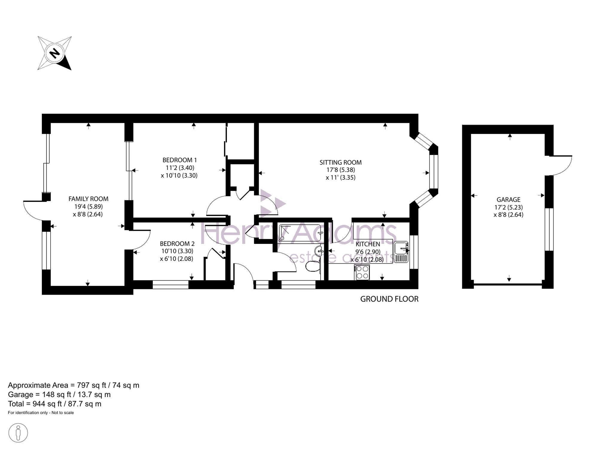
  • Two bedrooms
  • Sitting room & family room
  • Bathroom
  • Garage & off-road parking
  • Popular residential location
  • Close to East Wittering village cetnre
  • Walking distance of the beach
  • Offered with no forward chain

Full description

This well-proportioned two-bedroom bungalow offers comfortable single-level living with a practical layout and generous living spaces. The property features a welcoming family room, providing a bright and versatile space ideal for relaxing or entertaining.

The accommodation is arranged around a central hallway with two storage cupboards, which leads to a sitting room featuring attractive bay-style windows that allow plenty of natural light to fill the space. This room provides an ideal setting for both relaxing and entertaining.

To the rear of the property is a family room, offering flexible living space that could be used as a second lounge, dining area, or home office depending on your needs.

The property offers two bedrooms, including a well-proportioned principal bedroom, and a second bedroom that could equally serve as a guest room, nursery, or study.

The kitchen is conveniently positioned and provides ample space for appliances and storage. A family bathroom completes the accommodation.

Externally, the property benefits from a detached garage with power and lighting, ideal for secure parking or additional storage.

Offered with no forward chain.

Situation

East Wittering is a sought-after coastal village located on the West Sussexshoreline, offering a relaxed seaside lifestyle with a strong sense ofcommunity. The village benefits from a range of local amenities includingindependent shops, cafés, restaurants, a doctor’s surgery, and primaryschool, all within walking distance.
The village is well positioned for access to the surrounding area, with Chichester approximately 8 miles to the north providing a mainline railway station, historic city centre, and extensive cultural and shopping facilities. Excellent road links connect East Wittering to the A27, while nearby sailing clubs, nature reserves, and the South Downs National Park offer an abundance of leisure and outdoor pursuits.

Council Tax Band: C

EPC Rating: C

Why live in the Witterings?

People flock to East Wittering during the holiday season thanks to our world-famous beaches that are so beautiful and a way of life that’s relaxed and warm.

It’s little wonder we experienced significant building development during the 1960s and ‘80s when our rich mix of character house styles in the Witterings made it hard for people to leave. Many of the properties in the area enjoy wonderful views across the English Channel and the sound of distant waves provides a soothing backing track to everyday life here.

There’s no shortage of things to do in the area, especially if you enjoy spending time on the beach, playing water sports and experiencing the countryside and wildlife.  Both East and West Wittering are well known for sailing and surfing and there are local sailing clubs at West Wittering, Itchenor and Dell Quay and mooring facilities at Chichester Marina. West Wittering beach is postcard-perfect with its vast expanses of fine golden sand while East Wittering is more typically English with a shingle shelf that’s exposed when the tide goes out leaving behind stunning areas of wet sand where you can make sandcastles to your heart’s content. The nearby Bracklesham Bay is especially popular with surfers, divers, windsurfers and paddle boarders as well as being a treasure trove for fossil hunters.

We have everything here you need to enjoy this idyllic lifestyle here. In the village you’ll find a good selection of shops, including mini supermarkets, greengrocers, butchers, banks, bakers and a fishmonger and everything is close by in Chichester and Portsmouth.  We have two local schools for children up to 11 years of age at East Wittering Community Primary School and West Wittering Parochial C of E School and a choice of secondary schools and further education options in Chichester.

If you’d like to buy, sell or let a property in East Wittering, get in touch with your local team and discover the Henry Adams difference for yourself.

Read more