Facebook

Amberley Road, Storrington, RH20

5 Bed │ 2 Bath │ 3 Rec

Guide Price £950,000

Save
Storrington

Christina Bearryman

Sales Associate

Key features

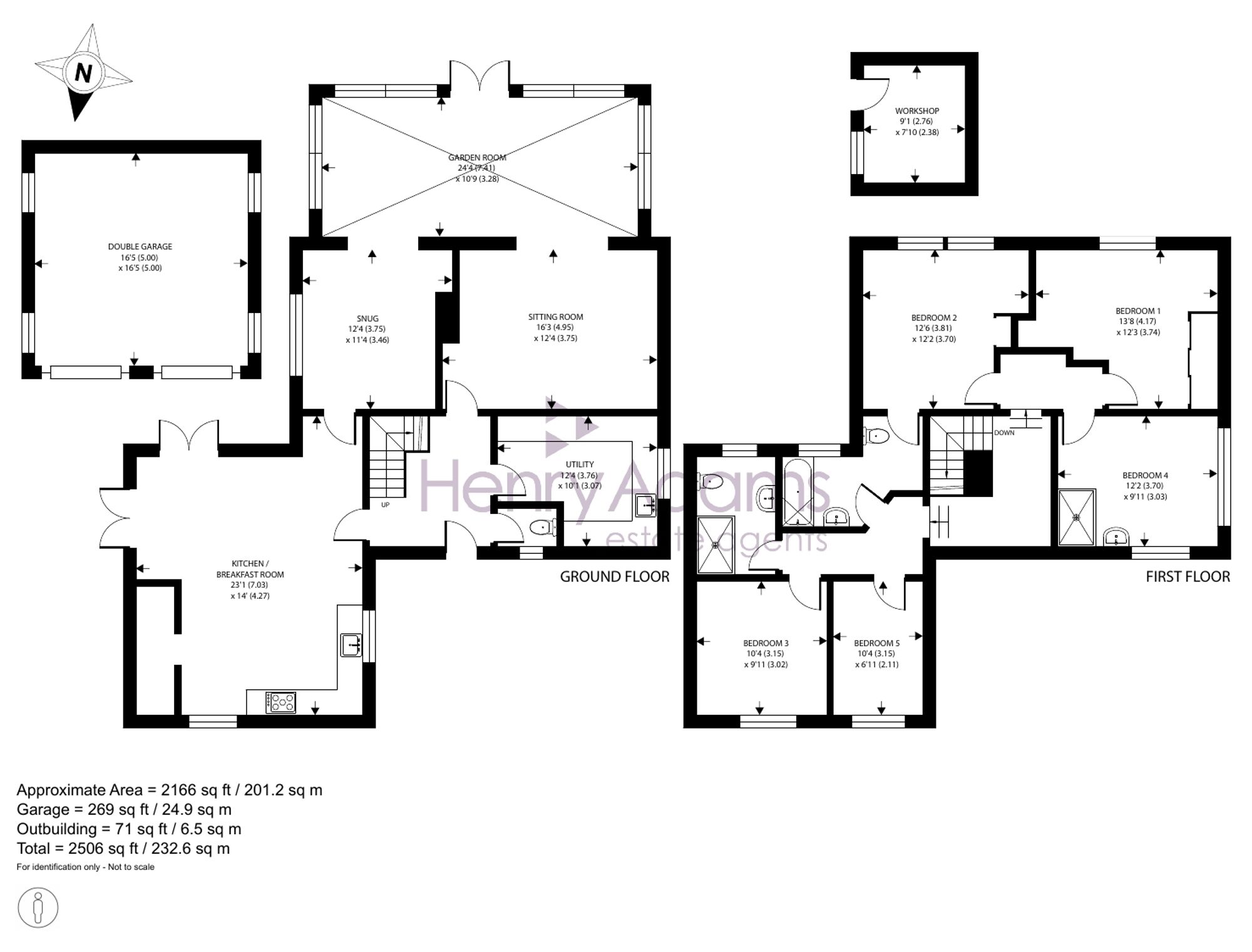
  • A extended family home close to the village centre and with south facing garden with internal space in excess of 2,000 sq ft
  • Large kitchen with range cooker, walk in larder space and scope to update, with double access to garden
  • Lovely reception spaces overlooking the garden including snug with woodburner, sitting room and garden room
  • Generous utility room with ample cupboard space and ground floor cloakroom
  • Four double bedrooms to first floor, a single bedroom or study
  • Jack and Jill bathroom to bedroom 2 and family shower room, also shower in bedroom 4
  • Double garage and ample driveway parking
  • Delightful south facing gardens with a number of seating areas, and a lovely woodland garden towards the rear
  • Outbuildings in garden including a potting shed, green house with electricity, workshop shed and various plants and shrubs including red cedars, plum trees and rose beds

Full description

This spacious and well-presented five bedroom detached house offers over 2,000 sq ft of versatile accommodation, ideal for an extended family seeking comfort and convenience close to the village centre. The heart of the home is the generous kitchen, featuring a range cooker, walk-in larder, and two sets of double doors leading outside, with ample scope for personalisation and modernisation.

The reception spaces are particularly inviting, with a snug complete with a woodburner for cosy evenings, a sitting room, and a bright garden room with lantern roof that enjoys pleasant views. Solid oak floors add a touch of elegance throughout these areas. The ground floor also benefits from a large utility room with extensive cupboard space, as well as a practical cloakroom.

Upstairs, four well-proportioned double bedrooms provide flexible options for family living, complemented by a single bedroom that could serve as a study if required. There is a family shower room and bathroom, which is also accessed from bedroom 2, there is also a shower in bedroom 4. Storage and parking needs are well catered for, with a double garage and ample driveway parking available. The property is further enhanced by a range of useful outbuildings, including a potting shed, a greenhouse with electricity, and a workshop shed, making it perfect for those with hobbies or green-fingered pursuits.

The established garden is thoughtfully landscaped with a variety of mature plants and shrubs, including red cedars, plum trees, and rose beds, and offers several seating areas for relaxation. Towards the rear, a charming woodland garden adds a sense of tranquillity and privacy. This home is a rare opportunity to acquire a substantial and adaptable property in a desirable location, combining generous living spaces with practical features to suit modern family life. Early viewing is highly recommended to appreciate the size, layout, and potential this property has to offer.

Situation

Storrington village lies in the lea of the South Downs National Park and has an established range of shops including Waitrose, Costa and a number of independent shops and HSBC bank. There is a health centre and various sporting activities including football club, Pulborough Rugby Club, tennis club and not forgetting the South Downs for walking or cycling or the National Trust Sullington Warren or Sandgate Country Park. The towns of Horsham and Worthing are about 15 and 11 miles respectively with good access to the A24.

The area around provides a wider range of sporting and recreational facilities with West Sussex Golf Club and other golf clubs further afield at Cowdray Park and Goodwood. Of special note is the RSPB nature reserve at Wiggonholt Brooks. The area also has bowls and cricket clubs. There is gliding at nearby Parham, theatres at Chichester, Horsham and Worthing and sailing centres all along the coast.
  • Entrance Hall
  • Kitchen / Breakfast Room
  • Snug
  • Conservatory
  • Sitting Room
  • Utility Room
  • Landing
  • Bedroom 1
  • Bedroom 2
  • Bathroom
  • Bedroom 3
  • Bedroom 4
  • Bedroom 5
  • Shower Room

Council Tax Band: F

Tenure: Freehold

EPC Rating: C

Why live in Storrington?

This picture-perfect village lies at the foot of the South Downs National Park, halfway along the South Downs Way. Properties here include bungalows, family homes and the famous Wells cottages that were individually designed by the architect Reginald Fairfax Wells in the 1920s to look and feel like 17th century buildings with thatched roofs, small windows and whitewashed exteriors.

Many of the homes in Storrington have wonderful views across rolling countryside and a conservation area just off the bustling high street ensures Storrington will remain as beautiful as it is today for generations to come.

There are lots of specialist shops in the town and convenient amenities such as the large recreational ground with its football and cricket pitches, the Chanctonbury Leisure Centre and an abundance of community groups offering classes in all sorts of interesting activities from ballroom dancing to photography. For a spot of culture, visit the Parham House and Gardens or the local Storrington and District Museum and for outdoor pursuits, take time to explore the natural beauty of the South Downs on foot, bike or horseback or, for a truly spectacular experience, take to the air in a glider.

Our local schools belong to a cluster group called STARS (Storrington Area Rural Schools) and, between them, offer a choice of paths from Reception through to Year 13. Steyning Grammar School is included in the list of STARS and is a popular choice as it’s non-selective and has its own Sixth Form.

Storrington is well connected too; the nearest train station is in the neighbouring village of Pulborough. The five-mile journey only takes 10 minutes by car or you can take a bus; the bus timetable is synced with the train timetable to make life even easier for local commuters.

If you’d like to buy, sell or let a property in Storrington, get in touch with your local team and discover the Henry Adams difference for yourself.

Read more